|
|
Osaka-shi, Osaka Yodogawa
大阪府大阪市淀川区
|
|
Subway Midosuji Line "Higashimikuni" walk 12 minutes
地下鉄御堂筋線「東三国」歩12分
|
|
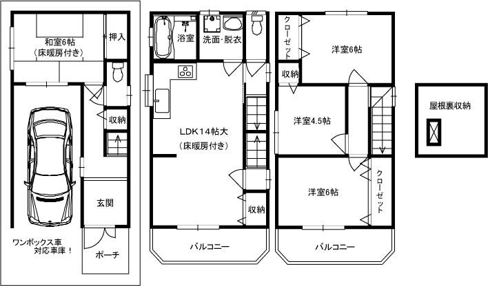
■ Heisei 12 years building properties! ■ 4LDK type! LDK & There floor heating in the Japanese-style room! ■ There is also all the living room storage & attic storage!
■平成12年建築物件です!■4LDKタイプ!LDK&和室に床暖房有ります!■全居室収納&屋根裏収納も有ります!
|
|
■ Heisei 12 years building properties! ■ 4LDK type! LDK & There floor heating in the Japanese-style room! ■ There is also all the living room storage & attic storage!
■平成12年建築物件です!■4LDKタイプ!LDK&和室に床暖房有ります!■全居室収納&屋根裏収納も有ります!
|
Features pickup 特徴ピックアップ | | 2 along the line more accessible / It is close to the city / System kitchen / Yang per good / All room storage / Flat to the station / A quiet residential area / Around traffic fewer / Japanese-style room / Shaping land / Toilet 2 places / TV monitor interphone / Ventilation good / Three-story or more / Maintained sidewalk / Flat terrain / Floor heating 2沿線以上利用可 /市街地が近い /システムキッチン /陽当り良好 /全居室収納 /駅まで平坦 /閑静な住宅地 /周辺交通量少なめ /和室 /整形地 /トイレ2ヶ所 /TVモニタ付インターホン /通風良好 /3階建以上 /整備された歩道 /平坦地 /床暖房 |
Price 価格 | | 26,800,000 yen 2680万円 |
Floor plan 間取り | | 4LDK 4LDK |
Units sold 販売戸数 | | 1 units 1戸 |
Land area 土地面積 | | 50.2 sq m (15.18 tsubo) (Registration) 50.2m2(15.18坪)(登記) |
Building area 建物面積 | | 108 sq m (32.66 tsubo) (Registration) 108m2(32.66坪)(登記) |
Driveway burden-road 私道負担・道路 | | Share interests 182 sq m × (1 / 16), East 5m width (contact the road width 4.9m) 共有持分182m2×(1/16)、東5m幅(接道幅4.9m) |
Completion date 完成時期(築年月) | | March 2000 2000年3月 |
Address 住所 | | Osaka-shi, Osaka Yodogawa Article 38 2 大阪府大阪市淀川区十八条2 |
Traffic 交通 | | Subway Midosuji Line "Higashimikuni" walk 12 minutes Hankyu Takarazuka Line "Three Kingdoms" walk 15 minutes 地下鉄御堂筋線「東三国」歩12分 阪急宝塚線「三国」歩15分
|
Related links 関連リンク | | [Related Sites of this company] 【この会社の関連サイト】 |
Person in charge 担当者より | | Rep Matsuoka Hideki 担当者松岡 秀樹 |
Contact お問い合せ先 | | TEL: 0800-603-1707 [Toll free] mobile phone ・ Also available from PHS Caller ID is not notified Please contact the "saw SUUMO (Sumo)" If it does not lead, If the real estate company TEL:0800-603-1707【通話料無料】携帯電話・PHSからもご利用いただけます 発信者番号は通知されません 「SUUMO(スーモ)を見た」と問い合わせください つながらない方、不動産会社の方は
|
Building coverage, floor area ratio 建ぺい率・容積率 | | 80% ・ 200% 80%・200% |
Time residents 入居時期 | | Consultation 相談 |
Land of the right form 土地の権利形態 | | Ownership 所有権 |
Structure and method of construction 構造・工法 | | Wooden three-story part RC 木造3階建一部RC |
Use district 用途地域 | | One dwelling 1種住居 |
Overview and notices その他概要・特記事項 | | Contact: Matsuoka Hideki, Facilities: Public Water Supply, This sewage, City gas, Parking: Garage 担当者:松岡 秀樹、設備:公営水道、本下水、都市ガス、駐車場:車庫 |
Company profile 会社概要 | | <Mediation> Osaka governor (8) Kitakyu housing (Ltd.) Yubinbango532-0003 Osaka Yodogawa-ku, Osaka No. 027626 Miyahara 5-6-3 <仲介>大阪府知事(8)第027626号北急ハウジング(株)〒532-0003 大阪府大阪市淀川区宮原5-6-3 |