Used Homes » Kansai » Osaka prefecture » Sakai city north district
 
| | Sakai, Osaka, Kita-ku, 大阪府堺市北区 |
| JR Hanwa Line "Mozu" walk 9 minutes JR阪和線「百舌鳥」歩9分 |
| All rooms renovation completed! ! This had made place many very beautiful has 6 Pledge or more with all the living room storage because the room neat parking spaces 2 units can be ☆ ☆ 全室リフォーム済!!新調箇所多く大変美麗です全居室収納付6帖以上ございますのでお部屋スッキリ駐車スペース2台可能です☆☆ |
| ◆ ◆ Purchase with guarantee! ! ◆ ◆ Mediation and, It is a good place example you combine innovative sale method of purchase outright! 1 month ~ By providing a period of three months position, It will be sold to the general customers. If it could not be any chance sale, We will do the purchase at a price which had decided at the beginning. We especially our joy you in replacement of customers! ◆◆買取保証付!!◆◆仲介と、即金買取りの良い所えお兼ね備えた画期的な売却方法です!1ヶ月 ~ 3ヶ月位の期間を設けて、一般のお客様に販売します。万一売却出来なかった場合は、始めに決めていた価格で当社が買い取りを致します。特に買い替えのお客様にお喜び頂いています! |
Features pickup 特徴ピックアップ | | Parking two Allowed / Immediate Available / 2 along the line more accessible / Super close / It is close to the city / Interior renovation / Facing south / System kitchen / Yang per good / All room storage / Flat to the station / Siemens south road / A quiet residential area / LDK15 tatami mats or more / Around traffic fewer / Japanese-style room / Washbasin with shower / Toilet 2 places / 2-story / Otobasu / Warm water washing toilet seat / Underfloor Storage / The window in the bathroom / TV monitor interphone / High-function toilet / Leafy residential area / Urban neighborhood / Ventilation good / Good view / All room 6 tatami mats or more / City gas / A large gap between the neighboring house / Maintained sidewalk / Flat terrain 駐車2台可 /即入居可 /2沿線以上利用可 /スーパーが近い /市街地が近い /内装リフォーム /南向き /システムキッチン /陽当り良好 /全居室収納 /駅まで平坦 /南側道路面す /閑静な住宅地 /LDK15畳以上 /周辺交通量少なめ /和室 /シャワー付洗面台 /トイレ2ヶ所 /2階建 /オートバス /温水洗浄便座 /床下収納 /浴室に窓 /TVモニタ付インターホン /高機能トイレ /緑豊かな住宅地 /都市近郊 /通風良好 /眺望良好 /全居室6畳以上 /都市ガス /隣家との間隔が大きい /整備された歩道 /平坦地 | Price 価格 | | 23.8 million yen 2380万円 | Floor plan 間取り | | 4LDK 4LDK | Units sold 販売戸数 | | 1 units 1戸 | Land area 土地面積 | | 107.88 sq m (32.63 tsubo) (Registration) 107.88m2(32.63坪)(登記) | Building area 建物面積 | | 105.7 sq m (31.97 tsubo) (Registration) 105.7m2(31.97坪)(登記) | Driveway burden-road 私道負担・道路 | | Nothing, South 3m width 無、南3m幅 | Completion date 完成時期(築年月) | | March 1994 1994年3月 | Address 住所 | | Sakai, Osaka, Kita-ku, Mozuakahata cho 5 大阪府堺市北区百舌鳥赤畑町5 | Traffic 交通 | | JR Hanwa Line "Mozu" walk 9 minutes Nankai Koya Line "Mozu Hachiman" walk 10 minutes Nankai Koya Line "Nakamozu" walk 15 minutes JR阪和線「百舌鳥」歩9分 南海高野線「百舌鳥八幡」歩10分 南海高野線「中百舌鳥」歩15分
| Related links 関連リンク | | [Related Sites of this company] 【この会社の関連サイト】 | Contact お問い合せ先 | | TEL: 0800-602-6616 [Toll free] mobile phone ・ Also available from PHS Caller ID is not notified Please contact the "saw SUUMO (Sumo)" If it does not lead, If the real estate company TEL:0800-602-6616【通話料無料】携帯電話・PHSからもご利用いただけます 発信者番号は通知されません 「SUUMO(スーモ)を見た」と問い合わせください つながらない方、不動産会社の方は
| Building coverage, floor area ratio 建ぺい率・容積率 | | 60% ・ 200% 60%・200% | Time residents 入居時期 | | Immediate available 即入居可 | Land of the right form 土地の権利形態 | | Ownership 所有権 | Structure and method of construction 構造・工法 | | Wooden 2-story 木造2階建 | Renovation リフォーム | | August interior renovation completed (Kitchen 2013 ・ bathroom ・ toilet ・ wall ・ floor ・ all rooms) 2013年8月内装リフォーム済(キッチン・浴室・トイレ・壁・床・全室) | Use district 用途地域 | | Two mid-high 2種中高 | Other limitations その他制限事項 | | Setback: upon 3.6 sq m セットバック:要3.6m2 | Overview and notices その他概要・特記事項 | | Facilities: Public Water Supply, Individual septic tank, City gas, Parking: car space 設備:公営水道、個別浄化槽、都市ガス、駐車場:カースペース | Company profile 会社概要 | | <Mediation> governor of Osaka (2) the first 053,920 No. housing network Sales Co., Ltd. Sakai Yubinbango591-8032 Sakai-shi, Osaka, Kita-ku, Mozuume cho 3-4-4 <仲介>大阪府知事(2)第053920号ハウジングネットワーク販売(株)堺店〒591-8032 大阪府堺市北区百舌鳥梅町3-4-4 |
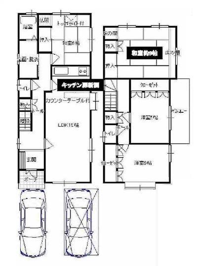
Floor plan間取り図  Renovation completed!
リフォーム済!
Local appearance photo現地外観写真  1BOX car also is OK with a large garage. Day is good on the south-facing.
大型車庫付で1BOX車もOKです。南向きで日当たり良好です。
Kitchenキッチン  It is easy-to-use system kitchen with a back counter.
バックカウンター付の使い勝手のよいシステムキッチンです。
Non-living roomリビング以外の居室  Since the reform is settled, Soku offers preview.
リフォーム済ですので、即ご内覧いただけます。
Floor plan間取り図  23.8 million yen, 4LDK, Land area 107.88 sq m , In building area 105.7 sq m storage with plenty of spacious 4LDK, Garage space is also with 2 cars.
2380万円、4LDK、土地面積107.88m2、建物面積105.7m2 収納たっぷりの広々4LDKで、車庫スペースも2台分付です。
Livingリビング  Bright living plugging sunshine.
日差しの差し込む明るいリビングです。
Bathroom浴室  It is widely felt the bathroom there is a big window.
大きな窓があり広く感じる浴室です。
Kitchenキッチン  Plenty of storage at the counter.
カウンターで収納もたっぷり。
Non-living roomリビング以外の居室  Storage space is abundant.
収納スペース豊富です。
Entrance玄関  Also spacious with storage space also ensure entrance.
玄関も広々で収納スペースも確保。
Wash basin, toilet洗面台・洗面所  Storage is abundant basin space.
収納豊富な洗面スペースです。
Receipt収納  I Japanese-style room is happy with a alcove.
床の間付の和室が嬉しいですね。
Toiletトイレ  Toilet with cleanliness.
清潔感のあるトイレ。
Supermarketスーパー  MaruSusumu Mozu to the store 357m
丸進百舌鳥店まで357m
Kitchenキッチン  This dish is also easy with 3-burner stove.
3口コンロでお料理もしやすいですよ。
Non-living roomリビング以外の居室  I hope there is also a Japanese-style room.
和室もあるといいですね。
Wash basin, toilet洗面台・洗面所  Widely good wash basin and easy to use.
広く使い勝手の良い洗面台。
Receipt収納  What room is also housed plenty.
どのお部屋も収納たっぷりです。
Convenience storeコンビニ  171m to Circle K Sakai Mozuakahata the town shop
サークルK堺百舌鳥赤畑町店まで171m
Kitchenキッチン  It is spacious and can use the kitchen.
広々と使えるキッチンです。
Non-living roomリビング以外の居室  Is a Japanese-style room that bright sunlight enters.
明るい陽射しが入り込む和室です。
Wash basin, toilet洗面台・洗面所  Of course, it is a washing pan.
もちろん洗濯パン付です。
Location
|