Used Homes » Kansai » Osaka prefecture » Sakai City, Minami-ku
 
| | Sakai, Osaka Prefecture, Minami-ku, 大阪府堺市南区 |
| Senboku high-speed rail "Izumigaoka" bus 6 minutes Makizukadai 2 Chokita walk 3 minutes 泉北高速鉄道「泉ケ丘」バス6分槇塚台2丁北歩3分 |
| It has been a designer house of seller like Good design stuck with ventilation and lighting. "seeing is believing" Come See the room. 通風と採光にこだわって設計された売主様こだわりのデザイナーズハウスです。「百聞は一見に如かず」 是非室内をご覧下さい。 |
| The first floor of the spacious LDK is vacant south side is on the terrace, Day is good. Of course also equipped with floor heating, There is also air conditioning of the built-in. It is home to seller recommendation has built stuck. It is difficult to express the goodness of this property in a sentence, First, we recommend that you look at the actual thing. Arusokku home with security. 1階の広々LDKは南側がテラスで空いており、日当たり良好です。もちろん床暖房も完備、ビルドインのエアコンもございます。売主様がこだわって建てたお家です。文章でこの物件の良さを表現するのは難しく、まずは現物をご覧頂くことをお勧めいたします。アルソックホームセキュリティ付。 |
Features pickup 特徴ピックアップ | | Parking three or more possible / Land 50 square meters or more / System kitchen / Bathroom Dryer / Yang per good / A quiet residential area / LDK15 tatami mats or more / Around traffic fewer / Or more before road 6m / Security enhancement / Wide balcony / Bathroom 1 tsubo or more / 2-story / Double-glazing / Warm water washing toilet seat / Nantei / The window in the bathroom / Atrium / TV monitor interphone / IH cooking heater / Walk-in closet / All room 6 tatami mats or more / Living stairs / All-electric / A large gap between the neighboring house / Floor heating / terrace 駐車3台以上可 /土地50坪以上 /システムキッチン /浴室乾燥機 /陽当り良好 /閑静な住宅地 /LDK15畳以上 /周辺交通量少なめ /前道6m以上 /セキュリティ充実 /ワイドバルコニー /浴室1坪以上 /2階建 /複層ガラス /温水洗浄便座 /南庭 /浴室に窓 /吹抜け /TVモニタ付インターホン /IHクッキングヒーター /ウォークインクロゼット /全居室6畳以上 /リビング階段 /オール電化 /隣家との間隔が大きい /床暖房 /テラス | Price 価格 | | 27,900,000 yen 2790万円 | Floor plan 間取り | | 2LDK 2LDK | Units sold 販売戸数 | | 1 units 1戸 | Land area 土地面積 | | 166.7 sq m (registration) 166.7m2(登記) | Building area 建物面積 | | 102.25 sq m (registration) 102.25m2(登記) | Driveway burden-road 私道負担・道路 | | Nothing, Northeast 6m width 無、北東6m幅 | Completion date 完成時期(築年月) | | February 2007 2007年2月 | Address 住所 | | Sakai, Osaka Prefecture, Minami-ku, Makizukadai 2 大阪府堺市南区槇塚台2 | Traffic 交通 | | Senboku high-speed rail "Izumigaoka" bus 6 minutes Makizukadai 2 Chokita walk 3 minutes Senboku high-speed rail "Izumigaoka" walk 20 minutes 泉北高速鉄道「泉ケ丘」バス6分槇塚台2丁北歩3分 泉北高速鉄道「泉ケ丘」歩20分
| Related links 関連リンク | | [Related Sites of this company] 【この会社の関連サイト】 | Person in charge 担当者より | | Person in charge of real-estate and building real estate consulting skills registrant Hiroyuki Takada Age: 40 Daigyokai Experience: 14 years Senboku is Takada of the office of the Director. 14 years in the real estate industry, We have to work with all Sakai city of store. Come Sakai city and Izumi City, Real estate buying and selling of in Osakasayama such as Minami Osaka ・ Rent If you think is to Come Japan Living Service Co., Ltd. Senboku office! 担当者宅建不動産コンサルティング技能登録者高田浩幸年齢:40代業界経験:14年泉北営業所の所長の高田です。不動産業界で14年、全て堺市内の店舗で仕事をして参りました。是非堺市内及び和泉市、大阪狭山市等南大阪で不動産の売買・賃貸をお考えの方は是非日住サービス泉北営業所へ! | Contact お問い合せ先 | | TEL: 0800-603-1274 [Toll free] mobile phone ・ Also available from PHS Caller ID is not notified Please contact the "saw SUUMO (Sumo)" If it does not lead, If the real estate company TEL:0800-603-1274【通話料無料】携帯電話・PHSからもご利用いただけます 発信者番号は通知されません 「SUUMO(スーモ)を見た」と問い合わせください つながらない方、不動産会社の方は
| Building coverage, floor area ratio 建ぺい率・容積率 | | 40% ・ 80% 40%・80% | Time residents 入居時期 | | Consultation 相談 | Land of the right form 土地の権利形態 | | Ownership 所有権 | Structure and method of construction 構造・工法 | | Wooden 2-story 木造2階建 | Use district 用途地域 | | One low-rise 1種低層 | Overview and notices その他概要・特記事項 | | Contact: Hiroyuki Takada, Facilities: Public Water Supply, This sewage, City gas, Parking: car space 担当者:高田浩幸、設備:公営水道、本下水、都市ガス、駐車場:カースペース | Company profile 会社概要 | | <Mediation> Minister of Land, Infrastructure and Transport (11) No. 002287 (Corporation) Japan Living Service Co., Ltd. Senboku office Yubinbango590-0115 Sakai City, Osaka Prefecture, Minami-ku, Chayamadai 1-2-3 (Shop Town Izumigaoka south specialty store street second floor) <仲介>国土交通大臣(11)第002287号(株)日住サービス泉北営業所〒590-0115 大阪府堺市南区茶山台1-2-3 (ショップタウン泉ヶ丘南専門店街2階) |
Local appearance photo現地外観写真  Local (February 2007) Shooting
現地(2007年2月)撮影
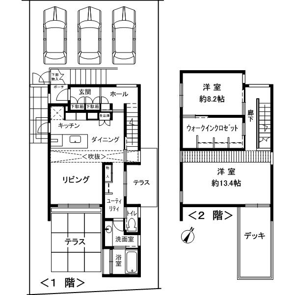
Floor plan間取り図  27,900,000 yen, 2LDK, Land area 166.7 sq m , 3 units can be in the building area 102.25 sq m parking space parallel
2790万円、2LDK、土地面積166.7m2、建物面積102.25m2 駐車スペース並列で3台可能です
Local appearance photo現地外観写真  Local (February 2007) Shooting
現地(2007年2月)撮影
 Local (February 2007) Shooting
現地(2007年2月)撮影
Livingリビング  Indoor (February 2007) Shooting
室内(2007年2月)撮影
Kitchenキッチン  Indoor (February 2007) Shooting
室内(2007年2月)撮影
Non-living roomリビング以外の居室  Indoor (February 2007) Shooting, 2 Kaiyoshitsu 8.2 Pledge
室内(2007年2月)撮影、2階洋室8.2帖
Entrance玄関  Local (February 2007) Shooting
現地(2007年2月)撮影
Wash basin, toilet洗面台・洗面所  Indoor (February 2007) Shooting
室内(2007年2月)撮影
Receipt収納  Indoor (February 2007) Shooting, Walk is a closet.
室内(2007年2月)撮影、ウォークインクロゼットです。
Garden庭  Local (February 2007) Shooting, Living is the back of the terrace.
現地(2007年2月)撮影、リビング裏のテラスです。
Balconyバルコニー  Local (February 2007) Shooting, Sunny second floor of the deck.
現地(2007年2月)撮影、日当たりのよい2階のデッキです。
Other introspectionその他内観  Indoor (February 2007) Shooting, Staircase.
室内(2007年2月)撮影、階段です。
Other localその他現地  Local (February 2007) Shooting, It is on the second floor stairs.
現地(2007年2月)撮影、2階階段上です。
Livingリビング  Indoor (February 2007) Shooting, Living from face-to-face in the kitchen ・ Overlooking the terrace
室内(2007年2月)撮影、対面式のキッチンからリビング・テラスを望む
Non-living roomリビング以外の居室  Indoor (February 2007) Shooting, 2 Kaiyoshitsu 13.4 Pledge
室内(2007年2月)撮影、2階洋室13.4帖
Entrance玄関  Local (February 2007) Shooting, It is the entrance before the porch part.
現地(2007年2月)撮影、玄関前のポーチ部分です。
Garden庭  Local (February 2007) Shooting, Living is the back of the terrace.
現地(2007年2月)撮影、リビング裏のテラスです。
Other localその他現地  Local (February 2007) Shooting, It is on the second floor stairs.
現地(2007年2月)撮影、2階階段上です。
Non-living roomリビング以外の居室  Indoor (February 2007) Shooting, 2 Kaiyoshitsu 13.4 Pledge, It is fashionable and has become a part of the floor skeleton-like.
室内(2007年2月)撮影、2階洋室13.4帖、一部の床スケルトン状になっていてお洒落です。
Kitchenキッチン  Indoor (February 2007) Shooting
室内(2007年2月)撮影
Receipt収納  Indoor (February 2007) Shooting, Kitchen is the back of the storage.
室内(2007年2月)撮影、キッチン裏の収納です。
Bathroom浴室  Indoor (February 2007) Shooting
室内(2007年2月)撮影
Wash basin, toilet洗面台・洗面所  Indoor (02 May 2007) Shooting
室内(2007年02月)撮影
Toiletトイレ  Indoor (February 2007) Shooting, It is with a bidet.
室内(2007年2月)撮影、ウォシュレット付です。
Other localその他現地  Local (February 2007) Shooting, The approach to the entrance.
現地(2007年2月)撮影、玄関へのアプローチです。
Kitchenキッチン  Indoor (February 2007) Shooting
室内(2007年2月)撮影
Location
|