|
|
Osaka FuSakai City Naka-ku,
大阪府堺市中区
|
|
Senboku high-speed rail "Izumigaoka" walk 26 minutes
泉北高速鉄道「泉ケ丘」歩26分
|
|
2006 December refurbishment completed A quiet residential area With parking
H18年12月改修済 閑静な住宅街 駐車場付
|
|
Check POINT facing south, System kitchen, Or more before road 6mese-style room, Washbasin with shower, Barrier-free, 2-story, Warm water washing toilet seat, City gas, Flat terrain
チェックPOINT南向き、システムキッチン、前道6m以上、和室、シャワー付洗面台、バリアフリー、2階建、温水洗浄便座、都市ガス、平坦地
|
Features pickup 特徴ピックアップ | | Facing south / System kitchen / Or more before road 6m / Japanese-style room / Washbasin with shower / Barrier-free / 2-story / Warm water washing toilet seat / City gas / Flat terrain 南向き /システムキッチン /前道6m以上 /和室 /シャワー付洗面台 /バリアフリー /2階建 /温水洗浄便座 /都市ガス /平坦地 |
Price 価格 | | 12.8 million yen 1280万円 |
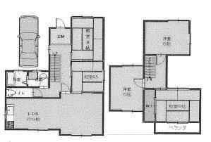
Floor plan 間取り | | 5LDK 5LDK |
Units sold 販売戸数 | | 1 units 1戸 |
Land area 土地面積 | | 110.84 sq m (registration) 110.84m2(登記) |
Building area 建物面積 | | 94.77 sq m 94.77m2 |
Driveway burden-road 私道負担・道路 | | Nothing, North 6m width 無、北6m幅 |
Completion date 完成時期(築年月) | | August 1984 1984年8月 |
Address 住所 | | Osaka FuSakai City Naka-ku, Tsujino 大阪府堺市中区辻之 |
Traffic 交通 | | Senboku high-speed rail "Izumigaoka" walk 26 minutes Senboku high-speed rail "deep" walk 39 minutes 泉北高速鉄道「泉ケ丘」歩26分 泉北高速鉄道「深井」歩39分
|
Related links 関連リンク | | [Related Sites of this company] 【この会社の関連サイト】 |
Person in charge 担当者より | | Rep Kawachi Spring bright Age: 30 Daigyokai Experience: 8 years as early as eight years to enter the real estate industry! We receive your purchase to 400 set close to the customer. We're working like meet a lot of your smile even one set as a professional real estate consultants. Consultation of real estate Please leave all means to me. 担当者河内 春輝年齢:30代業界経験:8年不動産業界に入り早くも8年!400組近くのお客様にご購入戴いております。一組でも多くのお客様の笑顔に出会える様にプロの不動産コンサルタントとして努めてまいります。不動産のご相談は是非私にお任せ下さい。 |
Contact お問い合せ先 | | TEL: 0800-600-8219 [Toll free] mobile phone ・ Also available from PHS Caller ID is not notified Please contact the "saw SUUMO (Sumo)" If it does not lead, If the real estate company TEL:0800-600-8219【通話料無料】携帯電話・PHSからもご利用いただけます 発信者番号は通知されません 「SUUMO(スーモ)を見た」と問い合わせください つながらない方、不動産会社の方は
|
Building coverage, floor area ratio 建ぺい率・容積率 | | 60% ・ 200% 60%・200% |
Time residents 入居時期 | | Consultation 相談 |
Land of the right form 土地の権利形態 | | Ownership 所有権 |
Structure and method of construction 構造・工法 | | Wooden 2-story 木造2階建 |
Use district 用途地域 | | Two dwellings 2種住居 |
Overview and notices その他概要・特記事項 | | Contact: Kawachi Spring bright, Facilities: Public Water Supply, This sewage, City gas 担当者:河内 春輝、設備:公営水道、本下水、都市ガス |
Company profile 会社概要 | | <Mediation> governor of Osaka (2) the first 053,564 No. Century 21 Corporation Frontier Real Estate Sales Minami Osaka store Yubinbango591-8032 Sakai-shi, Osaka, Kita-ku, Mozuume cho 1-15-2 <仲介>大阪府知事(2)第053564号センチュリー21(株)フロンティア不動産販売南大阪店〒591-8032 大阪府堺市北区百舌鳥梅町1-15-2 |