Used Homes » Kansai » Osaka prefecture » Naka-ku, Sakai City
 
| | Osaka FuSakai City Naka-ku, 大阪府堺市中区 |
| Senboku high-speed rail "deep" walk 24 minutes 泉北高速鉄道「深井」歩24分 |
| Full renovation completed! Easy housework was finished in had made place many very beautiful ・ There parking spaces is a dish washing and drying machine with a quiet residential area ☆ ☆ フルリフォーム済!新調箇所多く大変綺麗に仕上がりました家事が楽々・食器洗浄乾燥機付閑静な住宅街です駐車スペースございます☆☆ |
Features pickup 特徴ピックアップ | | Immediate Available / Super close / It is close to the city / System kitchen / Yang per good / A quiet residential area / Around traffic fewer / Japanese-style room / garden / Washbasin with shower / 2-story / Warm water washing toilet seat / The window in the bathroom / TV monitor interphone / Leafy residential area / Ventilation good / Dish washing dryer / City gas / A large gap between the neighboring house / Maintained sidewalk / Flat terrain 即入居可 /スーパーが近い /市街地が近い /システムキッチン /陽当り良好 /閑静な住宅地 /周辺交通量少なめ /和室 /庭 /シャワー付洗面台 /2階建 /温水洗浄便座 /浴室に窓 /TVモニタ付インターホン /緑豊かな住宅地 /通風良好 /食器洗乾燥機 /都市ガス /隣家との間隔が大きい /整備された歩道 /平坦地 | Price 価格 | | 9.8 million yen 980万円 | Floor plan 間取り | | 4LDK 4LDK | Units sold 販売戸数 | | 1 units 1戸 | Land area 土地面積 | | 83.85 sq m (25.36 tsubo) (Registration) 83.85m2(25.36坪)(登記) | Building area 建物面積 | | 78.21 sq m (23.65 tsubo) (Registration) 78.21m2(23.65坪)(登記) | Driveway burden-road 私道負担・道路 | | 9.37 sq m , North 4m width 9.37m2、北4m幅 | Completion date 完成時期(築年月) | | December 1977 1977年12月 | Address 住所 | | Osaka FuSakai City, Naka-ku, Haji-cho 3 大阪府堺市中区土師町3 | Traffic 交通 | | Senboku high-speed rail "deep" walk 24 minutes Nankai Koya Line "egret" walk 27 minutes Nankai Koya Line "Nakamozu" walk 30 minutes 泉北高速鉄道「深井」歩24分 南海高野線「白鷺」歩27分 南海高野線「中百舌鳥」歩30分
| Related links 関連リンク | | [Related Sites of this company] 【この会社の関連サイト】 | Contact お問い合せ先 | | TEL: 0800-602-6616 [Toll free] mobile phone ・ Also available from PHS Caller ID is not notified Please contact the "saw SUUMO (Sumo)" If it does not lead, If the real estate company TEL:0800-602-6616【通話料無料】携帯電話・PHSからもご利用いただけます 発信者番号は通知されません 「SUUMO(スーモ)を見た」と問い合わせください つながらない方、不動産会社の方は
| Building coverage, floor area ratio 建ぺい率・容積率 | | 60% ・ 200% 60%・200% | Time residents 入居時期 | | Immediate available 即入居可 | Land of the right form 土地の権利形態 | | Ownership 所有権 | Structure and method of construction 構造・工法 | | Wooden 2-story 木造2階建 | Renovation リフォーム | | October 2013 interior renovation completed (kitchen ・ bathroom ・ toilet ・ wall ・ floor ・ all rooms) 2013年10月内装リフォーム済(キッチン・浴室・トイレ・壁・床・全室) | Use district 用途地域 | | One dwelling 1種住居 | Overview and notices その他概要・特記事項 | | Facilities: Public Water Supply, This sewage, City gas, Parking: Garage 設備:公営水道、本下水、都市ガス、駐車場:車庫 | Company profile 会社概要 | | <Mediation> governor of Osaka (2) the first 053,920 No. housing network Sales Co., Ltd. Sakai Yubinbango591-8032 Sakai-shi, Osaka, Kita-ku, Mozuume cho 3-4-4 <仲介>大阪府知事(2)第053920号ハウジングネットワーク販売(株)堺店〒591-8032 大阪府堺市北区百舌鳥梅町3-4-4 |
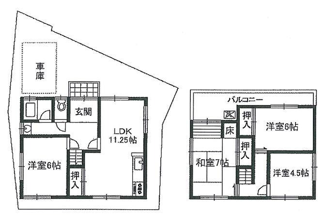
Floor plan間取り図  Full renovation completed
フルリフォーム済
Local appearance photo現地外観写真  There is also a parking space
駐車スペースもございます
Kitchenキッチン  System kitchen had made It will be fun cooking
システムキッチン新調 お料理が楽しくなりますね
Non-living roomリビング以外の居室  Flooring is also re-covering already
フローリングも張替え済です
Floor plan間取り図  9.8 million yen, 4LDK, Land area 83.85 sq m , It is a building area of 78.21 sq m comfortable spacious 4LDK
980万円、4LDK、土地面積83.85m2、建物面積78.21m2 ゆったり広々4LDKです
Livingリビング  Spacious LDK
広いLDKです
Bathroom浴室  Bathroom is also a renovation already
浴室もリフォーム済です
Kitchenキッチン  Also Hakadori cuisine in the 3-burner stove
3口コンロで料理もはかどります
Non-living roomリビング以外の居室  Us capture the bright sunshine to fill the room with large windows
大きな窓で部屋いっぱいに明るい日差しを取り込んでくれます
Entrance玄関  Spacious Spacious an entrance hall
ゆったり広々な玄関ホールです
Wash basin, toilet洗面台・洗面所  Already had made also washstand
洗面台も新調済
Toiletトイレ  Toilet is settled also had made
トイレも新調済です
Balconyバルコニー  Recommended for gardening space ☆
ガーデニングスペースにオススメ☆
Supermarketスーパー  377m until Bandai Sakai Haji shop
万代堺土師店まで377m
Other introspectionその他内観  Convenient and safe TV with intercom
便利で安心なTV付インターフォン
Livingリビング  LDK also renovation completed
LDKもリフォーム済
Kitchenキッチン  Housework with easy dish washing and drying machine
家事が楽々食器洗浄乾燥機付
Non-living roomリビング以外の居室  Good per sun for two-sided lighting
二面採光のため陽当たり良好です
Entrance玄関  There parking space
駐車スペースございます
Balconyバルコニー  This washing machine space
洗濯機スペースです
Convenience storeコンビニ  617m until Thanksgiving Sakai Haji shop
サンクス堺土師店まで617m
Kitchenキッチン  Spacious dining space
広々なダイニングスペース
Location
|