|
|
Sakai, Osaka, Nishi-ku,
大阪府堺市西区
|
|
Nankai Main Line "Suwanomori" walk 6 minutes
南海本線「諏訪ノ森」歩6分
|
|
◆ Nankai Main Line "Suwanomori" 6-minute walk from the train station ◆ Such as in the surrounding area Hamaderakoen, It has been wrapped in a peaceful atmosphere.
◆南海本線『諏訪ノ森』駅から徒歩6分◆周辺には浜寺公園など、のどかな雰囲気に包まれています。
|
|
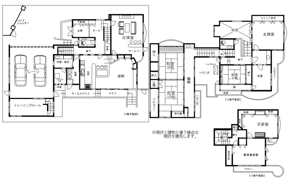
Site area 112.3 square meters, 7LDK! The room is a luxury specification. Brick It is already interior renovation in May 2012 mansion of attention. It will begin more comfortable living. Holiday you can enjoy barbecue and home party at a party room also terrace. [Educational institutions] Hamadera Bible kindergarten 6 minutes Sakai Municipal Hamadera Elementary School 8 minutes Sakai Municipal Hamaderaminami junior high school 22 minutes private Hagoromo Gakuen Junior High School ・ high school 23 minutes [Shopping facilities] Ion town Suwa of forest 7 minutes Koyo Suwa of forest shop 7 minutes Bandai Suwa of forest shop 3 minutes Suwanomori post office 2 min
敷地面積112.3坪、7LDK!室内豪華仕様です。煉瓦造り こだわりの邸宅2012年5月に内装リフォーム済みです。さらに快適な暮らしが始まります。休日はパーティールームまたテラスでバーベキューやホームパーティーが楽しめます。【教育施設】浜寺聖書幼稚園 6分堺市立浜寺小学校 8分堺市立浜寺南中学校 22分私立羽衣学園中学校・高校 23分【お買いもの施設】イオンタウン諏訪の森 7分コーヨー諏訪の森店 7分万代諏訪の森店 3分諏訪ノ森郵便局 2分
|
Features pickup 特徴ピックアップ | | Parking three or more possible / Immediate Available / LDK20 tatami mats or more / Interior renovation / System kitchen / All room storage / Garden more than 10 square meters / Wide balcony / Toilet 2 places / 2 or more sides balcony / Atrium / Dish washing dryer / Whirlpool / terrace 駐車3台以上可 /即入居可 /LDK20畳以上 /内装リフォーム /システムキッチン /全居室収納 /庭10坪以上 /ワイドバルコニー /トイレ2ヶ所 /2面以上バルコニー /吹抜け /食器洗乾燥機 /ジェットバス /テラス |
Event information イベント情報 | | Local guide Board (Please be sure to ask in advance) schedule / Now open 現地案内会(事前に必ずお問い合わせください)日程/公開中 |
Price 価格 | | 65,800,000 yen 6580万円 |
Floor plan 間取り | | 7LDK 7LDK |
Units sold 販売戸数 | | 1 units 1戸 |
Total units 総戸数 | | 1 units 1戸 |
Land area 土地面積 | | 371.25 sq m (registration), Alley-like portion: 39.32 sq m including 371.25m2(登記)、路地状部分:39.32m2含 |
Building area 建物面積 | | 370.4 sq m (registration) 370.4m2(登記) |
Driveway burden-road 私道負担・道路 | | Nothing, West 3.9m width (contact the road width 3.9m) 無、西3.9m幅(接道幅3.9m) |
Completion date 完成時期(築年月) | | January 1995 1995年1月 |
Address 住所 | | Sakai, Osaka, Nishi-ku, HamaderaSuwa Morimachinaka 3 大阪府堺市西区浜寺諏訪森町中3 |
Traffic 交通 | | Nankai Main Line "Suwanomori" walk 6 minutes 南海本線「諏訪ノ森」歩6分
|
Related links 関連リンク | | [Related Sites of this company] 【この会社の関連サイト】 |
Contact お問い合せ先 | | (Ltd.) Akuwan TEL: 0800-603-8226 [Toll free] mobile phone ・ Also available from PHS Caller ID is not notified Please contact the "saw SUUMO (Sumo)" If it does not lead, If the real estate company (株)アークワンTEL:0800-603-8226【通話料無料】携帯電話・PHSからもご利用いただけます 発信者番号は通知されません 「SUUMO(スーモ)を見た」と問い合わせください つながらない方、不動産会社の方は
|
Building coverage, floor area ratio 建ぺい率・容積率 | | 60% ・ 200% 60%・200% |
Time residents 入居時期 | | Immediate available 即入居可 |
Land of the right form 土地の権利形態 | | Ownership 所有権 |
Structure and method of construction 構造・工法 | | Steel frame three-story 鉄骨3階建 |
Renovation リフォーム | | May 2012 interior renovation completed (wall ・ all rooms ・ Exterior) 2012年5月内装リフォーム済(壁・全室・外構) |
Overview and notices その他概要・特記事項 | | Facilities: Public Water Supply, This sewage, City gas, Parking: Garage 設備:公営水道、本下水、都市ガス、駐車場:車庫 |
Company profile 会社概要 | | <Mediation> governor of Osaka (2) No. 053143 (Ltd.) Akuwan Yubinbango593-8329 Sakai, Osaka, Nishi-ku, Shimoda-cho, 26-22 <仲介>大阪府知事(2)第053143号(株)アークワン〒593-8329 大阪府堺市西区下田町26-22 |