Investing in Japanese real estate
Sakai, Osaka Prefecture, Sakai-ku, Nakatadei cho
1998January 57,800,000 yen, 4LDK + S (storeroom), 149.04 sq m | ||
Sakai, Osaka Prefecture, Sakai-ku, Minami-cho Mikunigaoka 6
1991June 67 million yen, 4LDK + S (storeroom), 243.07 sq m | ||
Sakai, Osaka Sakai-ku, Kainochohigashi 1
1998December 28,900,000 yen, 6LDK + S (storeroom), 172.27 sq m | ||
Sakai, Osaka Prefecture, Sakai-ku, Minami-cho Mikunigaoka 5
1975January 31,800,000 yen, 7DK, 116.74 sq m | ||
Sakai, Osaka Prefecture, Sakai-ku, Minami-cho Mikunigaoka 5
1975January 31,800,000 yen, 7DK, 116.74 sq m | ||
Sakai, Osaka Prefecture, Sakai-ku, Nishiminato cho 3
17.3 million yen, 4LDK, 111.6 sq m | ||
Sakai, Osaka Sakai-ku, Midorigaoka Nakamachi 4
1992September 54,800,000 yen, 4LDK + S (storeroom), 206.97 sq m | ||
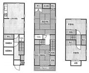
Sakai, Osaka Sakai-ku, Dejimakaigandori 3
2006March 39,800,000 yen, 3LDK + S (storeroom), 133.98 sq m | Sakai, Osaka Sakai-ku, Asahigaoka Kitamachi 3
1993April 55 million yen, 9LDK + S (storeroom), 354.24 sq m | |