1965June
7.8 million yen, 5DK, 56.92 sq m
Used Homes » Kansai » Osaka prefecture » Sakai City Sakai-ku
 
| | Sakai, Osaka Sakai-ku, 大阪府堺市堺区 |
| Hankai Line "Goryomae" walk 13 minutes 阪堺電気軌道阪堺線「御陵前」歩13分 |
Price 価格 | | 7.8 million yen 780万円 | Floor plan 間取り | | 5DK 5DK | Units sold 販売戸数 | | 1 units 1戸 | Land area 土地面積 | | 66.11 sq m (registration) 66.11m2(登記) | Building area 建物面積 | | 56.92 sq m (registration) 56.92m2(登記) | Driveway burden-road 私道負担・道路 | | 6.3 sq m , East 5.4m width (contact the road width 3.9m) 6.3m2、東5.4m幅(接道幅3.9m) | Completion date 完成時期(築年月) | | June 1965 1965年6月 | Address 住所 | | Sakai, Osaka Sakai-ku, Jimbo through 大阪府堺市堺区神保通 | Traffic 交通 | | Hankai Line "Goryomae" walk 13 minutes 阪堺電気軌道阪堺線「御陵前」歩13分
| Contact お問い合せ先 | | (Ltd.) Trustee ・ Partners TEL: 06-6676-3020 Please contact as "saw SUUMO (Sumo)" (株)トラスティ・パートナーズTEL:06-6676-3020「SUUMO(スーモ)を見た」と問い合わせください | Building coverage, floor area ratio 建ぺい率・容積率 | | 60% ・ 200% 60%・200% | Time residents 入居時期 | | Consultation 相談 | Land of the right form 土地の権利形態 | | Ownership 所有権 | Structure and method of construction 構造・工法 | | Wooden 2-story 木造2階建 | Use district 用途地域 | | Two dwellings 2種住居 | Overview and notices その他概要・特記事項 | | Facilities: Public Water Supply, This sewage, City gas, Parking: No 設備:公営水道、本下水、都市ガス、駐車場:無 | Company profile 会社概要 | | <Mediation> governor of Osaka Prefecture (1) No. 056838 (Ltd.) Trustee ・ Partners Yubinbango558-0054 Osaka-shi, Osaka Sumiyoshi-ku, Tezukayamahigashi 1-3-25 <仲介>大阪府知事(1)第056838号(株)トラスティ・パートナーズ〒558-0054 大阪府大阪市住吉区帝塚山東1-3-25 |
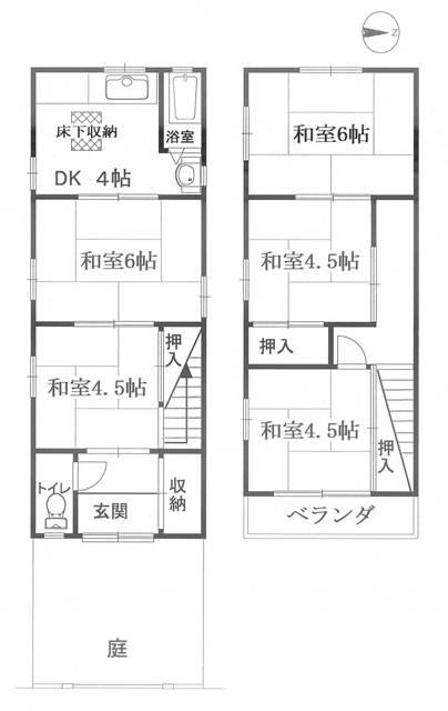
Floor plan間取り図  7.8 million yen, 5DK, Land area 66.11 sq m , Building area 56.92 sq m
780万円、5DK、土地面積66.11m2、建物面積56.92m2
Local appearance photo現地外観写真  Local (July 2013) Shooting
現地(2013年7月)撮影
Local photos, including front road前面道路含む現地写真  Local (July 2013) Shooting
現地(2013年7月)撮影
 Local (07 May 2013) Shooting
現地(2013年07月)撮影
Location
|