|
|
Sakai, Osaka Sakai-ku,
大阪府堺市堺区
|
|
Nankai Main Line "Minato" walk 7 minutes
南海本線「湊」歩7分
|
|
Immediate Available Facing south
即入居可 南向き
|
|
Check POINT immediately Available, 2 along the line more accessible, Facing south, Yang per good, Siemens south roadese-style room, City gas, Flat terrain
チェックPOINT即入居可、2沿線以上利用可、南向き、陽当り良好、南側道路面す、和室、都市ガス、平坦地
|
Features pickup 特徴ピックアップ | | Immediate Available / 2 along the line more accessible / Facing south / Yang per good / Siemens south road / Japanese-style room / City gas / Flat terrain 即入居可 /2沿線以上利用可 /南向き /陽当り良好 /南側道路面す /和室 /都市ガス /平坦地 |
Price 価格 | | 17.3 million yen 1730万円 |
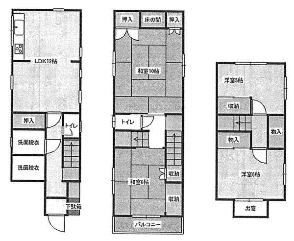
Floor plan 間取り | | 4LDK 4LDK |
Units sold 販売戸数 | | 1 units 1戸 |
Land area 土地面積 | | 77.65 sq m (registration) 77.65m2(登記) |
Building area 建物面積 | | 111.6 sq m 111.6m2 |
Driveway burden-road 私道負担・道路 | | Nothing, South 4m width 無、南4m幅 |
Completion date 完成時期(築年月) | | 11 May 1990 1990年11月 |
Address 住所 | | Sakai, Osaka Prefecture, Sakai-ku, Nishiminato cho 3 大阪府堺市堺区西湊町3 |
Traffic 交通 | | Nankai Main Line "Minato" walk 7 minutes Hankai Line "Goryomae" walk 7 minutes 南海本線「湊」歩7分 阪堺電気軌道阪堺線「御陵前」歩7分
|
Related links 関連リンク | | [Related Sites of this company] 【この会社の関連サイト】 |
Person in charge 担当者より | | Rep Kawachi Spring bright Age: 30 Daigyokai Experience: 8 years as early as eight years to enter the real estate industry! We receive your purchase to 400 set close to the customer. We're working like meet a lot of your smile even one set as a professional real estate consultants. Consultation of real estate Please leave all means to me. 担当者河内 春輝年齢:30代業界経験:8年不動産業界に入り早くも8年!400組近くのお客様にご購入戴いております。一組でも多くのお客様の笑顔に出会える様にプロの不動産コンサルタントとして努めてまいります。不動産のご相談は是非私にお任せ下さい。 |
Contact お問い合せ先 | | TEL: 0800-600-8219 [Toll free] mobile phone ・ Also available from PHS Caller ID is not notified Please contact the "saw SUUMO (Sumo)" If it does not lead, If the real estate company TEL:0800-600-8219【通話料無料】携帯電話・PHSからもご利用いただけます 発信者番号は通知されません 「SUUMO(スーモ)を見た」と問い合わせください つながらない方、不動産会社の方は
|
Building coverage, floor area ratio 建ぺい率・容積率 | | 60% ・ 200% 60%・200% |
Time residents 入居時期 | | Immediate available 即入居可 |
Land of the right form 土地の権利形態 | | Ownership 所有権 |
Structure and method of construction 構造・工法 | | Wooden 1 story 木造1階建 |
Use district 用途地域 | | One dwelling 1種住居 |
Overview and notices その他概要・特記事項 | | Contact: Kawachi Spring bright, Facilities: Public Water Supply, This sewage, City gas 担当者:河内 春輝、設備:公営水道、本下水、都市ガス |
Company profile 会社概要 | | <Mediation> governor of Osaka (2) the first 053,564 No. Century 21 Corporation Frontier Real Estate Sales Minami Osaka store Yubinbango591-8032 Sakai-shi, Osaka, Kita-ku, Mozuume cho 1-15-2 <仲介>大阪府知事(2)第053564号センチュリー21(株)フロンティア不動産販売南大阪店〒591-8032 大阪府堺市北区百舌鳥梅町1-15-2 |