Used Homes » Kansai » Osaka prefecture » Sakai City Sakai-ku
 
| | Sakai, Osaka Sakai-ku, 大阪府堺市堺区 |
| JR Hanwa Line "Mozu" walk 14 minutes JR阪和線「百舌鳥」歩14分 |
| Two garage (one with an electric shutter). LDK floor heating Yes. Inner balcony. Mist sauna. 2-minute walk from the Asahi Junior High School. Daisen up to elementary school 3-minute walk. 車庫2台(1台は電動シャッター付)。LDK床暖房有り。インナーバルコニー。ミストサウナ。旭中学校まで徒歩2分。大仙小学校まで徒歩3分。 |
Features pickup 特徴ピックアップ | | Parking two Allowed / Immediate Available / 2 along the line more accessible / Super close / Interior renovation / System kitchen / Yang per good / Or more before road 6m / Corner lot / Mist sauna / Washbasin with shower / Shutter - garage / Toilet 2 places / Bathroom 1 tsubo or more / Warm water washing toilet seat / The window in the bathroom / TV monitor interphone / Ventilation good / Southwestward / Dish washing dryer / Three-story or more / Flat terrain / Floor heating 駐車2台可 /即入居可 /2沿線以上利用可 /スーパーが近い /内装リフォーム /システムキッチン /陽当り良好 /前道6m以上 /角地 /ミストサウナ /シャワー付洗面台 /シャッタ-車庫 /トイレ2ヶ所 /浴室1坪以上 /温水洗浄便座 /浴室に窓 /TVモニタ付インターホン /通風良好 /南西向き /食器洗乾燥機 /3階建以上 /平坦地 /床暖房 | Price 価格 | | 27,800,000 yen 2780万円 | Floor plan 間取り | | 4LDK 4LDK | Units sold 販売戸数 | | 1 units 1戸 | Total units 総戸数 | | 1 units 1戸 | Land area 土地面積 | | 60.86 sq m 60.86m2 | Building area 建物面積 | | 127.29 sq m (registration), Among the first floor garage 23.02 sq m 127.29m2(登記)、うち1階車庫23.02m2 | Driveway burden-road 私道負担・道路 | | 17.21 sq m , Southwest 16m width (contact the road width 9.7m), Northwest 4m width (contact the road width 7.4m) 17.21m2、南西16m幅(接道幅9.7m)、北西4m幅(接道幅7.4m) | Completion date 完成時期(築年月) | | April 2010 2010年4月 | Address 住所 | | Sakai, Osaka Sakai-ku, Gojo 大阪府堺市堺区五条通 | Traffic 交通 | | JR Hanwa Line "Mozu" walk 14 minutes Nankai Koya Line "Higashi" walk 19 minutes JR阪和線「百舌鳥」歩14分 南海高野線「堺東」歩19分
| Related links 関連リンク | | [Related Sites of this company] 【この会社の関連サイト】 | Person in charge 担当者より | | Person in charge of real-estate and building FP real estate consulting skills registrant Shimakichi Hiroshi Age: 40 Daigyokai Experience: 12 years Nankai "Sakai Higashi ・ Sakai ・ Asakayama ・ Suwanomori ", JR "Mikunigaoka ・ Uenoshiba ", Subway "Kitahanada" station, Of property information, please Omakase. In addition to consultation of your sale or purchase, Rent ・ Effective utilization Save on real estate, such as please feel free to contact us. 担当者宅建FP不動産コンサルティング技能登録者嶋吉 洋年齢:40代業界経験:12年南海「堺東・堺・浅香山・諏訪ノ森」、JR「三国ヶ丘・上野芝」、地下鉄「北花田」駅、の物件情報はおまかせください。ご売却やご購入のご相談のほか、賃貸・有効活用など不動産のことならお気軽にご相談ください。 | Contact お問い合せ先 | | TEL: 0800-603-1250 [Toll free] mobile phone ・ Also available from PHS Caller ID is not notified Please contact the "saw SUUMO (Sumo)" If it does not lead, If the real estate company TEL:0800-603-1250【通話料無料】携帯電話・PHSからもご利用いただけます 発信者番号は通知されません 「SUUMO(スーモ)を見た」と問い合わせください つながらない方、不動産会社の方は
| Building coverage, floor area ratio 建ぺい率・容積率 | | 60% ・ 200% 60%・200% | Time residents 入居時期 | | Immediate available 即入居可 | Land of the right form 土地の権利形態 | | Ownership 所有権 | Structure and method of construction 構造・工法 | | Wooden three-story 木造3階建 | Renovation リフォーム | | March 2013 interior renovation completed (wall) 2013年3月内装リフォーム済(壁) | Use district 用途地域 | | Two mid-high 2種中高 | Other limitations その他制限事項 | | Set-back: already, Quasi-fire zones セットバック:済、準防火地域 | Overview and notices その他概要・特記事項 | | Contact: Shimakichi Hiroshi, Facilities: Public Water Supply, This sewage, City gas 担当者:嶋吉 洋、設備:公営水道、本下水、都市ガス | Company profile 会社概要 | | <Mediation> Minister of Land, Infrastructure and Transport (11) No. 002287 (Corporation) Japan Living Service Co., Ltd. Sakai Higashi office Yubinbango590-0077 Sakai City, Osaka Prefecture, Sakai-ku, Nakakawara cho 1-4-27 (1st floor Konishi building) <仲介>国土交通大臣(11)第002287号(株)日住サービス堺東営業所〒590-0077 大阪府堺市堺区中瓦町1-4-27(小西ビル1階) |
 Local appearance photo
現地外観写真
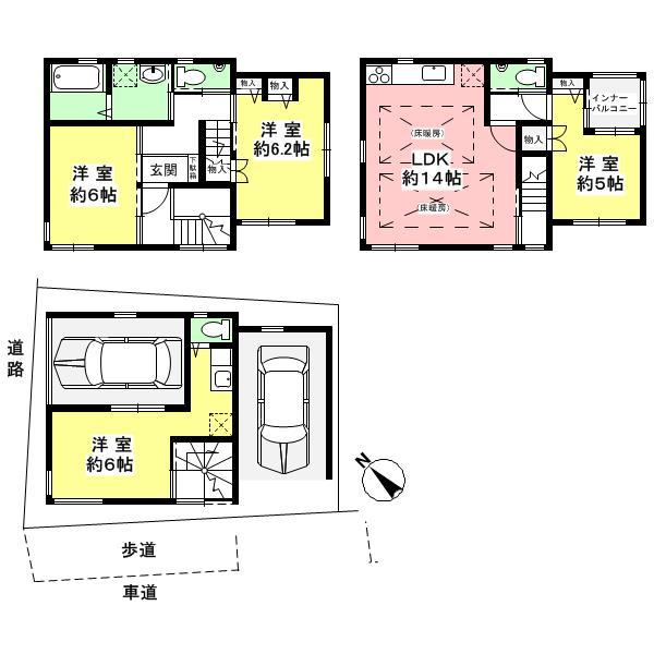
Floor plan間取り図  27,800,000 yen, 4LDK, Land area 60.86 sq m , Building area 127.29 sq m
2780万円、4LDK、土地面積60.86m2、建物面積127.29m2
 Living
リビング
 Bathroom
浴室
 Kitchen
キッチン
 Non-living room
リビング以外の居室
 Entrance
玄関
 Wash basin, toilet
洗面台・洗面所
 Toilet
トイレ
 Local photos, including front road
前面道路含む現地写真
 Parking lot
駐車場
 Balcony
バルコニー
Supermarketスーパー  Until Life Daisen shop 560m
ライフ大仙店まで560m
 Other introspection
その他内観
 Other
その他
 Kitchen
キッチン
 Non-living room
リビング以外の居室
 Entrance
玄関
 Parking lot
駐車場
 686m to Super Tamade Sakai Higashi store
スーパー玉出堺東店まで686m
 Non-living room
リビング以外の居室
Location
|