1980May
12.8 million yen, 4LDK, 89.1 sq m
Used Homes » Kansai » Osaka prefecture » Sennangun
 
| | Osaka Sennangun kumatori 大阪府泉南郡熊取町 |
| JR Hanwa Line "Kumatori" bus 7 minutes large Ayumi Uraguchi 1 minute JR阪和線「熊取」バス7分大浦口歩1分 |
Features pickup 特徴ピックアップ | | Parking two Allowed / Immediate Available / Super close / Interior renovation / System kitchen / A quiet residential area / LDK15 tatami mats or more / Japanese-style room / 2-story / Ventilation good / City gas / Flat terrain 駐車2台可 /即入居可 /スーパーが近い /内装リフォーム /システムキッチン /閑静な住宅地 /LDK15畳以上 /和室 /2階建 /通風良好 /都市ガス /平坦地 | Price 価格 | | 12.8 million yen 1280万円 | Floor plan 間取り | | 4LDK 4LDK | Units sold 販売戸数 | | 1 units 1戸 | Land area 土地面積 | | 122.56 sq m (registration) 122.56m2(登記) | Building area 建物面積 | | 89.1 sq m (registration) 89.1m2(登記) | Driveway burden-road 私道負担・道路 | | Nothing, North 4.7m width 無、北4.7m幅 | Completion date 完成時期(築年月) | | May 1980 1980年5月 | Address 住所 | | Osaka Sennangun kumatori Ogaito 2 大阪府泉南郡熊取町小垣内2 | Traffic 交通 | | JR Hanwa Line "Kumatori" bus 7 minutes large Ayumi Uraguchi 1 minute JR阪和線「熊取」バス7分大浦口歩1分
| Related links 関連リンク | | [Related Sites of this company] 【この会社の関連サイト】 | Contact お問い合せ先 | | Ltd. Sakura Real Estate TEL: 0120-431040 [Toll free] Please contact the "saw SUUMO (Sumo)" (株)さくら不動産TEL:0120-431040【通話料無料】「SUUMO(スーモ)を見た」と問い合わせください | Building coverage, floor area ratio 建ぺい率・容積率 | | 60% ・ 200% 60%・200% | Time residents 入居時期 | | Immediate available 即入居可 | Land of the right form 土地の権利形態 | | Ownership 所有権 | Structure and method of construction 構造・工法 | | Wooden 2-story 木造2階建 | Company profile 会社概要 | | <Mediation> governor of Osaka (2) No. 049785 (Corporation) All Japan Real Estate Association (Corporation) Kinki district Real Estate Fair Trade Council member Co., Ltd. Sakura real estate Yubinbango596-0812 Osaka Kishiwada Omachi 365 <仲介>大阪府知事(2)第049785号(公社)全日本不動産協会会員 (公社)近畿地区不動産公正取引協議会加盟(株)さくら不動産〒596-0812 大阪府岸和田市大町365 |
Local appearance photo現地外観写真  Parking two Allowed! September 2011 remodeling already. It has been room in very good use.
駐車2台可!平成23年9月リフォーム工事済。室内大変きれいに使用されてます。
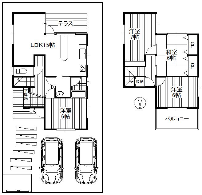
Floor plan間取り図  12.8 million yen, 4LDK, Land area 122.56 sq m , Building area 89.1 sq m 4LDK.
1280万円、4LDK、土地面積122.56m2、建物面積89.1m2 4LDK。
Location
|