Used Homes » Kansai » Osaka prefecture » Settsu


Osaka Prefecture Settsu
Hankyu Kyoto Line "Shojaku" walk 18 minutes
☆ There is on-site parking ☆ Furnished per model house ☆ LDK about 14.9 Pledge
[Housing exhibition fair - & Remodeling Fair -] ◆ Also 2014 held! ◆ January 11 (Sat) ~ 13 days (holiday) is, Happy privilege full of 3 days ☆ ・ I want to know now the "consumption tax increase and loan deduction", Individual consultations free of charge to the experts ・ Listing also Hokusetsu simultaneously exhibited 1,100! ・ Balloon art and also present plan Why do not you find the fun house? .
Features pickup
Immediate Available / Or more before road 6m / 2-story / City gas
Price
29,800,000 yen
Floor plan
4LDK
Units sold
1 units
Land area
85.59 sq m (registration)
Building area
87.2 sq m (registration)
Driveway burden-road
Nothing, West 6.8m width
Completion date
September 2012
Address
Osaka Prefecture Settsu Higashibefu 4
Traffic
Hankyu Kyoto Line "Shojaku" walk 18 minutes
Related links
[Related Sites of this company]
Person in charge
Person in charge of real-estate and building original FutoshiTatsuki hobby ・ ・ ・ golf, Football, I will do my best so that you can have the best of the suggestions in a ball game in general customers such as.
Contact
TEL: 0800-603-2287 [Toll free] mobile phone ・ Also available from PHS
Caller ID is not notified
Please contact the "saw SUUMO (Sumo)"
If it does not lead, If the real estate company
Building coverage, floor area ratio
60% ・ 200%
Time residents
Immediate available
Land of the right form
Ownership
Structure and method of construction
Wooden 2-story
Use district
One dwelling
Overview and notices
Contact: original FutoshiTatsuki, Facilities: Public Water Supply, This sewage, City gas
Company profile
<Mediation> governor of Osaka (10) No. 021564 (Ltd.) Mishima Corporation Senrioka shop Yubinbango566-0001 Osaka Settsu Senrioka 2-13-24


Local appearance photo

Local appearance photo. appearance
appearance

Local appearance photo. appearance
appearance

Local photos, including front road

Local photos, including front road. Frontal road
Frontal road

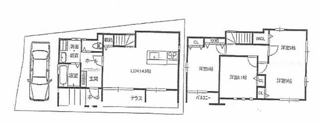
Floor plan

Floor plan. 29,800,000 yen, 4LDK, Land area 85.59 sq m , Building area 87.2 sq m Floor
29,800,000 yen, 4LDK, Land area 85.59 sq m , Building area 87.2 sq m Floor

Local appearance photo

Local appearance photo. appearance
appearance

Local photos, including front road

Local photos, including front road. Frontal road
Frontal road

Other

Other. Beppu elementary school
Beppu elementary school

Other. Toraiyaru
Toraiyaru

Other. Fourth junior high school
Fourth junior high school

Other. Hankyushojaku Station
Hankyushojaku Station

Other. Monorail Minami Settsu Station
Monorail Minami Settsu Station

Other. Marunaka
Marunaka

Other. Server Beppu
Server Beppu

Other. Befukodomo Gardens
Befukodomo Gardens

Other. Beppu post office
Beppu post office



Location