|
|
Osaka Prefecture Settsu
大阪府摂津市
|
|
Osaka Monorail Main Line "sawaragi" walk 42 minutes
大阪モノレール本線「沢良宜」歩42分
|
|
○ adjacent land is a park in the quiet residential area ○ 2001 architecture at this size ○ flooring use solid wood
○閑静な住宅地で隣地が公園です○平成13年建築でこの広さ○フローリングは無垢材使用
|
|
Yang per good, A quiet residential area, 2-story, The window in the bathroom, Ventilation good, Flat terrain
陽当り良好、閑静な住宅地、2階建、浴室に窓、通風良好、平坦地
|
Features pickup 特徴ピックアップ | | Yang per good / A quiet residential area / 2-story / The window in the bathroom / Ventilation good / Flat terrain 陽当り良好 /閑静な住宅地 /2階建 /浴室に窓 /通風良好 /平坦地 |
Price 価格 | | 16.8 million yen 1680万円 |
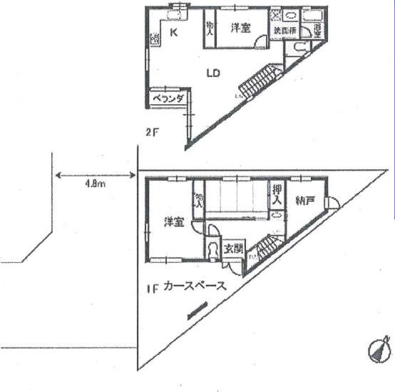
Floor plan 間取り | | 4LDK 4LDK |
Units sold 販売戸数 | | 1 units 1戸 |
Land area 土地面積 | | 81.85 sq m (24.75 tsubo) (Registration) 81.85m2(24.75坪)(登記) |
Building area 建物面積 | | 89.52 sq m (27.07 tsubo) (Registration) 89.52m2(27.07坪)(登記) |
Driveway burden-road 私道負担・道路 | | Nothing 無 |
Completion date 完成時期(築年月) | | December 2001 2001年12月 |
Address 住所 | | Osaka Prefecture Settsu Torikaishin cho 2 大阪府摂津市鳥飼新町2 |
Traffic 交通 | | Osaka Monorail Main Line "sawaragi" walk 42 minutes Hankyu Kyoto Line "Minami Ibaraki" walk 44 minutes Osaka Monorail Main Line "Minami Ibaraki" walk 45 minutes 大阪モノレール本線「沢良宜」歩42分 阪急京都線「南茨木」歩44分 大阪モノレール本線「南茨木」歩45分
|
Person in charge 担当者より | | Person in charge of real-estate and building Wakiya Taketen Age: 30 Daigyokai experience: This is Wakiya to 10 years as a "real-estate transaction specialist" have acquired the status of "real estate management Qualified Person"! Real estate history will be about another Karekore 10 years! Buying and selling are responsible, but will anything immediately answer, such as that of the lease of the thing and renovation 担当者宅建脇谷 竹典年齢:30代業界経験:10年「宅地建物取引主任者」と「賃貸不動産経営管理士」の資格を取得している脇谷です!不動産歴はもうかれこれ10年ほどになります!売買担当ですが賃貸のことやリフォームのことなどなんでもすぐお答えいたします |
Contact お問い合せ先 | | TEL: 0800-805-4071 [Toll free] mobile phone ・ Also available from PHS Caller ID is not notified Please contact the "saw SUUMO (Sumo)" If it does not lead, If the real estate company TEL:0800-805-4071【通話料無料】携帯電話・PHSからもご利用いただけます 発信者番号は通知されません 「SUUMO(スーモ)を見た」と問い合わせください つながらない方、不動産会社の方は
|
Building coverage, floor area ratio 建ぺい率・容積率 | | 60% ・ 200% 60%・200% |
Time residents 入居時期 | | Immediate available 即入居可 |
Land of the right form 土地の権利形態 | | Ownership 所有権 |
Structure and method of construction 構造・工法 | | Wooden 2-story 木造2階建 |
Use district 用途地域 | | One dwelling 1種住居 |
Overview and notices その他概要・特記事項 | | Contact: Wakiya Taketen, Facilities: Public Water Supply, This sewage, City gas, Parking: Garage 担当者:脇谷 竹典、設備:公営水道、本下水、都市ガス、駐車場:車庫 |
Company profile 会社概要 | | <Mediation> governor of Osaka Prefecture (1) No. 056319 (Ltd.) rack housing Kadoma shop Yubinbango571-0065 Osaka Kadoma KAKIUCHI cho 3-17 <仲介>大阪府知事(1)第056319号(株)ラックハウジング門真店〒571-0065 大阪府門真市垣内町3-17 |