Used Homes » Kansai » Osaka prefecture » Shijōnawate
 
| | Osaka shijonawate 大阪府四條畷市 |
| JR katamachi line "Shinobukeoka" walk 10 minutes JR片町線「忍ケ丘」歩10分 |
| ▼ 4DK + parking ▼ facing south in a good location ▼ delivery immediately possible ▼ All rooms 6 Pledge or more of floor plan of a 10-minute walk from the sun hit good ▼ station ▼4DK+駐車場▼南向きで陽当たり良好▼駅まで徒歩10分の好立地▼引渡し即可能▼全室6帖以上の間取り |
| ▼ south balcony ▼ There is a wide attic storage ▼ Shijonawate elementary school, Shijonawate junior high school ▼南バルコニー▼広い屋根裏収納あり▼四條畷小学校、四條畷中学校 |
Features pickup 特徴ピックアップ | | Immediate Available / Facing south / Yang per good / Siemens south road / A quiet residential area / Japanese-style room / 2-story / South balcony / The window in the bathroom / All room 6 tatami mats or more / Attic storage 即入居可 /南向き /陽当り良好 /南側道路面す /閑静な住宅地 /和室 /2階建 /南面バルコニー /浴室に窓 /全居室6畳以上 /屋根裏収納 | Price 価格 | | 13.8 million yen 1380万円 | Floor plan 間取り | | 4DK 4DK | Units sold 販売戸数 | | 1 units 1戸 | Land area 土地面積 | | 70.42 sq m (registration) 70.42m2(登記) | Building area 建物面積 | | 85.46 sq m (registration) 85.46m2(登記) | Driveway burden-road 私道負担・道路 | | Nothing, South 4m width 無、南4m幅 | Completion date 完成時期(築年月) | | June 1988 1988年6月 | Address 住所 | | Osaka shijonawate Nakano 3 大阪府四條畷市中野3 | Traffic 交通 | | JR katamachi line "Shinobukeoka" walk 10 minutes JR片町線「忍ケ丘」歩10分
| Contact お問い合せ先 | | (Ltd.) Nakatomi building contractors TEL: 0800-603-1649 [Toll free] mobile phone ・ Also available from PHS Caller ID is not notified Please contact the "saw SUUMO (Sumo)" If it does not lead, If the real estate company (株)中富工務店TEL:0800-603-1649【通話料無料】携帯電話・PHSからもご利用いただけます 発信者番号は通知されません 「SUUMO(スーモ)を見た」と問い合わせください つながらない方、不動産会社の方は
| Building coverage, floor area ratio 建ぺい率・容積率 | | 60% ・ 200% 60%・200% | Time residents 入居時期 | | Immediate available 即入居可 | Land of the right form 土地の権利形態 | | Ownership 所有権 | Structure and method of construction 構造・工法 | | Wooden 2-story 木造2階建 | Use district 用途地域 | | Two dwellings 2種住居 | Overview and notices その他概要・特記事項 | | Facilities: Public Water Supply, This sewage, Parking: car space 設備:公営水道、本下水、駐車場:カースペース | Company profile 会社概要 | | <Mediation> governor of Osaka (6) No. 033657 (Ltd.) Nakatomi builders Yubinbango575-0063 Osaka shijonawate Seiryu 18-11 <仲介>大阪府知事(6)第033657号(株)中富工務店〒575-0063 大阪府四條畷市清瀧18-11 |
 Local appearance photo
現地外観写真
 Local photos, including front road
前面道路含む現地写真
 Local photos, including front road
前面道路含む現地写真
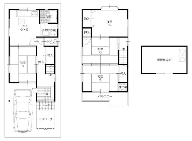
Floor plan間取り図  13.8 million yen, 4DK, Land area 70.42 sq m , Building area 85.46 sq m
1380万円、4DK、土地面積70.42m2、建物面積85.46m2
Supermarketスーパー  985m to supermarket Lucky Shinobuke hill station shop
スーパーマーケットラッキー忍ケ丘駅前店まで985m
Drug storeドラッグストア  830m until the giraffe DoShinobukeoka shop
キリン堂忍ヶ丘店まで830m
 Until drugstores Red Cliff Shinobuke hill shop 806m
ドラッグストアーアカカベ忍ヶ丘店まで806m
Kindergarten ・ Nursery幼稚園・保育園  Nawate to kindergarten 397m
畷幼稚園まで397m
Hospital病院  1025m until the medical corporation Bhakti Board Tesseikainoshinkeigekabyoin
医療法人信愛会畷生会脳神経外科病院まで1025m
Post office郵便局  Shijonawate 817m until the post office
四條畷郵便局まで817m
Government office役所  Shijonawate 497m to City Hall
四條畷市役所まで497m
Library図書館  Shijonawate stand Shijonawate to Library 287m
四條畷市立四條畷図書館まで287m
Location
|