Used Homes » Kansai » Osaka prefecture » Shijōnawate


Osaka shijonawate
JR katamachi line "Shinobukeoka" walk 16 minutes
■ 5DK + garage ■ Widely frontage, Bright house! ■ Delivery is immediately possible. ■ Daylighting good two-plane balcony ■ Housed many, Is a good floor plan easy to use!
■ The first kind low-rise residential dedicated a quiet residential area ■ You can re-architecture.
Features pickup
Immediate Available / Yang per good / A quiet residential area / Japanese-style room / Wide balcony / 2 or more sides balcony / Ventilation good / Three-story or more / All rooms are two-sided lighting
Price
7.8 million yen
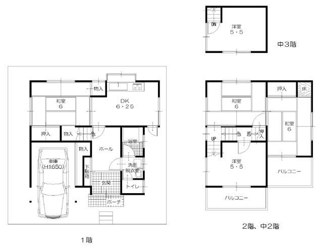
Floor plan
5DK
Units sold
1 units
Land area
89.67 sq m (registration)
Building area
95.1 sq m (registration)
Driveway burden-road
Nothing, West 4.8m width
Completion date
July 1980
Address
Osaka shijonawate Okayamahigashi 5
Traffic
JR katamachi line "Shinobukeoka" walk 16 minutes
JR katamachi line "Higashineyagawa" walk 27 minutes
JR katamachi line "Shijonawate" walk 37 minutes
Contact
(Ltd.) Nakatomi building contractors TEL: 0800-603-1649 [Toll free] mobile phone ・ Also available from PHS
Caller ID is not notified
Please contact the "saw SUUMO (Sumo)"
If it does not lead, If the real estate company
Building coverage, floor area ratio
Fifty percent ・ Hundred percent
Time residents
Immediate available
Land of the right form
Ownership
Structure and method of construction
Wooden three-story
Use district
One low-rise
Overview and notices
Facilities: Public Water Supply, This sewage, City gas, Parking: Garage
Company profile
<Mediation> governor of Osaka (6) No. 033657 (Ltd.) Nakatomi builders Yubinbango575-0063 Osaka shijonawate Seiryu 18-11


Local appearance photo
Local appearance photo

Bathroom
Bathroom

Living
Living

Floor plan

Floor plan. 7.8 million yen, 5DK, Land area 89.67 sq m , Building area 95.1 sq m
7.8 million yen, 5DK, Land area 89.67 sq m , Building area 95.1 sq m

Non-living room
Non-living room

Supermarket

Supermarket. 1271m to gourmet City Shinobuke hill shop
1271m to gourmet City Shinobuke hill shop

Drug store

Drug store. 1447m up giraffe DoShinobukeoka shop
1447m up giraffe DoShinobukeoka shop

Junior high school

Junior high school. Shijonawate stand Shijonawate until junior high school 688m
Shijonawate stand Shijonawate until junior high school 688m

Primary school

Primary school. 756m until shijonawate stand Shinobuke hill Elementary School
756m until shijonawate stand Shinobuke hill Elementary School

Hospital

Hospital. Social care corporation bhakti Board to Tesseikainoshinkeigekabyoin 2023m
Social care corporation bhakti Board to Tesseikainoshinkeigekabyoin 2023m

Government office

Government office. Shijonawate 2152m to city hall
Shijonawate 2152m to city hall

Library

library. Shijonawate stand Shijonawate to Library 1651m
Shijonawate stand Shijonawate to Library 1651m



Location