Used Homes » Kansai » Osaka prefecture » Shijōnawate
 
| | Osaka shijonawate 大阪府四條畷市 |
| Kintetsu Keihanna line "Ikoma" 10 minutes Tawaradai 8-chome, walk 3 minutes by bus 近鉄けいはんな線「生駒」バス10分田原台8丁目歩3分 |
| ▼ 4SLDK + dug Garage (parallel parking two possible) ▼ land about 60 square meters ▼ south-facing with a good per sun! ▼ of front 6m spacious road! ▼ There custom home ▼ wide Nantei using cypress columns. Also home garden! ▼4SLDK+掘り込み車庫(並列駐車2台可能)▼土地約60坪▼南向きで陽当たり良好!▼前面6mの広々道路!▼檜柱を使った注文住宅▼広い南庭あり。家庭菜園も! |
| ▼ All rooms 7 quires more ・ Easy-to-use floor plan with all rooms housed ▼ south-facing wide balcony ▼ toilet two places ▼ delivery immediately possible ▼全室7帖以上・全室収納付きの使いやすい間取り▼南向きワイドバルコニー▼トイレ2ヶ所▼引渡し即可能 |
Features pickup 特徴ピックアップ | | Parking two Allowed / Immediate Available / Land 50 square meters or more / LDK18 tatami mats or more / Facing south / System kitchen / Yang per good / All room storage / Siemens south road / A quiet residential area / Or more before road 6m / Japanese-style room / Face-to-face kitchen / Wide balcony / Toilet 2 places / 2-story / South balcony / Warm water washing toilet seat / Nantei / The window in the bathroom / Leafy residential area / Wood deck / All room 6 tatami mats or more / City gas / Storeroom 駐車2台可 /即入居可 /土地50坪以上 /LDK18畳以上 /南向き /システムキッチン /陽当り良好 /全居室収納 /南側道路面す /閑静な住宅地 /前道6m以上 /和室 /対面式キッチン /ワイドバルコニー /トイレ2ヶ所 /2階建 /南面バルコニー /温水洗浄便座 /南庭 /浴室に窓 /緑豊かな住宅地 /ウッドデッキ /全居室6畳以上 /都市ガス /納戸 | Price 価格 | | 25,800,000 yen 2580万円 | Floor plan 間取り | | 4LDK + S (storeroom) 4LDK+S(納戸) | Units sold 販売戸数 | | 1 units 1戸 | Land area 土地面積 | | 200.02 sq m (60.50 tsubo) (Registration) 200.02m2(60.50坪)(登記) | Building area 建物面積 | | 125.09 sq m (37.83 tsubo) (Registration) 125.09m2(37.83坪)(登記) | Driveway burden-road 私道負担・道路 | | Nothing, South 6m width 無、南6m幅 | Completion date 完成時期(築年月) | | November 1995 1995年11月 | Address 住所 | | Osaka shijonawate Tawaradai 8 大阪府四條畷市田原台8 | Traffic 交通 | | Kintetsu Keihanna line "Ikoma" 10 minutes Tawaradai 8-chome, walk 3 minutes by bus Kintetsu Nara Line "Ikoma" walk 42 minutes Kintetsu Keihanna line "Shiraniwadai" walk 40 minutes 近鉄けいはんな線「生駒」バス10分田原台8丁目歩3分 近鉄奈良線「生駒」歩42分 近鉄けいはんな線「白庭台」歩40分
| Contact お問い合せ先 | | (Ltd.) Nakatomi building contractors TEL: 0800-603-1649 [Toll free] mobile phone ・ Also available from PHS Caller ID is not notified Please contact the "saw SUUMO (Sumo)" If it does not lead, If the real estate company (株)中富工務店TEL:0800-603-1649【通話料無料】携帯電話・PHSからもご利用いただけます 発信者番号は通知されません 「SUUMO(スーモ)を見た」と問い合わせください つながらない方、不動産会社の方は
| Building coverage, floor area ratio 建ぺい率・容積率 | | Fifty percent ・ Hundred percent 50%・100% | Time residents 入居時期 | | Immediate available 即入居可 | Land of the right form 土地の権利形態 | | Ownership 所有権 | Structure and method of construction 構造・工法 | | Wooden 2-story 木造2階建 | Use district 用途地域 | | One low-rise 1種低層 | Overview and notices その他概要・特記事項 | | Facilities: Public Water Supply, This sewage, City gas, Parking: Garage 設備:公営水道、本下水、都市ガス、駐車場:車庫 | Company profile 会社概要 | | <Mediation> governor of Osaka (6) No. 033657 (Ltd.) Nakatomi builders Yubinbango575-0063 Osaka shijonawate Seiryu 18-11 <仲介>大阪府知事(6)第033657号(株)中富工務店〒575-0063 大阪府四條畷市清瀧18-11 |
 Local appearance photo
現地外観写真
 Kitchen
キッチン
 Living
リビング
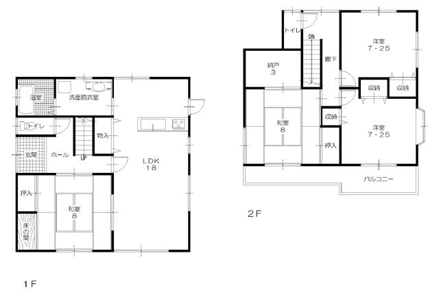
Floor plan間取り図  25,800,000 yen, 4LDK + S (storeroom), Land area 200.02 sq m , Building area 125.09 sq m
2580万円、4LDK+S(納戸)、土地面積200.02m2、建物面積125.09m2
 Bathroom
浴室
 Non-living room
リビング以外の居室
 Wash basin, toilet
洗面台・洗面所
 Toilet
トイレ
 Local photos, including front road
前面道路含む現地写真
 Garden
庭
Supermarketスーパー  972m to supermarket KINSHO Tahara shop
スーパーマーケットKINSHO田原店まで972m
 Non-living room
リビング以外の居室
Convenience storeコンビニ  MINISTOP Shijonawate until Tawaradai shop 482m
ミニストップ四條畷田原台店まで482m
 Non-living room
リビング以外の居室
Junior high school中学校  Shijonawate 1362m to stand Tahara junior high school
四條畷市立田原中学校まで1362m
Primary school小学校  Shijonawate 1483m to stand Tahara elementary school
四條畷市立田原小学校まで1483m
Post office郵便局  875m to Tahara simple post office
田原簡易郵便局まで875m
Library図書館  Shijonawate 2173m to stand Tahara Library
四條畷市立田原図書館まで2173m
Park公園  242m to Chatan Park
北谷公園まで242m
 Tawaradai 50m up to 8-chome
田原台8丁目まで50m
Location
|