1972February
4.6 million yen, 5DK + S (storeroom), 110.07 sq m
Used Homes » Kansai » Osaka prefecture » Shijōnawate
 
| | Osaka shijonawate 大阪府四條畷市 |
| JR katamachi line "Shinobukeoka" 10 minutes Kiyotaki park walk 1 minute bus JR片町線「忍ケ丘」バス10分清滝団地歩1分 |
| ◆ 5DK + free space ◆ Double-sided road (east ・ West) ◆ Wide balcony ◆ West view good! Views of the city. ◆ Bus stop walk 1 minute. (Bus Rotary adjacent) ◆5DK+フリースペース◆両面道路(東・西)◆広いバルコニー◆西側見晴らし良好!市内を一望できます。◆バス停歩1分。(バスロータリー隣接) |
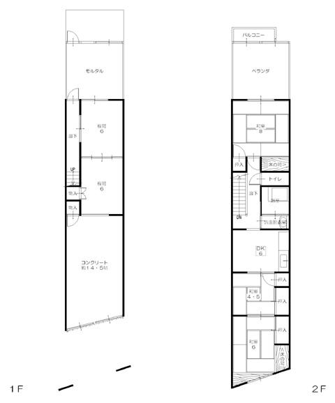
| ◆ There is free space of about 14.5 Pledge and about 8 pledge. ◆ Steel frame ◆約14.5帖と約8帖のフリースペースあり。◆鉄骨造 |
Features pickup 特徴ピックアップ | | A quiet residential area / Or more before road 6m / Japanese-style room / Wide balcony / 2-story / Good view / City gas 閑静な住宅地 /前道6m以上 /和室 /ワイドバルコニー /2階建 /眺望良好 /都市ガス | Price 価格 | | 4.6 million yen 460万円 | Floor plan 間取り | | 5DK + S (storeroom) 5DK+S(納戸) | Units sold 販売戸数 | | 1 units 1戸 | Land area 土地面積 | | 100.24 sq m 100.24m2 | Building area 建物面積 | | 110.07 sq m 110.07m2 | Driveway burden-road 私道負担・道路 | | Nothing, East 6.8m width, West 4.8m width 無、東6.8m幅、西4.8m幅 | Completion date 完成時期(築年月) | | February 1972 1972年2月 | Address 住所 | | Osaka shijonawate Kiyotakishin cho 大阪府四條畷市清滝新町 | Traffic 交通 | | JR katamachi line "Shinobukeoka" 10 minutes Kiyotaki park walk 1 minute bus JR katamachi line "Shijonawate" bus 9 minutes Kiyotaki park walk 1 minute Keihan "Owada" bus 19 minutes Kiyotaki park walk 1 minute JR片町線「忍ケ丘」バス10分清滝団地歩1分 JR片町線「四条畷」バス9分清滝団地歩1分 京阪本線「大和田」バス19分清滝団地歩1分
| Contact お問い合せ先 | | (Ltd.) Nakatomi building contractors TEL: 0800-603-1649 [Toll free] mobile phone ・ Also available from PHS Caller ID is not notified Please contact the "saw SUUMO (Sumo)" If it does not lead, If the real estate company (株)中富工務店TEL:0800-603-1649【通話料無料】携帯電話・PHSからもご利用いただけます 発信者番号は通知されません 「SUUMO(スーモ)を見た」と問い合わせください つながらない方、不動産会社の方は
| Building coverage, floor area ratio 建ぺい率・容積率 | | 60% ・ 200% 60%・200% | Time residents 入居時期 | | Consultation 相談 | Land of the right form 土地の権利形態 | | Ownership 所有権 | Structure and method of construction 構造・工法 | | Steel 2-story 鉄骨2階建 | Use district 用途地域 | | One middle and high 1種中高 | Overview and notices その他概要・特記事項 | | Facilities: Public Water Supply, This sewage, City gas 設備:公営水道、本下水、都市ガス | Company profile 会社概要 | | <Mediation> governor of Osaka (6) No. 033657 (Ltd.) Nakatomi builders Yubinbango575-0063 Osaka shijonawate Seiryu 18-11 <仲介>大阪府知事(6)第033657号(株)中富工務店〒575-0063 大阪府四條畷市清瀧18-11 |
Floor plan間取り図  4.6 million yen, 5DK + S (storeroom), Land area 100.24 sq m , Building area 110.07 sq m
460万円、5DK+S(納戸)、土地面積100.24m2、建物面積110.07m2
Supermarketスーパー  1399m to gourmet City Shinobuke hill shop
グルメシティ忍ヶ丘店まで1399m
 1469m to Lucky Shinobuke hill station shop
ラッキー忍ヶ丘駅前店まで1469m
Drug storeドラッグストア  Drugstore Red Cliff Shinobuke up hill shop 1429m
ドラッグストアアカカベ忍ヶ丘店まで1429m
Junior high school中学校  Shijonawate stand Shijonawate until junior high school 816m
四條畷市立四條畷中学校まで816m
Hospital病院  Social care corporation bhakti Board to Tesseikainoshinkeigekabyoin 2151m
社会医療法人信愛会畷生会脳神経外科病院まで2151m
Government office役所  Shijonawate 1972m to city hall
四條畷市役所まで1972m
Library図書館  Shijonawate stand Shijonawate to Library 1515m
四條畷市立四條畷図書館まで1515m
Location
|