|
|
Suita, Osaka Prefecture
大阪府吹田市
|
|
Hankyu Senri Line "Senriyama" walk 5 minutes
阪急千里線「千里山」歩5分
|
|
From Hankyu Senriyama Station about 5 minutes walk, A quiet residential area in the parkland. Parking 3 units can be. Facing the south road of width about 6.1m, Sunny. Sauna in the spacious floor plan of 5SLDK, Yes Jacuzzi
阪急千里山駅から徒歩約5分の、風致地区内の閑静な住宅地。駐車場3台可能。幅員約6.1mの南側道路に面し、日当たり良好。5SLDKのゆったりした間取りでサウナ、ジャグジーあり
|
|
From Hankyu Senriyama Station about 5 minutes walk, A quiet residential area in the parkland. Parking 3 units can be. Facing the south road of width about 6.1m, Sunny. Sauna in the spacious floor plan of 5SLDK, Yes Jacuzzi
阪急千里山駅から徒歩約5分の、風致地区内の閑静な住宅地。駐車場3台可能。幅員約6.1mの南側道路に面し、日当たり良好。5SLDKのゆったりした間取りでサウナ、ジャグジーあり
|
Features pickup 特徴ピックアップ | | Parking three or more possible / 2 along the line more accessible / LDK20 tatami mats or more / Land more than 100 square meters / Facing south / System kitchen / Bathroom Dryer / Yang per good / All room storage / Siemens south road / A quiet residential area / Or more before road 6m / Japanese-style room / Shaping land / Washbasin with shower / Face-to-face kitchen / Shutter - garage / Toilet 2 places / Bathroom 1 tsubo or more / 2-story / 2 or more sides balcony / South balcony / Otobasu / Warm water washing toilet seat / Underfloor Storage / TV monitor interphone / High-function toilet / Mu front building / Good view / Dish washing dryer / Walk-in closet / Or more ceiling height 2.5m / All room 6 tatami mats or more / City gas / Storeroom / Whirlpool / Located on a hill / A large gap between the neighboring house / Floor heating / terrace 駐車3台以上可 /2沿線以上利用可 /LDK20畳以上 /土地100坪以上 /南向き /システムキッチン /浴室乾燥機 /陽当り良好 /全居室収納 /南側道路面す /閑静な住宅地 /前道6m以上 /和室 /整形地 /シャワー付洗面台 /対面式キッチン /シャッタ-車庫 /トイレ2ヶ所 /浴室1坪以上 /2階建 /2面以上バルコニー /南面バルコニー /オートバス /温水洗浄便座 /床下収納 /TVモニタ付インターホン /高機能トイレ /前面棟無 /眺望良好 /食器洗乾燥機 /ウォークインクロゼット /天井高2.5m以上 /全居室6畳以上 /都市ガス /納戸 /ジェットバス /高台に立地 /隣家との間隔が大きい /床暖房 /テラス |
Event information イベント情報 | | (Please be sure to ask in advance) (事前に必ずお問い合わせください) |
Price 価格 | | 198 million yen 1億9800万円 |
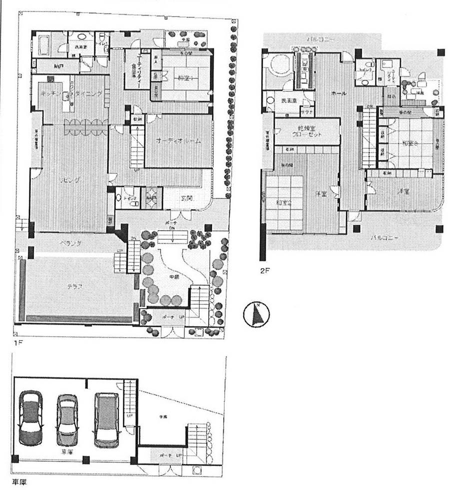
Floor plan 間取り | | 5LDK + S (storeroom) 5LDK+S(納戸) |
Units sold 販売戸数 | | 1 units 1戸 |
Land area 土地面積 | | 492.37 sq m (148.94 tsubo) (Registration) 492.37m2(148.94坪)(登記) |
Building area 建物面積 | | 414.79 sq m (125.47 tsubo) (Registration) 414.79m2(125.47坪)(登記) |
Driveway burden-road 私道負担・道路 | | Nothing, South 6.1m width (contact the road width 17.1m) 無、南6.1m幅(接道幅17.1m) |
Completion date 完成時期(築年月) | | April 1998 1998年4月 |
Address 住所 | | Suita, Osaka Prefecture Senriyamanishi 5-31-5 大阪府吹田市千里山西5-31-5 |
Traffic 交通 | | Hankyu Senri Line "Senriyama" walk 5 minutes Northern Osaka Express "parkland" walk 20 minutes 阪急千里線「千里山」歩5分 北大阪急行「緑地公園」歩20分
|
Related links 関連リンク | | [Related Sites of this company] 【この会社の関連サイト】 |
Person in charge 担当者より | | Rep Shimizu 担当者シミズ |
Contact お問い合せ先 | | Mac Juken (Ltd.) TEL: 0800-603-3459 [Toll free] mobile phone ・ Also available from PHS Caller ID is not notified Please contact the "saw SUUMO (Sumo)" If it does not lead, If the real estate company マック住研(株)TEL:0800-603-3459【通話料無料】携帯電話・PHSからもご利用いただけます 発信者番号は通知されません 「SUUMO(スーモ)を見た」と問い合わせください つながらない方、不動産会社の方は
|
Building coverage, floor area ratio 建ぺい率・容積率 | | 40% ・ Hundred percent 40%・100% |
Time residents 入居時期 | | Consultation 相談 |
Land of the right form 土地の権利形態 | | Ownership 所有権 |
Structure and method of construction 構造・工法 | | Steel 2-story 鉄骨2階建 |
Use district 用途地域 | | One low-rise 1種低層 |
Overview and notices その他概要・特記事項 | | Contact: Shimizu, Facilities: Public Water Supply, This sewage, City gas, Parking: Garage 担当者:シミズ、設備:公営水道、本下水、都市ガス、駐車場:車庫 |
Company profile 会社概要 | | <Mediation> governor of Osaka Prefecture (5) No. 041334 Mac Juken Co. Yubinbango565-0842 Senriyamahigashi Suita, Osaka Prefecture 2-26-25 <仲介>大阪府知事(5)第041334号マック住研(株)〒565-0842 大阪府吹田市千里山東2-26-25 |