2010March
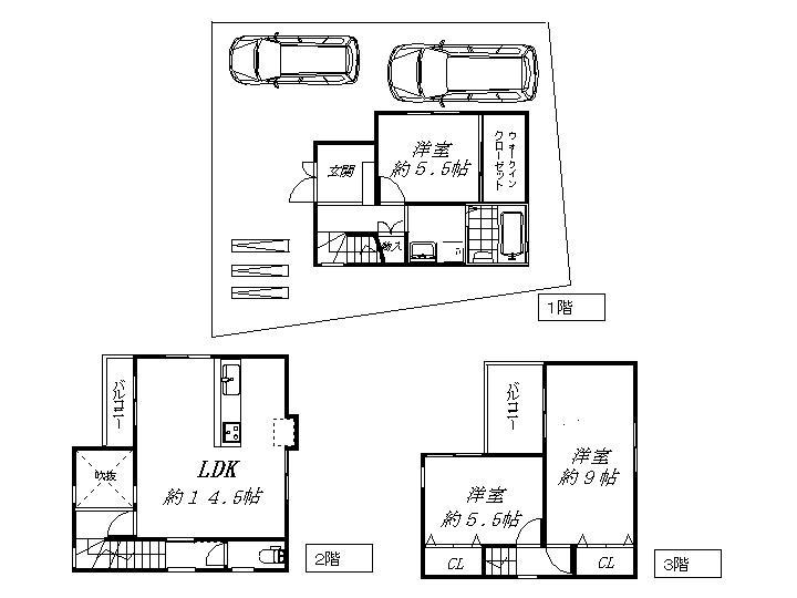
28,300,000 yen, 3LDK, 96.95 sq m
Used Homes » Kansai » Osaka prefecture » Suita
 
| | Suita, Osaka Prefecture 大阪府吹田市 |
| Hankyu Senri Line "Suita" walk 10 minutes 阪急千里線「吹田」歩10分 |
| ・ Car two is possible parking! (One light vehicles) ・ Covered parking lot ・ Fully equipped (floor heating ・ IH cooking heater ・ Dish washing and drying machines) ・車2台駐車可能です!(うち1台は軽自動車)・屋根付き駐輪場・充実した設備(床暖房・IHクッキングヒーター・食器洗浄乾燥機) |
Features pickup 特徴ピックアップ | | Parking two Allowed / 2 along the line more accessible / Washbasin with shower / Face-to-face kitchen / South balcony / Otobasu / Warm water washing toilet seat / The window in the bathroom / Atrium / IH cooking heater / Dish washing dryer / Walk-in closet / Three-story or more / Floor heating 駐車2台可 /2沿線以上利用可 /シャワー付洗面台 /対面式キッチン /南面バルコニー /オートバス /温水洗浄便座 /浴室に窓 /吹抜け /IHクッキングヒーター /食器洗乾燥機 /ウォークインクロゼット /3階建以上 /床暖房 | Price 価格 | | 28,300,000 yen 2830万円 | Floor plan 間取り | | 3LDK 3LDK | Units sold 販売戸数 | | 1 units 1戸 | Land area 土地面積 | | 86.2 sq m (registration) 86.2m2(登記) | Building area 建物面積 | | 96.95 sq m (measured), Among the first floor garage 12.15 sq m 96.95m2(実測)、うち1階車庫12.15m2 | Driveway burden-road 私道負担・道路 | | Nothing, Southwest 4.8m width (contact the road width 2.4m) 無、南西4.8m幅(接道幅2.4m) | Completion date 完成時期(築年月) | | March 2010 2010年3月 | Address 住所 | | Suita, Osaka riverbank cho 大阪府吹田市川岸町 | Traffic 交通 | | Hankyu Senri Line "Suita" walk 10 minutes JR Tokaido Line "Suita" walk 15 minutes Hankyu Senri Line "Shimoshinjo" walk 8 minutes 阪急千里線「吹田」歩10分 JR東海道本線「吹田」歩15分 阪急千里線「下新庄」歩8分
| Contact お問い合せ先 | | Anfinyi ・ Home (Ltd.) TEL: 0800-603-2823 [Toll free] mobile phone ・ Also available from PHS Caller ID is not notified Please contact the "saw SUUMO (Sumo)" If it does not lead, If the real estate company アンフィニィ・ホーム(株)TEL:0800-603-2823【通話料無料】携帯電話・PHSからもご利用いただけます 発信者番号は通知されません 「SUUMO(スーモ)を見た」と問い合わせください つながらない方、不動産会社の方は
| Building coverage, floor area ratio 建ぺい率・容積率 | | 60% ・ 200% 60%・200% | Time residents 入居時期 | | Consultation 相談 | Land of the right form 土地の権利形態 | | Ownership 所有権 | Structure and method of construction 構造・工法 | | Wooden three-story 木造3階建 | Use district 用途地域 | | One dwelling 1種住居 | Overview and notices その他概要・特記事項 | | Facilities: Public Water Supply, This sewage, City gas, Parking: Garage 設備:公営水道、本下水、都市ガス、駐車場:車庫 | Company profile 会社概要 | | <Mediation> Minister of Land, Infrastructure and Transport (3) No. 006089 (company) Osaka Building Lots and Buildings Transaction Business Association (Corporation) Kinki district Real Estate Fair Trade Council member Anfinyi ・ Home Co., Ltd. Yubinbango569-0805 Osaka Takatsuki Kamitanui-cho, 1-30 second floor <仲介>国土交通大臣(3)第006089号(社)大阪府宅地建物取引業協会会員 (公社)近畿地区不動産公正取引協議会加盟アンフィニィ・ホーム(株)〒569-0805 大阪府高槻市上田辺町1-30 2階 |
Local appearance photo現地外観写真  Local (10 May 2013) Shooting
現地(2013年10月)撮影
Floor plan間取り図  28,300,000 yen, 3LDK, Land area 86.2 sq m , Building area 96.95 sq m
2830万円、3LDK、土地面積86.2m2、建物面積96.95m2
Livingリビング  Indoor (10 May 2013) Shooting
室内(2013年10月)撮影
Entrance玄関  Local (10 May 2013) Shooting
現地(2013年10月)撮影
Location
|