|
|
Suita, Osaka Prefecture
大阪府吹田市
|
|
Hankyu Kyoto Line "Aikawa" walk 15 minutes
阪急京都線「相川」歩15分
|
|
■ Hankyu Kyoto Line "Aikawa" station a 15-minute walk ■ 1997 Built, All-electric housing ■ North park ・ East waterway ・ For the south side garden, Three-way free ■ Outer wall (10 May 2008), Roof (June 2011) unnecessary care for refurbished
■阪急京都線「相川」駅徒歩15分■平成9年築、オール電化住宅■北側公園・東側水路・南側庭のため、三方空き■外壁(平成20年10月)、屋根(平成23年6月)改装済のため手入れ不要
|
Features pickup 特徴ピックアップ | | Super close / All room storage / Or more before road 6m / 3 face lighting / Toilet 2 places / Exterior renovation / The window in the bathroom / All living room flooring / Three-story or more / All-electric / Flat terrain スーパーが近い /全居室収納 /前道6m以上 /3面採光 /トイレ2ヶ所 /外装リフォーム /浴室に窓 /全居室フローリング /3階建以上 /オール電化 /平坦地 |
Price 価格 | | 30 million yen 3000万円 |
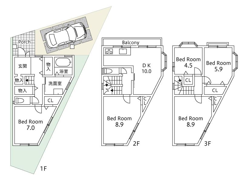
Floor plan 間取り | | 5DK 5DK |
Units sold 販売戸数 | | 1 units 1戸 |
Total units 総戸数 | | 1 units 1戸 |
Land area 土地面積 | | 77.91 sq m (registration) 77.91m2(登記) |
Building area 建物面積 | | 113.65 sq m (registration) 113.65m2(登記) |
Driveway burden-road 私道負担・道路 | | Nothing, North 6m width (contact the road width 9.7m) 無、北6m幅(接道幅9.7m) |
Completion date 完成時期(築年月) | | July 1997 1997年7月 |
Address 住所 | | Suita, Osaka Suito cho 大阪府吹田市吹東町 |
Traffic 交通 | | Hankyu Kyoto Line "Aikawa" walk 15 minutes 阪急京都線「相川」歩15分
|
Related links 関連リンク | | [Related Sites of this company] 【この会社の関連サイト】 |
Contact お問い合せ先 | | TEL: 0800-603-4346 [Toll free] mobile phone ・ Also available from PHS Caller ID is not notified Please contact the "saw SUUMO (Sumo)" If it does not lead, If the real estate company TEL:0800-603-4346【通話料無料】携帯電話・PHSからもご利用いただけます 発信者番号は通知されません 「SUUMO(スーモ)を見た」と問い合わせください つながらない方、不動産会社の方は
|
Building coverage, floor area ratio 建ぺい率・容積率 | | 60% ・ 200% 60%・200% |
Time residents 入居時期 | | Consultation 相談 |
Land of the right form 土地の権利形態 | | Ownership 所有権 |
Structure and method of construction 構造・工法 | | Steel frame three-story 鉄骨3階建 |
Renovation リフォーム | | June 2011 exterior renovation completed (outer wall ・ roof) 2011年6月外装リフォーム済(外壁・屋根) |
Use district 用途地域 | | One dwelling 1種住居 |
Other limitations その他制限事項 | | Height district, Quasi-fire zones, Height ceiling Yes 高度地区、準防火地域、高さ最高限度有 |
Overview and notices その他概要・特記事項 | | Facilities: Public Water Supply, This sewage, City gas, Parking: car space 設備:公営水道、本下水、都市ガス、駐車場:カースペース |
Company profile 会社概要 | | <Mediation> governor of Osaka (2) No. 051359 Kansai Real Estate Sales Co., Ltd. Yubinbango569-1124 Osaka Takatsuki Minamiakutagawa-cho 16-3 <仲介>大阪府知事(2)第051359号関西不動産販売(株)〒569-1124 大阪府高槻市南芥川町16-3 |