Used Homes » Kansai » Osaka prefecture » Suita
 
| | Suita, Osaka Prefecture 大阪府吹田市 |
| Hankyu Senri Line "Kandai before" walk 8 minutes 阪急千里線「関大前」歩8分 |
| Hankyu "Kandai before" Station 8-minute walk! Northern Osaka Express "parkland" a 15-minute walk! Friendly calm living environment in a quiet child-rearing! 阪急『関大前』駅徒歩8分! 北大阪急行『緑地公園』徒歩15分!静かな子育てに優しい落ち着いた住環境! |
| ■ October 2003 architecture! ■ About 55 square meters of spacious 4LDK ■ The room is very carefully your! ■ Parking space two ■ South is good per yang for the passage of the west side adjacent land (parking space)! ■ It is overlooking night view from the south window at night! ■ Chisato third elementary school 3-minute walk ■ Suita first junior high school 4-minute walk ■平成15年10月建築!■約55坪のゆったりとした4LDK■室内は大変丁寧にお使いです!■駐車スペース2台■南側は西側隣地の通路(駐車スペース)のため陽当たり良好!■夜は南側窓から夜景が一望!■千里第三小学校徒歩3分■吹田第一中学校徒歩4分 |
Features pickup 特徴ピックアップ | | Parking two Allowed / 2 along the line more accessible / System kitchen / Bathroom Dryer / Yang per good / All room storage / A quiet residential area / Around traffic fewer / Shaping land / Shutter - garage / Toilet 2 places / 2-story / 2 or more sides balcony / The window in the bathroom / TV monitor interphone / Ventilation good / Dish washing dryer / Or more ceiling height 2.5m / City gas / Located on a hill / Maintained sidewalk 駐車2台可 /2沿線以上利用可 /システムキッチン /浴室乾燥機 /陽当り良好 /全居室収納 /閑静な住宅地 /周辺交通量少なめ /整形地 /シャッタ-車庫 /トイレ2ヶ所 /2階建 /2面以上バルコニー /浴室に窓 /TVモニタ付インターホン /通風良好 /食器洗乾燥機 /天井高2.5m以上 /都市ガス /高台に立地 /整備された歩道 | Price 価格 | | 65,500,000 yen 6550万円 | Floor plan 間取り | | 4LDK 4LDK | Units sold 販売戸数 | | 1 units 1戸 | Land area 土地面積 | | 181.93 sq m (55.03 tsubo) (Registration) 181.93m2(55.03坪)(登記) | Building area 建物面積 | | 129.72 sq m (39.24 tsubo) (Registration) 129.72m2(39.24坪)(登記) | Driveway burden-road 私道負担・道路 | | 30.18 sq m , East 4m width (contact the road width 15m) 30.18m2、東4m幅(接道幅15m) | Completion date 完成時期(築年月) | | October 2003 2003年10月 | Address 住所 | | Suita, Osaka Prefecture Senriyamanishi 2 大阪府吹田市千里山西2 | Traffic 交通 | | Hankyu Senri Line "Kandai before" walk 8 minutes Northern Osaka Express "parkland" walk 15 minutes 阪急千里線「関大前」歩8分 北大阪急行「緑地公園」歩15分
| Related links 関連リンク | | [Related Sites of this company] 【この会社の関連サイト】 | Person in charge 担当者より | | Person in charge of real-estate and building Shokita Kentaro Age: 20 Daigyokai experience: as a professional three years real estate transactions, Seller like, So that it is trade that you are able to satisfy our buyer like both, We will work seriously. .. 担当者宅建小北健太郎年齢:20代業界経験:3年不動産取引のプロとして、売主様、買主様双方にご満足していただける取引が出来るよう、真剣に取り組んでまいります。.. | Contact お問い合せ先 | | TEL: 0800-603-0430 [Toll free] mobile phone ・ Also available from PHS Caller ID is not notified Please contact the "saw SUUMO (Sumo)" If it does not lead, If the real estate company TEL:0800-603-0430【通話料無料】携帯電話・PHSからもご利用いただけます 発信者番号は通知されません 「SUUMO(スーモ)を見た」と問い合わせください つながらない方、不動産会社の方は
| Building coverage, floor area ratio 建ぺい率・容積率 | | Fifty percent ・ Hundred percent 50%・100% | Time residents 入居時期 | | Consultation 相談 | Land of the right form 土地の権利形態 | | Ownership 所有権 | Structure and method of construction 構造・工法 | | Wooden 2-story 木造2階建 | Use district 用途地域 | | One low-rise 1種低層 | Overview and notices その他概要・特記事項 | | Contact: Shokita Kentaro, Facilities: Public Water Supply, This sewage, City gas, Parking: Garage 担当者:小北健太郎、設備:公営水道、本下水、都市ガス、駐車場:車庫 | Company profile 会社概要 | | <Mediation> Minister of Land, Infrastructure and Transport (9) No. 003,123 (one company) Real Estate Association (Corporation) metropolitan area real estate Fair Trade Council member Kintetsu Real Estate Co., Ltd. Chisato office Yubinbango565-0862 Suita, Osaka Prefecture Tsukumodai 1-2-D9 Crystal Hotel Minamisenri second floor <仲介>国土交通大臣(9)第003123号(一社)不動産協会会員 (公社)首都圏不動産公正取引協議会加盟近鉄不動産(株)千里営業所〒565-0862 大阪府吹田市津雲台1-2-D9 クリスタルホテル南千里2階 |
Local appearance photo現地外観写真  Local (11 May 2013) Shooting
現地(2013年11月)撮影
Livingリビング  Indoor (11 May 2013) Shooting
室内(2013年11月)撮影
Bathroom浴室  Indoor (11 May 2013) Shooting
室内(2013年11月)撮影
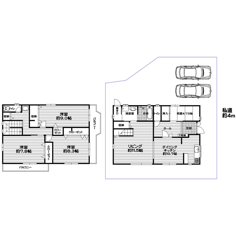
Floor plan間取り図  65,500,000 yen, 4LDK, Land area 181.93 sq m , Building area 129.72 sq m
6550万円、4LDK、土地面積181.93m2、建物面積129.72m2
Local appearance photo現地外観写真  Local (11 May 2013) Shooting
現地(2013年11月)撮影
Livingリビング  Indoor (11 May 2013) Shooting
室内(2013年11月)撮影
Kitchenキッチン  Indoor (11 May 2013) Shooting
室内(2013年11月)撮影
Non-living roomリビング以外の居室  Indoor (11 May 2013) Shooting
室内(2013年11月)撮影
Entrance玄関  Local (11 May 2013) Shooting
現地(2013年11月)撮影
Local photos, including front road前面道路含む現地写真  Local (11 May 2013) Shooting
現地(2013年11月)撮影
Parking lot駐車場  Local (11 May 2013) Shooting
現地(2013年11月)撮影
View photos from the dwelling unit住戸からの眺望写真  View from the site (November 2013) Shooting
現地からの眺望(2013年11月)撮影
Location
|