2003October
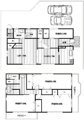
65,500,000 yen, 4LDK, 67.62 sq m
Used Homes » Kansai » Osaka prefecture » Suita
 
| | Suita, Osaka Prefecture 大阪府吹田市 |
| Hankyu Senri Line "Kandai before" walk 9 minutes 阪急千里線「関大前」歩9分 |
Price 価格 | | 65,500,000 yen 6550万円 | Floor plan 間取り | | 4LDK 4LDK | Units sold 販売戸数 | | 1 units 1戸 | Land area 土地面積 | | 212.11 sq m (registration) 212.11m2(登記) | Building area 建物面積 | | 67.62 sq m (registration) 67.62m2(登記) | Driveway burden-road 私道負担・道路 | | 30.18 sq m , East 4m width (contact the road width 15m) 30.18m2、東4m幅(接道幅15m) | Completion date 完成時期(築年月) | | October 2003 2003年10月 | Address 住所 | | Suita, Osaka Prefecture Senriyamanishi 2 大阪府吹田市千里山西2 | Traffic 交通 | | Hankyu Senri Line "Kandai before" walk 9 minutes 阪急千里線「関大前」歩9分
| Person in charge 担当者より | | Person in charge of a small North Kentaro 担当者小北 健太郎 | Contact お問い合せ先 | | TEL: 0800-603-0430 [Toll free] mobile phone ・ Also available from PHS Caller ID is not notified Please contact the "saw SUUMO (Sumo)" If it does not lead, If the real estate company TEL:0800-603-0430【通話料無料】携帯電話・PHSからもご利用いただけます 発信者番号は通知されません 「SUUMO(スーモ)を見た」と問い合わせください つながらない方、不動産会社の方は
| Building coverage, floor area ratio 建ぺい率・容積率 | | Fifty percent ・ Hundred percent 50%・100% | Time residents 入居時期 | | Consultation 相談 | Land of the right form 土地の権利形態 | | Ownership 所有権 | Structure and method of construction 構造・工法 | | Wooden 2-story 木造2階建 | Use district 用途地域 | | One low-rise 1種低層 | Overview and notices その他概要・特記事項 | | Contact: small North Kentaro, Parking: car space 担当者:小北 健太郎、駐車場:カースペース | Company profile 会社概要 | | <Mediation> Minister of Land, Infrastructure and Transport (9) No. 003,123 (one company) Real Estate Association (Corporation) metropolitan area real estate Fair Trade Council member Kintetsu Real Estate Co., Ltd. Chisato office Yubinbango565-0862 Suita, Osaka Prefecture Tsukumodai 1-2-D9 Crystal Hotel Minamisenri second floor <仲介>国土交通大臣(9)第003123号(一社)不動産協会会員 (公社)首都圏不動産公正取引協議会加盟近鉄不動産(株)千里営業所〒565-0862 大阪府吹田市津雲台1-2-D9 クリスタルホテル南千里2階 |
 Local appearance photo
現地外観写真
 Floor plan
間取り図
Location
|