|
|
Suita, Osaka Prefecture
大阪府吹田市
|
|
JR Tokaido Line "Suita" walk 15 minutes
JR東海道本線「吹田」歩15分
|
|
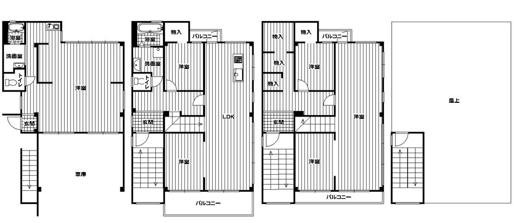
Independent because entrance is there are three, You can also consider as a two-family house. View from the rooftop is very good!
独立した玄関が3つありますので、二世帯住宅としてもご検討いただけます。屋上からの眺望は大変良好です!
|
|
■ Per southeast facing balcony, Yang per good! ■ March 2010 architecture! ■ There are 2 car parking spaces on site! ■ Per north-south two-sided balcony, Ventilation is good! ■ There are large windows, It is a very bright room with a feeling of opening!
■南東向きバルコニーにつき、陽当り良好!■平成22年3月建築!■敷地内に駐車スペース2台分あります!■南北両面バルコニーにつき、通風良好です!■大きな窓があり、開放感のある大変明るいお部屋です!
|
Features pickup 特徴ピックアップ | | Parking two Allowed / Immediate Available / It is close to the city / Facing south / Yang per good / Around traffic fewer / Face-to-face kitchen / 2 or more sides balcony / South balcony / All living room flooring 駐車2台可 /即入居可 /市街地が近い /南向き /陽当り良好 /周辺交通量少なめ /対面式キッチン /2面以上バルコニー /南面バルコニー /全居室フローリング |
Price 価格 | | 44,800,000 yen 4480万円 |
Floor plan 間取り | | 6LDK + 3S (storeroom) 6LDK+3S(納戸) |
Units sold 販売戸数 | | 1 units 1戸 |
Total units 総戸数 | | 1 units 1戸 |
Land area 土地面積 | | 151.5 sq m (registration) 151.5m2(登記) |
Building area 建物面積 | | 245.88 sq m (registration) 245.88m2(登記) |
Driveway burden-road 私道負担・道路 | | 13.3 sq m , North 4m width (contact the road width 11m) 13.3m2、北4m幅(接道幅11m) |
Completion date 完成時期(築年月) | | March 2010 2010年3月 |
Address 住所 | | Suita, Osaka Katayama cho 4 大阪府吹田市片山町4 |
Traffic 交通 | | JR Tokaido Line "Suita" walk 15 minutes Hankyu Senri Line "Suita" walk 20 minutes Hankyu Kyoto Line "Aikawa" walk 28 minutes JR東海道本線「吹田」歩15分 阪急千里線「吹田」歩20分 阪急京都線「相川」歩28分
|
Related links 関連リンク | | [Related Sites of this company] 【この会社の関連サイト】 |
Person in charge 担当者より | | Person in charge of real-estate and building FP NaruTomi Hiroshi Age: 30 Daigyokai Experience: 8 years community-in business [Peace of mind] [Certainty] We promise a real estate transaction. "I want to sell" your, We will speedily and accurately allowed to correspond to the "want to buy"! 担当者宅建FP成冨 裕年齢:30代業界経験:8年地域密着型の営業で【安心】【確実】な不動産取引をお約束致します。お客様の『売りたい』、『買いたい』にスピーディーかつ正確にご対応させていただきます! |
Contact お問い合せ先 | | TEL: 0800-603-0430 [Toll free] mobile phone ・ Also available from PHS Caller ID is not notified Please contact the "saw SUUMO (Sumo)" If it does not lead, If the real estate company TEL:0800-603-0430【通話料無料】携帯電話・PHSからもご利用いただけます 発信者番号は通知されません 「SUUMO(スーモ)を見た」と問い合わせください つながらない方、不動産会社の方は
|
Time residents 入居時期 | | Immediate available 即入居可 |
Land of the right form 土地の権利形態 | | Ownership 所有権 |
Structure and method of construction 構造・工法 | | Steel frame three-story 鉄骨3階建 |
Use district 用途地域 | | Two mid-high 2種中高 |
Other limitations その他制限事項 | | Height district, Quasi-fire zones, Landscape district, Site area minimum Yes 高度地区、準防火地域、景観地区、敷地面積最低限度有 |
Overview and notices その他概要・特記事項 | | Contact: NaruTomi Hiroshi, Facilities: Public Water Supply, This sewage, City gas, Parking: Garage 担当者:成冨 裕、設備:公営水道、本下水、都市ガス、駐車場:車庫 |
Company profile 会社概要 | | <Mediation> Minister of Land, Infrastructure and Transport (9) No. 003,123 (one company) Real Estate Association (Corporation) metropolitan area real estate Fair Trade Council member Kintetsu Real Estate Co., Ltd. Chisato office Yubinbango565-0862 Suita, Osaka Prefecture Tsukumodai 1-2-D9 Crystal Hotel Minamisenri second floor <仲介>国土交通大臣(9)第003123号(一社)不動産協会会員 (公社)首都圏不動産公正取引協議会加盟近鉄不動産(株)千里営業所〒565-0862 大阪府吹田市津雲台1-2-D9 クリスタルホテル南千里2階 |