Used Homes » Kansai » Osaka prefecture » Takatsuki
 
| | Osaka Takatsuki 大阪府高槻市 |
| JR Tokaido Line "Tomita Settsu" walk 20 minutes JR東海道本線「摂津富田」歩20分 |
| Parking three or more possible, Flat to the station, 2-story, 2 along the line more accessible, Face-to-face kitchen, Super closeese-style room, Flat terrain 駐車3台以上可、駅まで平坦、2階建、2沿線以上利用可、対面式キッチン、スーパーが近い、和室、平坦地 |
| [Housing exhibition fair - & Remodeling Fair -] ◆ Also held this year! ◆ January 11 (Sat) ~ 13 days (holiday) is, Happy privilege full of 3 days ☆ ・ I want to know now the "consumption tax increase and loan deduction", Individual consultations free of charge to the experts ・ Listing also Hokusetsu simultaneously exhibited 1,100! ・ Balloon art and also present plan Why do not you find the fun house? . ■ Land about 39.09 square meters ・ Parking spaces 3 units can be ■ ■ July 1997 architecture ・ It is the room very clean your ■ ■ All room 6 quires more ・ With attic storage ■ 【住宅展示フェア―&リフォームフェア―】◆今年も開催!◆1月11日(土) ~ 13日(祝)は、嬉しい特典いっぱいの3日間☆・今知っておきたい「消費増税やローン控除」を、専門家に無料で個別相談・物件情報も北摂1100件を一斉展示!・バルーンアートやプレゼント企画も 楽しく住まい探しをしませんか?詳細は下記の「関連リンク」をクリックしてご覧下さい。■土地約39.09坪・駐車スペース3台可能■■平成9年7月建築・室内大変綺麗にお使いです■■全居室6帖以上・屋根裏収納庫付■ |
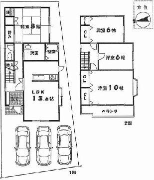
Features pickup 特徴ピックアップ | | Parking three or more possible / 2 along the line more accessible / Super close / Flat to the station / Japanese-style room / Face-to-face kitchen / 2-story / Flat terrain 駐車3台以上可 /2沿線以上利用可 /スーパーが近い /駅まで平坦 /和室 /対面式キッチン /2階建 /平坦地 | Price 価格 | | 29,800,000 yen 2980万円 | Floor plan 間取り | | 4LDK 4LDK | Units sold 販売戸数 | | 1 units 1戸 | Total units 総戸数 | | 1 units 1戸 | Land area 土地面積 | | 129.23 sq m (39.09 tsubo) (Registration) 129.23m2(39.09坪)(登記) | Building area 建物面積 | | 102.33 sq m (30.95 tsubo) (Registration) 102.33m2(30.95坪)(登記) | Driveway burden-road 私道負担・道路 | | Nothing, West 4m width (contact the road width 7.5m) 無、西4m幅(接道幅7.5m) | Completion date 完成時期(築年月) | | July 1997 1997年7月 | Address 住所 | | Osaka Takatsuki Himuro-cho, 2 大阪府高槻市氷室町2 | Traffic 交通 | | JR Tokaido Line "Tomita Settsu" walk 20 minutes Hankyu Kyoto Line "Tomita" walk 23 minutes JR東海道本線「摂津富田」歩20分 阪急京都線「富田」歩23分
| Related links 関連リンク | | [Related Sites of this company] 【この会社の関連サイト】 | Person in charge 担当者より | | Person in charge of real-estate and building Okasaka The motto of bright fun Yoshiaki, I stood in the customer's point of view, I am keeping in mind the cordial service. Thank you. 担当者宅建岡坂 好章明るく楽しくをモットーに、お客様の立場に立った、真心のこもったサービスを心掛けております。よろしくお願い致します。 | Contact お問い合せ先 | | TEL: 0800-603-2288 [Toll free] mobile phone ・ Also available from PHS Caller ID is not notified Please contact the "saw SUUMO (Sumo)" If it does not lead, If the real estate company TEL:0800-603-2288【通話料無料】携帯電話・PHSからもご利用いただけます 発信者番号は通知されません 「SUUMO(スーモ)を見た」と問い合わせください つながらない方、不動産会社の方は
| Building coverage, floor area ratio 建ぺい率・容積率 | | 60% ・ 200% 60%・200% | Time residents 入居時期 | | Consultation 相談 | Land of the right form 土地の権利形態 | | Ownership 所有権 | Structure and method of construction 構造・工法 | | Wooden 2-story 木造2階建 | Use district 用途地域 | | One middle and high 1種中高 | Overview and notices その他概要・特記事項 | | Contact: Okasaka Yoshiaki, Facilities: Public Water Supply, This sewage, City gas, Parking: car space 担当者:岡坂 好章、設備:公営水道、本下水、都市ガス、駐車場:カースペース | Company profile 会社概要 | | <Mediation> governor of Osaka (10) No. 021564 (Ltd.) Mishima Corporation Tomita shop Yubinbango569-1144 Osaka Takatsuki Ohata-cho, 3-5 <仲介>大阪府知事(10)第021564号(株)三島コーポレーション富田店〒569-1144 大阪府高槻市大畑町3-5 |
Local appearance photo現地外観写真  Parking space There are three cars!
駐車スペースが3台分あります!
 Local appearance photo
現地外観写真
Floor plan間取り図  29,800,000 yen, 4LDK, Land area 129.23 sq m , Building area 102.33 sq m
2980万円、4LDK、土地面積129.23m2、建物面積102.33m2
 Bathroom
浴室
 Kitchen
キッチン
 Non-living room
リビング以外の居室
 Toilet
トイレ
 Local photos, including front road
前面道路含む現地写真
 Parking lot
駐車場
 Balcony
バルコニー
Supermarketスーパー  329m to Friend Mart Takatsuki Himuro shop
フレンドマート高槻氷室店まで329m
 Non-living room
リビング以外の居室
 1176m until Super Maruyasu Miyata shop
スーパーマルヤス宮田店まで1176m
 Non-living room
リビング以外の居室
Junior high school中学校  1334m to Takatsuki Municipal Abuno junior high school
高槻市立阿武野中学校まで1334m
 Non-living room
リビング以外の居室
Primary school小学校  478m to Takatsuki Municipal Abuno Elementary School
高槻市立阿武野小学校まで478m
 Non-living room
リビング以外の居室
Kindergarten ・ Nursery幼稚園・保育園  394m until Kodama nursery Himuro
ひむろこだま保育園まで394m
 Non-living room
リビング以外の居室
 718m to Takatsuki Municipal Abuno kindergarten
高槻市立阿武野幼稚園まで718m
You will receive this brochureこんなパンフレットが届きます  This brochure will receive! JOIN NOW document request!
こちらのパンフレットが届きます!今すぐ資料請求しよう!
Location
|