|
|
Osaka Takatsuki
大阪府高槻市
|
|
JR Tokaido Line "Takatsuki" bus 13 minutes Nariai Asahibashi step 2 minutes
JR東海道本線「高槻」バス13分成合旭橋歩2分
|
|
Green is a rich residential area. Land area is about 56.92 square meters Please consider as a new construction site.
緑豊かな住宅地です。土地面積は約56.92坪 新築用地としてもご検討下さい。
|
Features pickup 特徴ピックアップ | | A quiet residential area / LDK15 tatami mats or more / Shutter - garage / Leafy residential area 閑静な住宅地 /LDK15畳以上 /シャッタ-車庫 /緑豊かな住宅地 |
Price 価格 | | 14.5 million yen 1450万円 |
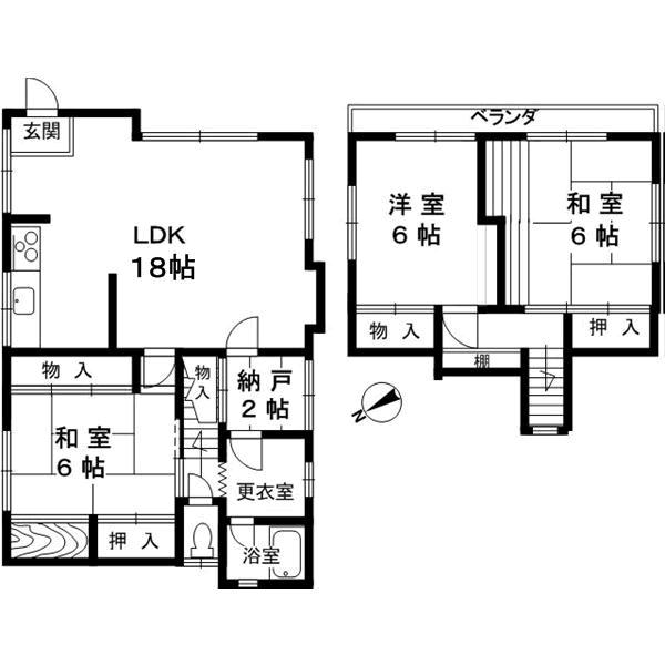
Floor plan 間取り | | 3LDK + S (storeroom) 3LDK+S(納戸) |
Units sold 販売戸数 | | 1 units 1戸 |
Land area 土地面積 | | 188.18 sq m (registration) 188.18m2(登記) |
Building area 建物面積 | | 92.55 sq m (registration) 92.55m2(登記) |
Driveway burden-road 私道負担・道路 | | Nothing, Northeast 4m width (contact the road width 15.7m) 無、北東4m幅(接道幅15.7m) |
Completion date 完成時期(築年月) | | October 1980 1980年10月 |
Address 住所 | | Osaka Takatsuki Hiyoshidai Rokuban cho 大阪府高槻市日吉台六番町 |
Traffic 交通 | | JR Tokaido Line "Takatsuki" bus 13 minutes Nariai Asahibashi step 2 minutes JR東海道本線「高槻」バス13分成合旭橋歩2分
|
Person in charge 担当者より | | Responsible Shataku TateIwa Yasuhisa Age: 50 Daigyokai experience: do not forget the 26 years your eyes always, Our business is, If you look from the customer, There is the only charge that was committed hope, Caught firmly the weight of the things that had you leave, We would like to work hard to meet the expectations. 担当者宅建岩 康久年齢:50代業界経験:26年お客様目線を忘れず! 常々、私共営業は、お客様から見れば、希望を託した唯一の担当であり、任せて頂いたことの重みをしっかり受け止め、ご期待に応えられるよう頑張って行きたいと考えております。 |
Contact お問い合せ先 | | TEL: 0800-603-1241 [Toll free] mobile phone ・ Also available from PHS Caller ID is not notified Please contact the "saw SUUMO (Sumo)" If it does not lead, If the real estate company TEL:0800-603-1241【通話料無料】携帯電話・PHSからもご利用いただけます 発信者番号は通知されません 「SUUMO(スーモ)を見た」と問い合わせください つながらない方、不動産会社の方は
|
Building coverage, floor area ratio 建ぺい率・容積率 | | Fifty percent ・ Hundred percent 50%・100% |
Time residents 入居時期 | | Consultation 相談 |
Land of the right form 土地の権利形態 | | Ownership 所有権 |
Structure and method of construction 構造・工法 | | Wooden 2-story 木造2階建 |
Use district 用途地域 | | One low-rise 1種低層 |
Overview and notices その他概要・特記事項 | | Contact: rock Yasuhisa, Facilities: Public Water Supply, This sewage, City gas, Parking: Garage 担当者:岩 康久、設備:公営水道、本下水、都市ガス、駐車場:車庫 |
Company profile 会社概要 | | <Mediation> Minister of Land, Infrastructure and Transport (11) No. 002287 (Corporation) Japan Living Service Co., Ltd. Takatsuki office Yubinbango569-0805 Osaka Takatsuki Kamitanui-cho, 4-10 (New - Rukkubiru first floor) <仲介>国土交通大臣(11)第002287号(株)日住サービス高槻営業所〒569-0805 大阪府高槻市上田辺町4-10 (ニュ-ルックビル1階) |