1968July
28.8 million yen, 3LDK + S (storeroom), 75.01 sq m
Used Homes » Kansai » Osaka prefecture » Takatsuki
 
| | Osaka Takatsuki 大阪府高槻市 |
| JR Tokaido Line "Tomita Settsu" walk 22 minutes JR東海道本線「摂津富田」歩22分 |
| Room renovated passes. Land area of approximately 43.75 square meters 室内改装渡し。土地面積約43.75坪 |
| Room renovated passes. Land area of approximately 43.75 square meters 室内改装渡し。土地面積約43.75坪 |
Features pickup 特徴ピックアップ | | Japanese-style room / 2-story / City gas / Attic storage 和室 /2階建 /都市ガス /屋根裏収納 | Price 価格 | | 28.8 million yen 2880万円 | Floor plan 間取り | | 3LDK + S (storeroom) 3LDK+S(納戸) | Units sold 販売戸数 | | 1 units 1戸 | Total units 総戸数 | | 1 units 1戸 | Land area 土地面積 | | 144.66 sq m (registration) 144.66m2(登記) | Building area 建物面積 | | 75.01 sq m (registration) 75.01m2(登記) | Driveway burden-road 私道負担・道路 | | Nothing, North 4.2m width (contact the road width 11m) 無、北4.2m幅(接道幅11m) | Completion date 完成時期(築年月) | | July 1968 1968年7月 | Address 住所 | | Osaka Takatsuki Doshitsu cho 大阪府高槻市土室町 | Traffic 交通 | | JR Tokaido Line "Tomita Settsu" walk 22 minutes JR東海道本線「摂津富田」歩22分
| Related links 関連リンク | | [Related Sites of this company] 【この会社の関連サイト】 | Contact お問い合せ先 | | TEL: 0800-603-3132 [Toll free] mobile phone ・ Also available from PHS Caller ID is not notified Please contact the "saw SUUMO (Sumo)" If it does not lead, If the real estate company TEL:0800-603-3132【通話料無料】携帯電話・PHSからもご利用いただけます 発信者番号は通知されません 「SUUMO(スーモ)を見た」と問い合わせください つながらない方、不動産会社の方は
| Building coverage, floor area ratio 建ぺい率・容積率 | | 60% ・ 200% 60%・200% | Time residents 入居時期 | | Consultation 相談 | Land of the right form 土地の権利形態 | | Ownership 所有権 | Structure and method of construction 構造・工法 | | Wooden 2-story 木造2階建 | Use district 用途地域 | | One middle and high 1種中高 | Overview and notices その他概要・特記事項 | | Facilities: Public Water Supply, This sewage, City gas, Parking: car space 設備:公営水道、本下水、都市ガス、駐車場:カースペース | Company profile 会社概要 | | <Mediation> governor of Osaka (3) No. 048990 (Ltd.) Takatsuki residential center Yubinbango569-0085 Osaka Takatsuki Minamimatsubara-cho 15-3 <仲介>大阪府知事(3)第048990号(株)高槻住宅センター〒569-0085 大阪府高槻市南松原町15-3 |
Local appearance photo現地外観写真  Local (10 May 2013) Shooting
現地(2013年10月)撮影
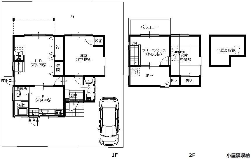
Floor plan間取り図  28.8 million yen, 3LDK + S (storeroom), Land area 144.66 sq m , Building area 75.01 sq m
2880万円、3LDK+S(納戸)、土地面積144.66m2、建物面積75.01m2
Local photos, including front road前面道路含む現地写真  Local (10 May 2013) Shooting
現地(2013年10月)撮影
Local appearance photo現地外観写真  Local (10 May 2013) Shooting
現地(2013年10月)撮影
Local photos, including front road前面道路含む現地写真  Local (10 May 2013) Shooting
現地(2013年10月)撮影
Location
|