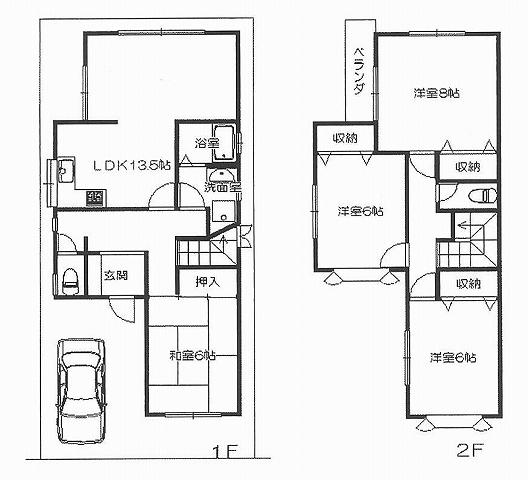
23.8 million yen, 4LDK, 96.21 sq m
Used Homes » Kansai » Osaka prefecture » Takatsuki
 
| | Osaka Takatsuki 大阪府高槻市 |
| JR Tokaido Line "Takatsuki" bus 14 minutes Matsugaoka walk 3 minutes JR東海道本線「高槻」バス14分松が丘歩3分 |
| Good per sun per south terraced. 2000 in the corner outer wall paint. Replace the glass top stove ・ Renovation winning number, such as around water. 南側ひな壇につき陽当たり良好です。平成12年に外壁塗装済。ガラストップコンロに交換・水まわりなどのリフォーム歴多数。 |
Features pickup 特徴ピックアップ | | 2-story 2階建 | Price 価格 | | 23.8 million yen 2380万円 | Floor plan 間取り | | 4LDK 4LDK | Units sold 販売戸数 | | 1 units 1戸 | Land area 土地面積 | | 102.47 sq m (registration) 102.47m2(登記) | Building area 建物面積 | | 96.21 sq m (registration) 96.21m2(登記) | Driveway burden-road 私道負担・道路 | | Nothing, North 4m width 無、北4m幅 | Completion date 完成時期(築年月) | | 11 May 1990 1990年11月 | Address 住所 | | Osaka Takatsuki Matsugaoka 3 大阪府高槻市松が丘3 | Traffic 交通 | | JR Tokaido Line "Takatsuki" bus 14 minutes Matsugaoka walk 3 minutes JR東海道本線「高槻」バス14分松が丘歩3分
| Contact お問い合せ先 | | TEL: 0800-603-2284 [Toll free] mobile phone ・ Also available from PHS Caller ID is not notified Please contact the "saw SUUMO (Sumo)" If it does not lead, If the real estate company TEL:0800-603-2284【通話料無料】携帯電話・PHSからもご利用いただけます 発信者番号は通知されません 「SUUMO(スーモ)を見た」と問い合わせください つながらない方、不動産会社の方は
| Building coverage, floor area ratio 建ぺい率・容積率 | | Fifty percent ・ Hundred percent 50%・100% | Time residents 入居時期 | | Consultation 相談 | Land of the right form 土地の権利形態 | | Ownership 所有権 | Structure and method of construction 構造・工法 | | Wooden 2-story 木造2階建 | Use district 用途地域 | | One low-rise 1種低層 | Company profile 会社概要 | | <Mediation> governor of Osaka (10) No. 021564 (company) Osaka Building Lots and Buildings Transaction Business Association (Corporation) Kinki district Real Estate Fair Trade Council member (Ltd.) Mishima Corporation JR Takatsuki store Yubinbango569-1123 Osaka Takatsuki Akutagawa-cho 1-7-24 <仲介>大阪府知事(10)第021564号(社)大阪府宅地建物取引業協会会員 (公社)近畿地区不動産公正取引協議会加盟(株)三島コーポレーションJR高槻店〒569-1123 大阪府高槻市芥川町1-7-24 |
 Local appearance photo
現地外観写真
 Local appearance photo
現地外観写真
 Local appearance photo
現地外観写真
Floor plan間取り図  23.8 million yen, 4LDK, Land area 102.47 sq m , Building area 96.21 sq m
2380万円、4LDK、土地面積102.47m2、建物面積96.21m2
Otherその他  Kitashuzu elementary school
北清水小学校
 Ninth junior high school
第九中学校
Location
|