Used Homes » Kansai » Osaka prefecture » Takatsuki
 
| | Osaka Takatsuki 大阪府高槻市 |
| Hankyu Kyoto Line "Takatsuki" walk 20 minutes 阪急京都線「高槻市」歩20分 |
| ◆ 2WAY accessible ◆ The room is part renovated ◆2WAYアクセス可能◆室内は一部改装済みです |
| ◆ □ ◆ □ ◆ □ ◆ □ ◆ □ ◆ □ ◆ □ ◆ □ ◆ □ ◆ □ ◆ Now is the chance of the previous economic recovery if you buy a house! ◆ □ ◆ □ ◆ □ ◆ □ ◆ □ ◆ □ ◆ □ ◆ □ ◆ □ ◆ □ ◆ Recovery of the economy is coming around the corner! Real estate shall retain the long-term. If Do not Relocation wise? ↓ ↓ ↓ there is no down payment ・ It was refused by other companies ・ Not sell the house ・ Undeclared ・ But she was a woman ... and so on to what your worries also you consider the consultation please ◎ purchase everyone at the individual purchase consultation, We will teach the secret of real estate purchase (when you coming to the store, annual income ・ Please prepare what you can see of your borrowing situation) ◆□◆□◆□◆□◆□◆□◆□◆□◆□◆□◆ 家を買うなら景気回復前の今がチャンス! ◆□◆□◆□◆□◆□◆□◆□◆□◆□◆□◆ 景気の回復はもうすぐそこまで来ています! 不動産は長期に保有するもの。ならば賢く住み替えませんか? ↓ ↓ ↓頭金が無い・他社で断られた・家が売れない・申告していない・女性だけど...等々個別購入相談会にてどんなお悩みもご相談下さい◎ご購入をご検討の皆様に、不動産購入の極意を伝授致します(ご来店の際は、年収・お借入れ状況の分かるものをご用意下さい) |
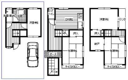
Features pickup 特徴ピックアップ | | 2 along the line more accessible / It is close to the city / Interior renovation / Flat to the station / Japanese-style room / Starting station / 2 or more sides balcony / The window in the bathroom / Three-story or more / Flat terrain / Movable partition 2沿線以上利用可 /市街地が近い /内装リフォーム /駅まで平坦 /和室 /始発駅 /2面以上バルコニー /浴室に窓 /3階建以上 /平坦地 /可動間仕切り | Price 価格 | | 13.8 million yen 1380万円 | Floor plan 間取り | | 4DK 4DK | Units sold 販売戸数 | | 1 units 1戸 | Land area 土地面積 | | 51.43 sq m (registration) 51.43m2(登記) | Building area 建物面積 | | 75.44 sq m (registration) 75.44m2(登記) | Driveway burden-road 私道負担・道路 | | Nothing, East 4.7m width 無、東4.7m幅 | Completion date 完成時期(築年月) | | April 1982 1982年4月 | Address 住所 | | Osaka Takatsuki Minamishodokoro cho 大阪府高槻市南庄所町 | Traffic 交通 | | Hankyu Kyoto Line "Takatsuki" walk 20 minutes JR Tokaido Line "Takatsuki" walk 23 minutes 阪急京都線「高槻市」歩20分 JR東海道本線「高槻」歩23分
| Related links 関連リンク | | [Related Sites of this company] 【この会社の関連サイト】 | Contact お問い合せ先 | | TEL: 0800-602-6604 [Toll free] mobile phone ・ Also available from PHS Caller ID is not notified Please contact the "saw SUUMO (Sumo)" If it does not lead, If the real estate company TEL:0800-602-6604【通話料無料】携帯電話・PHSからもご利用いただけます 発信者番号は通知されません 「SUUMO(スーモ)を見た」と問い合わせください つながらない方、不動産会社の方は
| Building coverage, floor area ratio 建ぺい率・容積率 | | 60% ・ 200% 60%・200% | Time residents 入居時期 | | Consultation 相談 | Land of the right form 土地の権利形態 | | Ownership 所有権 | Structure and method of construction 構造・工法 | | Wooden three-story 木造3階建 | Renovation リフォーム | | June 2008 interior renovation completed (kitchen ・ bathroom) 2008年6月内装リフォーム済(キッチン・浴室) | Use district 用途地域 | | Industry 工業 | Overview and notices その他概要・特記事項 | | Facilities: Public Water Supply, This sewage, City gas, Parking: car space 設備:公営水道、本下水、都市ガス、駐車場:カースペース | Company profile 会社概要 | | <Mediation> governor of Osaka (2) No. 051345 (Ltd.) World ・ One Takatsuki store Yubinbango569-0064 Osaka Takatsuki Shosho-cho 2-13 <仲介>大阪府知事(2)第051345号(株)ワールド・ワン高槻店〒569-0064 大阪府高槻市庄所町2-13 |
Local appearance photo現地外観写真  2WAY accessible! There is a car one minute of space ◎ all room ensure a two-sided lighting ◎ we do indoor part renovated
2WAYアクセス可能!お車1台分のスペースがございます◎全居室二面採光を確保◎室内一部改装を行っております
Otherその他  Please leave our if it is a thing of Takatsuki of property
高槻市の物件の事なら当社にお任せ下さい
 About a 20-minute walk from Hankyu Takatsuki-shi Station! Is a convenient environment to commuting
阪急高槻市駅から徒歩約20分!通勤通学にも便利な環境ですよ
Local photos, including front road前面道路含む現地写真  Do not start a new life any questions in the calm environment ・ Your preview, etc. Please call feel free to
落ち着いた環境で新しい生活を始めませんかご質問・ご内覧等はお気軽にお電話下さいね
Otherその他  Longing of the city, Our salesman will be happy to support every effort that your new life will begin in Takatsuki!
憧れの街、高槻市であなたの新しい生活が始まります当社営業マンが全力でサポートさせて頂きます!
 Local appearance photo
現地外観写真
Primary school小学校  1087m to Takatsuki Municipal Taoyuan Elementary School
高槻市立桃園小学校まで1087m
Junior high school中学校  1100m to Takatsuki Municipal first junior high school
高槻市立第一中学校まで1100m
 Other
その他
Floor plan間取り図  13.8 million yen, 4DK, Land area 51.43 sq m , Building area 75.44 sq m
1380万円、4DK、土地面積51.43m2、建物面積75.44m2
Supermarketスーパー  627m to business super Shimotanabe shop
業務スーパー下田部店まで627m
 Other
その他
 732m to Sandy Takatsuki Takanishi shop
サンディ高槻高西店まで732m
 Other
その他
 Until the food hall APRO Takatsuki Seongnam shop 704m
食品館アプロ高槻城南店まで704m
 Other
その他
Convenience storeコンビニ  436m to Seven-Eleven Takatsuki Shosho the town shop
セブンイレブン高槻庄所町店まで436m
 Other
その他
Home centerホームセンター  Home improvement Konan 800m to Takatsuki Josai shop
ホームセンターコーナン高槻城西店まで800m
 Other
その他
Post office郵便局  Takatsuki Tsue 855m to the post office
高槻津之江郵便局まで855m
Presentプレゼント  When your conclusion of a contract to Customers who have received contact us by phone, Authentic Motchiri bread of the topic and easy to enjoy at home, "a Panasonic: Gopan" I will present the! ! First arrival 50 people limited! ! (The photograph is an image. Please note that there is a case that is different from the real ones)
お電話にてお問い合わせ頂きましたお客様にご成約時、本格もっちりパンがご自宅で手軽に楽しめると話題の『Panasonic製:ゴパン』をプレゼントさせていただきます!!先着50名様限定です!!(写真はイメージです。実際の物とは異なる場合がございますので予めご了承下さい)
Location
|