1988May
29,700,000 yen, 6LDK, 110.16 sq m
Used Homes » Kansai » Osaka prefecture » Takatsuki
 
| | Osaka Takatsuki 大阪府高槻市 |
| JR Tokaido Line "Takatsuki" a 15-minute peace Jogakuin AzumaAyumi 4 minutes by bus JR東海道本線「高槻」バス15分平安女学院東歩4分 |
| Two garage parking Allowed ・ Land area of approximately 49.41 square meters ・ 6LDK ガレージ2台駐車可・土地面積約49.41坪・6LDK |
Features pickup 特徴ピックアップ | | Parking two Allowed / LDK15 tatami mats or more / Or more before road 6m / Japanese-style room / 2-story / All room 6 tatami mats or more / City gas / Flat terrain 駐車2台可 /LDK15畳以上 /前道6m以上 /和室 /2階建 /全居室6畳以上 /都市ガス /平坦地 | Price 価格 | | 29,700,000 yen 2970万円 | Floor plan 間取り | | 6LDK 6LDK | Units sold 販売戸数 | | 1 units 1戸 | Land area 土地面積 | | 163.34 sq m (registration) 163.34m2(登記) | Building area 建物面積 | | 110.16 sq m (registration) 110.16m2(登記) | Driveway burden-road 私道負担・道路 | | Nothing, North 6.7m width (contact the road width 11.4m) 無、北6.7m幅(接道幅11.4m) | Completion date 完成時期(築年月) | | May 1988 1988年5月 | Address 住所 | | Osaka Takatsuki Nanpeidai 5 大阪府高槻市南平台5 | Traffic 交通 | | JR Tokaido Line "Takatsuki" a 15-minute peace Jogakuin AzumaAyumi 4 minutes by bus JR東海道本線「高槻」バス15分平安女学院東歩4分
| Contact お問い合せ先 | | TEL: 0800-603-2284 [Toll free] mobile phone ・ Also available from PHS Caller ID is not notified Please contact the "saw SUUMO (Sumo)" If it does not lead, If the real estate company TEL:0800-603-2284【通話料無料】携帯電話・PHSからもご利用いただけます 発信者番号は通知されません 「SUUMO(スーモ)を見た」と問い合わせください つながらない方、不動産会社の方は
| Building coverage, floor area ratio 建ぺい率・容積率 | | Fifty percent ・ Hundred percent 50%・100% | Time residents 入居時期 | | Consultation 相談 | Land of the right form 土地の権利形態 | | Ownership 所有権 | Structure and method of construction 構造・工法 | | Wooden 2-story 木造2階建 | Use district 用途地域 | | One low-rise 1種低層 | Overview and notices その他概要・特記事項 | | Facilities: Public Water Supply, This sewage, City gas 設備:公営水道、本下水、都市ガス | Company profile 会社概要 | | <Mediation> governor of Osaka (10) No. 021564 (company) Osaka Building Lots and Buildings Transaction Business Association (Corporation) Kinki district Real Estate Fair Trade Council member (Ltd.) Mishima Corporation JR Takatsuki store Yubinbango569-1123 Osaka Takatsuki Akutagawa-cho 1-7-24 <仲介>大阪府知事(10)第021564号(社)大阪府宅地建物取引業協会会員 (公社)近畿地区不動産公正取引協議会加盟(株)三島コーポレーションJR高槻店〒569-1123 大阪府高槻市芥川町1-7-24 |
 Local appearance photo
現地外観写真
 Local appearance photo
現地外観写真
 Local appearance photo
現地外観写真
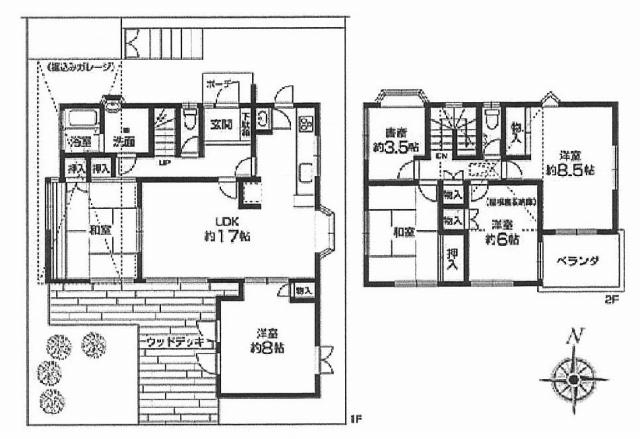
Floor plan間取り図  29,700,000 yen, 6LDK, Land area 163.34 sq m , Building area 110.16 sq m
2970万円、6LDK、土地面積163.34m2、建物面積110.16m2
 Living
リビング
 Bathroom
浴室
Non-living roomリビング以外の居室  Japanese style room
和室
 Entrance
玄関
Toiletトイレ  First floor toilet
1階トイレ
Local photos, including front road前面道路含む現地写真  road
道路
Other localその他現地  Log house
ログハウス
Otherその他  Abuno junior high school
阿武野中学校
Toiletトイレ  Second floor toilet
2階トイレ
Local photos, including front road前面道路含む現地写真  road
道路
Other localその他現地  Log house room
ログハウス室内
Location
|