Used Homes » Kansai » Osaka prefecture » Tondabayashi
 
| | Osaka Prefecture Tondabayashi 大阪府富田林市 |
| Nankai Koya Line "Kongo" walk 8 minutes 南海高野線「金剛」歩8分 |
| Parking two Allowed, Land 50 square meters or more, LDK18 tatami mats or more, lake ・ See the pond, Shaping land, 2-story, City gas 駐車2台可、土地50坪以上、LDK18畳以上、湖・池が見える、整形地、2階建、都市ガス |
| ■ Kuno Kitai about up to elementary school 240m 3-minute walk! ■ A feeling of opening in the view from the second floor pond popping a quiet residential area! ■ Spacious floor plan and building 58.52 square meters. Indoor state is good! ■久野木台小学校まで約240m徒歩3分!■2階から池が見張らせる眺望で開放感のある閑静な住宅地!■建物58.52坪と広々とした間取り。室内状態良好! |
Features pickup 特徴ピックアップ | | Corresponding to the flat-35S / Year Available / Parking two Allowed / Land 50 square meters or more / LDK18 tatami mats or more / lake ・ See the pond / Super close / Flat to the station / A quiet residential area / Or more before road 6m / Japanese-style room / Shaping land / garden / Home garden / 2-story / Warm water washing toilet seat / The window in the bathroom / Mu front building / Ventilation good / All room 6 tatami mats or more / City gas / A large gap between the neighboring house / Development subdivision in / Readjustment land within フラット35Sに対応 /年内入居可 /駐車2台可 /土地50坪以上 /LDK18畳以上 /湖・池が見える /スーパーが近い /駅まで平坦 /閑静な住宅地 /前道6m以上 /和室 /整形地 /庭 /家庭菜園 /2階建 /温水洗浄便座 /浴室に窓 /前面棟無 /通風良好 /全居室6畳以上 /都市ガス /隣家との間隔が大きい /開発分譲地内 /区画整理地内 | Price 価格 | | 34,800,000 yen 3480万円 | Floor plan 間取り | | 4LDK 4LDK | Units sold 販売戸数 | | 1 units 1戸 | Land area 土地面積 | | 193.46 sq m (58.52 tsubo) (Registration) 193.46m2(58.52坪)(登記) | Building area 建物面積 | | 128.45 sq m (38.85 tsubo) (Registration) 128.45m2(38.85坪)(登記) | Driveway burden-road 私道負担・道路 | | Nothing, West 6m width 無、西6m幅 | Completion date 完成時期(築年月) | | October 1993 1993年10月 | Address 住所 | | Osaka Prefecture Tondabayashi Kunokidai 1 大阪府富田林市久野喜台1 | Traffic 交通 | | Nankai Koya Line "Kongo" walk 8 minutes Nankai Koya Line "Osakasayama" walk 8 minutes 南海高野線「金剛」歩8分 南海高野線「大阪狭山市」歩8分
| Related links 関連リンク | | [Related Sites of this company] 【この会社の関連サイト】 | Person in charge 担当者より | | Rep Mizuguchi Satoshi揮 担当者水口 智揮 | Contact お問い合せ先 | | Sumitomo Forestry Home Service Co., Ltd. Sakai Kitanoda shop TEL: 0800-603-0289 [Toll free] mobile phone ・ Also available from PHS Caller ID is not notified Please contact the "saw SUUMO (Sumo)" If it does not lead, If the real estate company 住友林業ホームサービス(株)堺北野田店TEL:0800-603-0289【通話料無料】携帯電話・PHSからもご利用いただけます 発信者番号は通知されません 「SUUMO(スーモ)を見た」と問い合わせください つながらない方、不動産会社の方は
| Building coverage, floor area ratio 建ぺい率・容積率 | | 40% ・ 80% 40%・80% | Time residents 入居時期 | | Consultation 相談 | Land of the right form 土地の権利形態 | | Ownership 所有権 | Structure and method of construction 構造・工法 | | Wooden 2-story 木造2階建 | Use district 用途地域 | | One low-rise 1種低層 | Other limitations その他制限事項 | | Residential land development construction regulation area 宅地造成工事規制区域 | Overview and notices その他概要・特記事項 | | Contact: Mizuguchi Satoshi揮, Facilities: Public Water Supply, This sewage, City gas, Parking: Car Port 担当者:水口 智揮、設備:公営水道、本下水、都市ガス、駐車場:カーポート | Company profile 会社概要 | | <Mediation> Minister of Land, Infrastructure and Transport (14) Article 000220 No. Sumitomo Forestry Home Service Co., Ltd. Sakai Kitanoda shop Yubinbango599-8123 Sakai City, Osaka Prefecture, Higashi-ku, Kitanoda 1077 Aminasu Kitanoda No. 1 floor 103 <仲介>国土交通大臣(14)第000220号住友林業ホームサービス(株)堺北野田店〒599-8123 大阪府堺市東区北野田1077 アミナス北野田1階103号 |
Local appearance photo現地外観写真  Local (06 May 2013) Shooting
現地(2013年06月)撮影
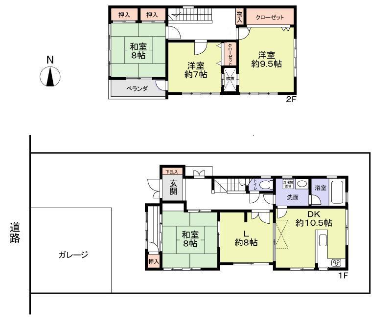
Floor plan間取り図  34,800,000 yen, 4LDK, Land area 193.46 sq m , Building area 128.45 sq m
3480万円、4LDK、土地面積193.46m2、建物面積128.45m2
Local photos, including front road前面道路含む現地写真  Local (06 May 2013) Shooting
現地(2013年06月)撮影
Local appearance photo現地外観写真  Local (June 2013) Shooting
現地(2013年6月)撮影
Bathroom浴室  Indoor (06 May 2013) Shooting
室内(2013年06月)撮影
Toiletトイレ  Indoor (June 2013) Shooting
室内(2013年6月)撮影
Location
|