|
|
Toyonaka, Osaka
大阪府豊中市
|
|
Hankyu Takarazuka Line "Shonai" walk 10 minutes
阪急宝塚線「庄内」歩10分
|
|
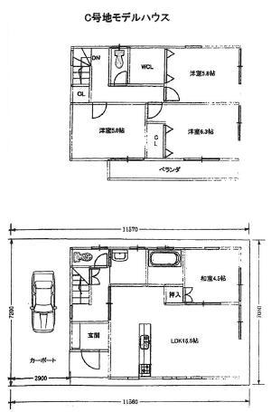
Land about 25 square meters or more, Spacious frontage whopping 10m more than! 4LDK + loft room a floor plan of! Neat luggage with a walk-in closet! Super Life ・ EDION ・ Nitori walk
土地約25坪以上、広々間口はなんと10m超!4LDK+ロフトのゆとりある間取り!ウォークインクローゼットが付いて荷物もすっきり!スーパーライフ・エディオン・ニトリ徒歩
|
|
Super Life ・ EDION ・ Nitori all within a 5-minute walk! 4LDK + loft! I system Kitchen is the ideal 2-story, Yang per good, 2-story, Ventilation good, City gas
スーパーライフ・エディオン・ニトリ全て徒歩5分圏内!4LDK+ロフト付!理想的な2階建ですねシステムキッチン、陽当り良好、2階建、通風良好、都市ガス
|
Features pickup 特徴ピックアップ | | System kitchen / Yang per good / 2-story / Ventilation good / City gas システムキッチン /陽当り良好 /2階建 /通風良好 /都市ガス |
Price 価格 | | 26,900,000 yen 2690万円 |
Floor plan 間取り | | 4LDK 4LDK |
Units sold 販売戸数 | | 1 units 1戸 |
Total units 総戸数 | | 3 units 3戸 |
Land area 土地面積 | | 83.31 sq m (registration) 83.31m2(登記) |
Building area 建物面積 | | 90.9 sq m (registration) 90.9m2(登記) |
Driveway burden-road 私道負担・道路 | | Nothing 無 |
Completion date 完成時期(築年月) | | October 2012 2012年10月 |
Address 住所 | | Toyonaka, Osaka Shonaihigashi-cho, 6 大阪府豊中市庄内東町6 |
Traffic 交通 | | Hankyu Takarazuka Line "Shonai" walk 10 minutes 阪急宝塚線「庄内」歩10分
|
Related links 関連リンク | | [Related Sites of this company] 【この会社の関連サイト】 |
Person in charge 担当者より | | Rep Kanno Takaaki Age: purchase or sale of the 30's My home is a big turning point in my life. To be a good turning point for our customers, We promise our best support. Please tell us the Nari What to "Kanno" is that of Hokusetsu area. ※ The father of TEMPORARY! 担当者菅野 貴明年齢:30代マイホームの購入や売却は人生において大きな転機です。お客様にとって良い転機になるよう、全力サポートをお約束します。北摂エリアのことは「菅野」になんなりとお申し付けください。※一児の父です! |
Contact お問い合せ先 | | TEL: 0800-603-2194 [Toll free] mobile phone ・ Also available from PHS Caller ID is not notified Please contact the "saw SUUMO (Sumo)" If it does not lead, If the real estate company TEL:0800-603-2194【通話料無料】携帯電話・PHSからもご利用いただけます 発信者番号は通知されません 「SUUMO(スーモ)を見た」と問い合わせください つながらない方、不動産会社の方は
|
Building coverage, floor area ratio 建ぺい率・容積率 | | 60% ・ 200% 60%・200% |
Time residents 入居時期 | | Immediate available 即入居可 |
Land of the right form 土地の権利形態 | | Ownership 所有権 |
Structure and method of construction 構造・工法 | | Wooden 2-story 木造2階建 |
Use district 用途地域 | | Semi-industrial 準工業 |
Overview and notices その他概要・特記事項 | | Contact: Kanno Takaaki, Facilities: Public Water Supply, This sewage, City gas, Parking: Garage 担当者:菅野 貴明、設備:公営水道、本下水、都市ガス、駐車場:車庫 |
Company profile 会社概要 | | <Mediation> governor of Osaka (6) No. 040965 (Ltd.) Kuresuseru Toyonaka store Yubinbango561-0802 Toyonaka, Osaka Sonehigashino cho 1-10-3 <仲介>大阪府知事(6)第040965号(株)クレスセル豊中店〒561-0802 大阪府豊中市曽根東町1-10-3 |