Used Homes » Kansai » Osaka prefecture » Toyonaka
 
| | Toyonaka, Osaka 大阪府豊中市 |
| Northern Osaka Express "Momoyamadai" 8 minutes Higashitoyonaka cho 4-chome, walk 5 minutes by bus 北大阪急行「桃山台」バス8分東豊中町4丁目歩5分 |
| Land area of about 41 square meters! Indoor part renovated (April 2003). There bathroom heating dryer. Attic housed there. A kind low-rise of a quiet residential area. 土地面積約41坪! 室内一部改装済み(平成15年4月)。 浴室暖房乾燥機有り。 屋根裏収納有り。 一種低層の閑静な住宅地。 |
| Immediate Available, Interior renovation, System kitchen, Bathroom Dryer, Yang per good, All room storage, A quiet residential area, LDK15 tatami mats or moreese-style room, Shaping land, Garden more than 10 square meters, garden, Shutter garage, 2-story, The window in the bathroom, Ventilation good, Good view, All room 6 tatami mats or more, City gas, Attic storage 即入居可、内装リフォーム、システムキッチン、浴室乾燥機、陽当り良好、全居室収納、閑静な住宅地、LDK15畳以上、和室、整形地、庭10坪以上、庭、シャッター車庫、2階建、浴室に窓、通風良好、眺望良好、全居室6畳以上、都市ガス、屋根裏収納 |
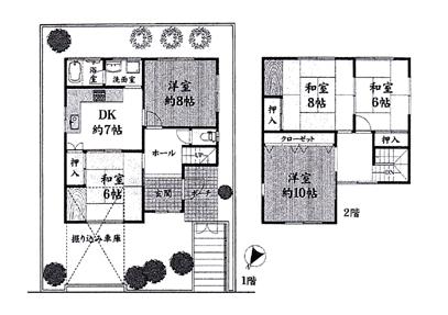
Features pickup 特徴ピックアップ | | Immediate Available / Interior renovation / System kitchen / Bathroom Dryer / Yang per good / All room storage / A quiet residential area / LDK15 tatami mats or more / Japanese-style room / Shaping land / Garden more than 10 square meters / garden / Shutter - garage / 2-story / The window in the bathroom / Ventilation good / Good view / All room 6 tatami mats or more / City gas / Attic storage 即入居可 /内装リフォーム /システムキッチン /浴室乾燥機 /陽当り良好 /全居室収納 /閑静な住宅地 /LDK15畳以上 /和室 /整形地 /庭10坪以上 /庭 /シャッタ-車庫 /2階建 /浴室に窓 /通風良好 /眺望良好 /全居室6畳以上 /都市ガス /屋根裏収納 | Price 価格 | | 27,800,000 yen 2780万円 | Floor plan 間取り | | 4LDK 4LDK | Units sold 販売戸数 | | 1 units 1戸 | Land area 土地面積 | | 135.6 sq m (41.01 tsubo) (Registration) 135.6m2(41.01坪)(登記) | Building area 建物面積 | | 108.46 sq m (32.80 tsubo) (Registration) 108.46m2(32.80坪)(登記) | Driveway burden-road 私道負担・道路 | | Nothing, Northwest 4m width 無、北西4m幅 | Completion date 完成時期(築年月) | | December 1974 1974年12月 | Address 住所 | | Toyonaka, Osaka Higashitoyonaka cho 4 大阪府豊中市東豊中町4 | Traffic 交通 | | Northern Osaka Express "Momoyamadai" 8 minutes Higashitoyonaka cho 4-chome, walk 5 minutes by bus 北大阪急行「桃山台」バス8分東豊中町4丁目歩5分
| Related links 関連リンク | | [Related Sites of this company] 【この会社の関連サイト】 | Person in charge 担当者より | | Person in charge of a lot Given Age: 40 Daigyokai experience: to cherish the trust relationship with the 22-year customer, We try to speedy response. We aim to become a friendly partner can consult with confidence whatever is on the house. Anything feel free to please consult. 担当者沢山 儀文年齢:40代業界経験:22年お客様との信頼関係を大切にし、スピーディーな対応を心がけております。住まいに関することなら何でも安心して相談できる親しみやすいパートナーになることを目指しております。何でも気軽にご相談ください。 | Contact お問い合せ先 | | TEL: 0800-603-1598 [Toll free] mobile phone ・ Also available from PHS Caller ID is not notified Please contact the "saw SUUMO (Sumo)" If it does not lead, If the real estate company TEL:0800-603-1598【通話料無料】携帯電話・PHSからもご利用いただけます 発信者番号は通知されません 「SUUMO(スーモ)を見た」と問い合わせください つながらない方、不動産会社の方は
| Building coverage, floor area ratio 建ぺい率・容積率 | | 40% ・ 80% 40%・80% | Time residents 入居時期 | | Immediate available 即入居可 | Land of the right form 土地の権利形態 | | Ownership 所有権 | Structure and method of construction 構造・工法 | | Wooden 2-story 木造2階建 | Renovation リフォーム | | April 2003 interior renovation completed (kitchen ・ floor) 2003年4月内装リフォーム済(キッチン・床) | Use district 用途地域 | | One low-rise 1種低層 | Other limitations その他制限事項 | | Landscape district 景観地区 | Overview and notices その他概要・特記事項 | | Contact: lot Given, Facilities: Public Water Supply, This sewage, City gas, Parking: Garage 担当者:沢山 儀文、設備:公営水道、本下水、都市ガス、駐車場:車庫 | Company profile 会社概要 | | <Mediation> governor of Osaka (6) No. 040391 Kinki ・ Estate Co., Ltd. Yubinbango560-0085 Toyonaka, Osaka Kaminitta 3-1-9 studio Chisato second floor <仲介>大阪府知事(6)第040391号キンキ・エステート(株)〒560-0085 大阪府豊中市上新田3-1-9 スタジオ千里2階 |
Local appearance photo現地外観写真  local
現地
 local
現地
Floor plan間取り図  27,800,000 yen, 4LDK, Land area 135.6 sq m , Building area 108.46 sq m
2780万円、4LDK、土地面積135.6m2、建物面積108.46m2
Local appearance photo現地外観写真  local
現地
 Living
リビング
 Bathroom
浴室
 Kitchen
キッチン
 Non-living room
リビング以外の居室
 Entrance
玄関
 Wash basin, toilet
洗面台・洗面所
 Toilet
トイレ
Local photos, including front road前面道路含む現地写真  local
現地
 Garden
庭
 Parking lot
駐車場
Station駅  1440m to Momoyamadai Station
桃山台駅まで1440m
 View photos from the dwelling unit
住戸からの眺望写真
Otherその他  Two Roh Setsuchi park
二ノ切池公園
Local photos, including front road前面道路含む現地写真  local
現地
Shopping centreショッピングセンター  Until Hazard Momoyamadai 1340m
アザール桃山台まで1340m
Otherその他  Supermarket
スーパー
Supermarketスーパー  Maruyasu 650m to super
マルヤススーパーまで650m
Location
|