Used Homes » Kansai » Osaka prefecture » Toyonaka
 
| | Toyonaka, Osaka 大阪府豊中市 |
| Hankyu Takarazuka Line "Toyonaka" 10 minutes Ayumi Shibahara 2 minutes by bus 阪急宝塚線「豊中」バス10分柴原歩2分 |
| ◆ 4DK + storeroom is used detached with. ◆ There car space. ◆ It is acceptable as a rebuilding site. ◆ Surrounding environment is good! ◆ 2WAY access serving the Hankyu Takarazuka Line and Osakamonorerusen ◆4DK+納戸のある中古戸建てです。◆カースペースございます。◆建替用地としても可。◆周辺環境は良好!◆阪急宝塚線と大阪モノレール線をご利用いただける2WAYアクセス |
| ・ Room to make it easier to live in before occupancy, Because that was implemented a little renovation, Living will has become a home full of bright and clean feeling. ・ Because there is closet there is housed in the whole room, Your luggage will also be put away easily. ・ There is a contact road on the south side, Veranda is also facing south because the day is good. ・ There is a space on the south side, You can enjoy a little garden. ・ There is a central loop line if you go a little, Car access is also convenient. ・ Sakurai valley elementary school ・ The second junior high school ・室内は入居前に住みやすくするために、少しリフォームを実施された為、リビングは明るく清潔感あふれるご自宅となっております。・全居室に収納があり納戸もございますので、お荷物も簡単に片付けられます。・南側に接道があり、ベランダも南向きですので日当たり良好です。・南側にスペースがあり、ちょっとしたお庭をお楽しみいただけます。・少し行けば中央環状線があり、車のアクセスも便利です。・桜井谷小学校・第二中学校 |
Features pickup 特徴ピックアップ | | 2 along the line more accessible / Super close / It is close to the city / Facing south / Yang per good / All room storage / A quiet residential area / Around traffic fewer / Japanese-style room / 2-story / South balcony / Nantei / The window in the bathroom / Leafy residential area / Ventilation good / Good view / City gas / Storeroom / Flat terrain 2沿線以上利用可 /スーパーが近い /市街地が近い /南向き /陽当り良好 /全居室収納 /閑静な住宅地 /周辺交通量少なめ /和室 /2階建 /南面バルコニー /南庭 /浴室に窓 /緑豊かな住宅地 /通風良好 /眺望良好 /都市ガス /納戸 /平坦地 | Price 価格 | | 17.8 million yen 1780万円 | Floor plan 間取り | | 4DK + S (storeroom) 4DK+S(納戸) | Units sold 販売戸数 | | 1 units 1戸 | Total units 総戸数 | | 1 units 1戸 | Land area 土地面積 | | 90.44 sq m (registration) 90.44m2(登記) | Building area 建物面積 | | 81.12 sq m (registration) 81.12m2(登記) | Driveway burden-road 私道負担・道路 | | Nothing, South 4.7m width 無、南4.7m幅 | Completion date 完成時期(築年月) | | March 1974 1974年3月 | Address 住所 | | Toyonaka, Osaka Sakurano cho 3 大阪府豊中市桜の町3 | Traffic 交通 | | Hankyu Takarazuka Line "Toyonaka" 10 minutes Ayumi Shibahara 2 minutes by bus Osaka Monorail Main Line "Shibahara" walk 10 minutes Osaka Monorail Main Line "Shoji" walk 15 minutes 阪急宝塚線「豊中」バス10分柴原歩2分 大阪モノレール本線「柴原」歩10分 大阪モノレール本線「少路」歩15分
| Related links 関連リンク | | [Related Sites of this company] 【この会社の関連サイト】 | Contact お問い合せ先 | | TEL: 0800-602-6598 [Toll free] mobile phone ・ Also available from PHS Caller ID is not notified Please contact the "saw SUUMO (Sumo)" If it does not lead, If the real estate company TEL:0800-602-6598【通話料無料】携帯電話・PHSからもご利用いただけます 発信者番号は通知されません 「SUUMO(スーモ)を見た」と問い合わせください つながらない方、不動産会社の方は
| Building coverage, floor area ratio 建ぺい率・容積率 | | 60% ・ 200% 60%・200% | Time residents 入居時期 | | Consultation 相談 | Land of the right form 土地の権利形態 | | Ownership 所有権 | Structure and method of construction 構造・工法 | | Wooden 2-story 木造2階建 | Use district 用途地域 | | One middle and high 1種中高 | Overview and notices その他概要・特記事項 | | Facilities: Public Water Supply, This sewage, City gas, Parking: car space 設備:公営水道、本下水、都市ガス、駐車場:カースペース | Company profile 会社概要 | | <Mediation> governor of Osaka (2) No. 051345 (Ltd.) World ・ One Toyonaka store Yubinbango560-0021 Toyonaka, Osaka Honcho 4-1-22 <仲介>大阪府知事(2)第051345号(株)ワールド・ワン豊中店〒560-0021 大阪府豊中市本町4-1-22 |
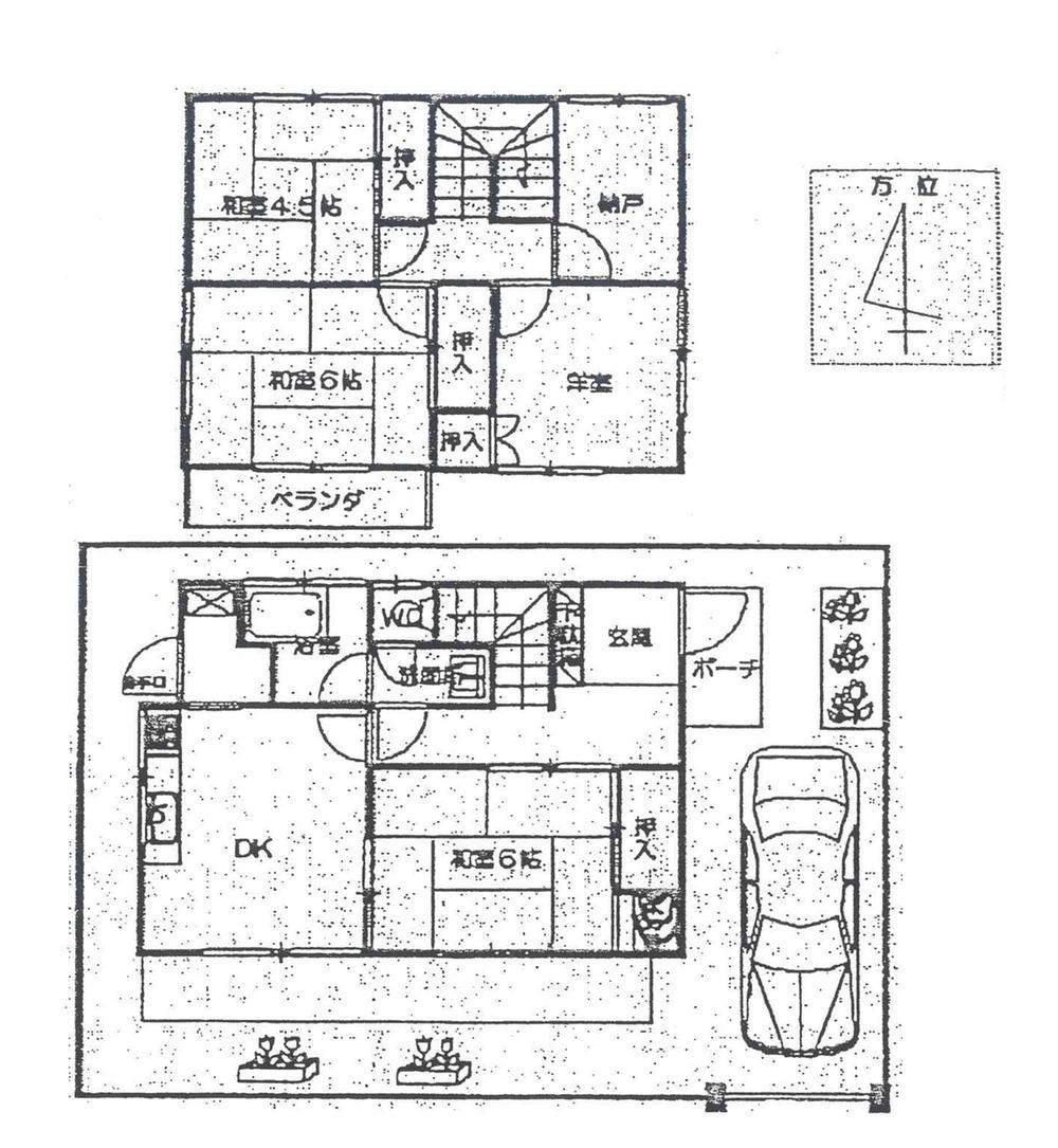
Floor plan間取り図  17.8 million yen, 4DK + S (storeroom), Land area 90.44 sq m , Building area 81.12 sq m Sakurano-cho 3-chome in Fould Ken car space ・ Closet with 4DK
1780万円、4DK+S(納戸)、土地面積90.44m2、建物面積81.12m2 桜の町3丁目中古戸建カースペース・納戸付4DK
Local appearance photo現地外観写真  Local appearance is a picture.
現地外観写真です。
Parking lot駐車場  There car space.
カースペースございます。
Local photos, including front road前面道路含む現地写真  Local front road
現地前面道路
Supermarketスーパー  1453m to Hankyu Oasis Toyonaka Shoji shop
阪急オアシス豊中少路店まで1453m
High school ・ College高校・高専  1137m to Osaka Prefectural Toyonaka High School
大阪府立豊中高校まで1137m
Junior high school中学校  Toyonaka 869m to stand second junior high school
豊中市立第二中学校まで869m
Primary school小学校  Toyonaka 1039m until the Municipal Sakurai Tanihigashi Elementary School
豊中市立桜井谷東小学校まで1039m
Kindergarten ・ Nursery幼稚園・保育園  Toyonaka 527m until the green kindergarten
豊中みどり幼稚園まで527m
Hospital病院  Municipal Toyonaka to the hospital 781m
市立豊中病院まで781m
Library図書館  1439m to Osaka University Main Library
大阪大学附属図書館本館まで1439m
Park公園  951m until Miyayama park
宮山公園まで951m
 1365m to Akasaka upper reservoir park
赤坂上池公園まで1365m
Location
|