1968January
123 million yen, 5LDK + S (storeroom), 222.55 sq m
Used Homes » Kansai » Osaka prefecture » Toyonaka

| | Toyonaka, Osaka 大阪府豊中市 |
| Osaka Monorail Main Line "Senri" walk 18 minutes 大阪モノレール本線「千里中央」歩18分 |
| LDK18 tatami mats or more, Yang per good, A quiet residential areaese-style room, Ventilation good, City gas LDK18畳以上、陽当り良好、閑静な住宅地、和室、通風良好、都市ガス |
| Station walk 18 minutes Living environment favorable Life convenient Northwest corner lot 駅歩18分 住環境良好 生活至便 北西角地 |
Features pickup 特徴ピックアップ | | LDK18 tatami mats or more / Yang per good / A quiet residential area / Japanese-style room / Toilet 2 places / Ventilation good / City gas LDK18畳以上 /陽当り良好 /閑静な住宅地 /和室 /トイレ2ヶ所 /通風良好 /都市ガス | Price 価格 | | 123 million yen 1億2300万円 | Floor plan 間取り | | 5LDK + S (storeroom) 5LDK+S(納戸) | Units sold 販売戸数 | | 1 units 1戸 | Land area 土地面積 | | 343.3 sq m (registration) 343.3m2(登記) | Building area 建物面積 | | 222.55 sq m (registration) 222.55m2(登記) | Driveway burden-road 私道負担・道路 | | Nothing 無 | Completion date 完成時期(築年月) | | January 1968 1968年1月 | Address 住所 | | Osaka Toyonaka Midorigaoka 2 大阪府豊中市緑丘2 | Traffic 交通 | | Osaka Monorail Main Line "Senri" walk 18 minutes 大阪モノレール本線「千里中央」歩18分
| Related links 関連リンク | | [Related Sites of this company] 【この会社の関連サイト】 | Contact お問い合せ先 | | TEL: 0800-603-2194 [Toll free] mobile phone ・ Also available from PHS Caller ID is not notified Please contact the "saw SUUMO (Sumo)" If it does not lead, If the real estate company TEL:0800-603-2194【通話料無料】携帯電話・PHSからもご利用いただけます 発信者番号は通知されません 「SUUMO(スーモ)を見た」と問い合わせください つながらない方、不動産会社の方は
| Time residents 入居時期 | | Consultation 相談 | Land of the right form 土地の権利形態 | | Ownership 所有権 | Structure and method of construction 構造・工法 | | Wooden 2-story 木造2階建 | Company profile 会社概要 | | <Mediation> governor of Osaka (6) No. 040965 (Ltd.) Kuresuseru Toyonaka store Yubinbango561-0802 Toyonaka, Osaka Sonehigashino cho 1-10-3 <仲介>大阪府知事(6)第040965号(株)クレスセル豊中店〒561-0802 大阪府豊中市曽根東町1-10-3 |
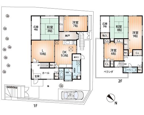
Floor plan間取り図  123 million yen, 5LDK + S (storeroom), Land area 343.3 sq m , Building area 222.55 sq m
1億2300万円、5LDK+S(納戸)、土地面積343.3m2、建物面積222.55m2
Location
|