Used Homes » Kansai » Osaka prefecture » Toyonaka
 
| | Toyonaka, Osaka 大阪府豊中市 |
| Hankyu Takarazuka Line "Toyonaka" walk 19 minutes 阪急宝塚線「豊中」歩19分 |
| ◇ good per sun on the southeast corner lot! ◇ east road width about 6.7m, Good per sun on the south side road width about 4.6m! ◇ There is no difference in height between the road and on-site ◇ about to Ueno elementary school 630m (about 8 minutes walk ◇東南角地で陽当たり良好! ◇東側道路幅員約6.7m、南側道路幅員約4.6mで陽当たり良好! ◇道路と敷地との高低差はありません ◇上野小学校まで約630m(約徒歩8分 |
| Immediate Available, Super close, Facing south, Yang per good, All room storage, Siemens south road, A quiet residential area, Or more before road 6m, Corner lotese-style room, Toilet 2 places, 2-story, South balcony, The window in the bathroom, Ventilation good, All room 6 tatami mats or more, City gas 即入居可、スーパーが近い、南向き、陽当り良好、全居室収納、南側道路面す、閑静な住宅地、前道6m以上、角地、和室、トイレ2ヶ所、2階建、南面バルコニー、浴室に窓、通風良好、全居室6畳以上、都市ガス |
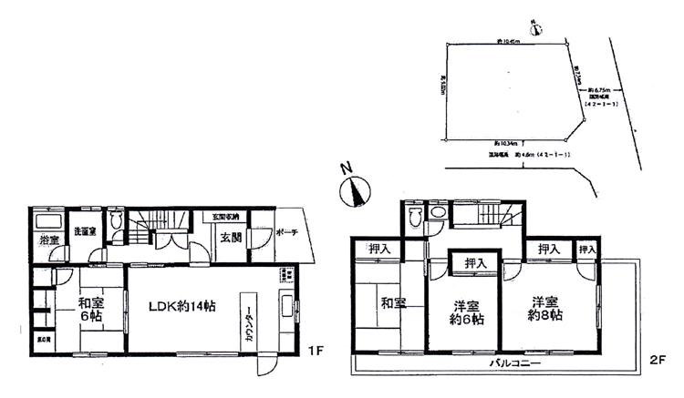
Features pickup 特徴ピックアップ | | Immediate Available / See the mountain / Super close / Facing south / Yang per good / All room storage / Siemens south road / A quiet residential area / Around traffic fewer / Or more before road 6m / Corner lot / Japanese-style room / Shaping land / Toilet 2 places / 2-story / South balcony / Nantei / The window in the bathroom / Ventilation good / Good view / All room 6 tatami mats or more / City gas / Flat terrain 即入居可 /山が見える /スーパーが近い /南向き /陽当り良好 /全居室収納 /南側道路面す /閑静な住宅地 /周辺交通量少なめ /前道6m以上 /角地 /和室 /整形地 /トイレ2ヶ所 /2階建 /南面バルコニー /南庭 /浴室に窓 /通風良好 /眺望良好 /全居室6畳以上 /都市ガス /平坦地 | Event information イベント情報 | | Local tours (Please be sure to ask in advance) schedule / Now open 現地見学会(事前に必ずお問い合わせください)日程/公開中 | Price 価格 | | 29,800,000 yen 2980万円 | Floor plan 間取り | | 4LDK 4LDK | Units sold 販売戸数 | | 1 units 1戸 | Land area 土地面積 | | 101.49 sq m (30.70 tsubo) (Registration) 101.49m2(30.70坪)(登記) | Building area 建物面積 | | 102.61 sq m (31.03 tsubo) (Registration) 102.61m2(31.03坪)(登記) | Driveway burden-road 私道負担・道路 | | Nothing, East 6.7m width, South 4.6m width 無、東6.7m幅、南4.6m幅 | Completion date 完成時期(築年月) | | March 1982 1982年3月 | Address 住所 | | Osaka Toyonaka Uenohigashi 1 大阪府豊中市上野東1 | Traffic 交通 | | Hankyu Takarazuka Line "Toyonaka" walk 19 minutes Northern Osaka Express "Momoyamadai" 15 minutes Kumanonishi walk 3 minutes by bus 阪急宝塚線「豊中」歩19分 北大阪急行「桃山台」バス15分熊野西歩3分
| Related links 関連リンク | | [Related Sites of this company] 【この会社の関連サイト】 | Person in charge 担当者より | | Person in charge of a lot Given Age: 40 Daigyokai experience: to cherish the trust relationship with the 22-year customer, We try to speedy response. We aim to become a friendly partner can consult with confidence whatever is on the house. Anything feel free to please consult. 担当者沢山 儀文年齢:40代業界経験:22年お客様との信頼関係を大切にし、スピーディーな対応を心がけております。住まいに関することなら何でも安心して相談できる親しみやすいパートナーになることを目指しております。何でも気軽にご相談ください。 | Contact お問い合せ先 | | TEL: 0800-603-1598 [Toll free] mobile phone ・ Also available from PHS Caller ID is not notified Please contact the "saw SUUMO (Sumo)" If it does not lead, If the real estate company TEL:0800-603-1598【通話料無料】携帯電話・PHSからもご利用いただけます 発信者番号は通知されません 「SUUMO(スーモ)を見た」と問い合わせください つながらない方、不動産会社の方は
| Building coverage, floor area ratio 建ぺい率・容積率 | | 60% ・ 150% 60%・150% | Time residents 入居時期 | | Immediate available 即入居可 | Land of the right form 土地の権利形態 | | Ownership 所有権 | Structure and method of construction 構造・工法 | | Wooden 2-story 木造2階建 | Use district 用途地域 | | One low-rise 1種低層 | Other limitations その他制限事項 | | Landscape district 景観地区 | Overview and notices その他概要・特記事項 | | Contact: lot Given, Facilities: Public Water Supply, This sewage, City gas, Parking: car space 担当者:沢山 儀文、設備:公営水道、本下水、都市ガス、駐車場:カースペース | Company profile 会社概要 | | <Mediation> governor of Osaka (6) No. 040391 Kinki ・ Estate Co., Ltd. Yubinbango560-0085 Toyonaka, Osaka Kaminitta 3-1-9 studio Chisato second floor <仲介>大阪府知事(6)第040391号キンキ・エステート(株)〒560-0085 大阪府豊中市上新田3-1-9 スタジオ千里2階 |
Local appearance photo現地外観写真  local
現地
Floor plan間取り図  29,800,000 yen, 4LDK, Land area 101.49 sq m , Building area 102.61 sq m
2980万円、4LDK、土地面積101.49m2、建物面積102.61m2
Local appearance photo現地外観写真  local
現地
 Living
リビング
 Bathroom
浴室
 Kitchen
キッチン
 Non-living room
リビング以外の居室
 Entrance
玄関
 Wash basin, toilet
洗面台・洗面所
 Toilet
トイレ
Local photos, including front road前面道路含む現地写真  local
現地
 Parking lot
駐車場
Other Environmental Photoその他環境写真  320m to Japan
ジャパンまで320m
 View photos from the dwelling unit
住戸からの眺望写真
 Living
リビング
 Non-living room
リビング以外の居室
 Entrance
玄関
 Toilet
トイレ
Local photos, including front road前面道路含む現地写真  local
現地
Supermarketスーパー  320m to super
スーパーまで320m
 View photos from the dwelling unit
住戸からの眺望写真
Location
|