1981February
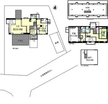
128 million yen, 2LDK, 296.7 sq m
Used Homes » Kansai » Osaka prefecture » Toyonaka
 
| | Toyonaka, Osaka 大阪府豊中市 |
| Northern Osaka Express "Senri" bus 10 minutes Hankyu: Toyonaka AzumaAyumi 9 minutes 北大阪急行「千里中央」バス10分阪急バス:豊中東歩9分 |
Price 価格 | | 128 million yen 1億2800万円 | Floor plan 間取り | | 2LDK 2LDK | Units sold 販売戸数 | | 1 units 1戸 | Land area 土地面積 | | 495.91 sq m (registration) 495.91m2(登記) | Building area 建物面積 | | 296.7 sq m (registration) 296.7m2(登記) | Driveway burden-road 私道負担・道路 | | Nothing, South 5.5m width 無、南5.5m幅 | Completion date 完成時期(築年月) | | February 1981 1981年2月 | Address 住所 | | Toyonaka, Osaka Higashitoyonaka cho 3 大阪府豊中市東豊中町3 | Traffic 交通 | | Northern Osaka Express "Senri" bus 10 minutes Hankyu: Toyonaka AzumaAyumi 9 minutes 北大阪急行「千里中央」バス10分阪急バス:豊中東歩9分
| Person in charge 担当者より | | Rep Kuwahara Yuji 担当者桑原 雄二 | Contact お問い合せ先 | | Sumitomo Real Estate Sales Co., Ltd. Kansai Corporate Sales Department TEL: 06-6479-8785 Please contact as "saw SUUMO (Sumo)" 住友不動産販売(株)関西法人営業部TEL:06-6479-8785「SUUMO(スーモ)を見た」と問い合わせください | Building coverage, floor area ratio 建ぺい率・容積率 | | 40% ・ 80% 40%・80% | Time residents 入居時期 | | Immediate available 即入居可 | Land of the right form 土地の権利形態 | | Ownership 所有権 | Structure and method of construction 構造・工法 | | RC3 floors 1 underground story RC3階地下1階建 | Use district 用途地域 | | One low-rise 1種低層 | Other limitations その他制限事項 | | / BASIS buying and selling seller warranty disclaimer / Terrain: upland /現状有姿売買売主瑕疵担保免責/地勢:高台 | Overview and notices その他概要・特記事項 | | Contact: Kuwahara Yuji, Parking: car space 担当者:桑原 雄二、駐車場:カースペース | Company profile 会社概要 | | <Mediation> Minister of Land, Infrastructure and Transport (11) No. 002077 Sumitomo Real Estate Sales Co., Ltd. Kansai corporate sales department Yubinbango530-0005 Osaka-shi, Osaka, Kita-ku Nakanoshima 3-2-18 <仲介>国土交通大臣(11)第002077号住友不動産販売(株)関西法人営業部〒530-0005 大阪府大阪市北区中之島3-2-18 |
Local appearance photo現地外観写真  Than external front
外観正面より
 Floor plan
間取り図
Location
|