Used Homes » Kansai » Osaka prefecture » Toyonaka
 
| | Toyonaka, Osaka 大阪府豊中市 |
| Hankyu Takarazuka Line "Toyonaka" walk 12 minutes 阪急宝塚線「豊中」歩12分 |
| Villa mood in the city ・ Please enjoy the splendid panorama from Sky balcony. 都会の中の別荘気分・スカイバルコニーから素晴らしいパノラマをお楽しみください。 |
| Parking two Allowed, Immediate Available, 2 along the line more accessible, Interior renovation, 2-story, Located on a hill 駐車2台可、即入居可、2沿線以上利用可、内装リフォーム、2階建、高台に立地 |
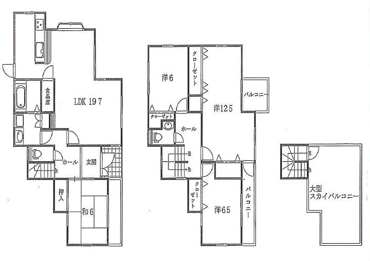
Features pickup 特徴ピックアップ | | Parking two Allowed / Immediate Available / 2 along the line more accessible / System kitchen / 2-story / Located on a hill 駐車2台可 /即入居可 /2沿線以上利用可 /システムキッチン /2階建 /高台に立地 | Event information イベント情報 | | Open House (Please visitors to direct local) schedule / January 11 (Saturday) ~ January 13 (Monday) Time / 11:00 ~ 17:00 open house held Please join us feel free to. オープンハウス(直接現地へご来場ください)日程/1月11日(土曜日) ~ 1月13日(月曜日)時間/11:00 ~ 17:00オープンハウス開催 お気軽にお越しください。 | Price 価格 | | 46,800,000 yen 4680万円 | Floor plan 間取り | | 4LDK 4LDK | Units sold 販売戸数 | | 1 units 1戸 | Land area 土地面積 | | 207.52 sq m (registration) 207.52m2(登記) | Building area 建物面積 | | 122.8 sq m (registration), Among the first floor garage 23.04 sq m , Underground garage 23.04 sq m 122.8m2(登記)、うち1階車庫23.04m2、地下車庫23.04m2 | Driveway burden-road 私道負担・道路 | | Nothing, East 4m width 無、東4m幅 | Completion date 完成時期(築年月) | | April 2009 2009年4月 | Address 住所 | | Osaka Toyonaka Toneyama 2 大阪府豊中市刀根山2 | Traffic 交通 | | Hankyu Takarazuka Line "Toyonaka" walk 12 minutes Osaka Monorail Main Line "Shibahara" walk 6 minutes 阪急宝塚線「豊中」歩12分 大阪モノレール本線「柴原」歩6分
| Contact お問い合せ先 | | (Ltd.) hawk one construction TEL: 072-762-6667 Please inquire as "saw SUUMO (Sumo)" (株)鷹一建設TEL:072-762-6667「SUUMO(スーモ)を見た」と問い合わせください | Building coverage, floor area ratio 建ぺい率・容積率 | | 60% ・ 150% 60%・150% | Time residents 入居時期 | | Immediate available 即入居可 | Land of the right form 土地の権利形態 | | Ownership 所有権 | Structure and method of construction 構造・工法 | | Wooden second floor underground 1 story (framing method) some RC 木造2階地下1階建(軸組工法)一部RC | Use district 用途地域 | | One low-rise 1種低層 | Overview and notices その他概要・特記事項 | | Facilities: Public Water Supply, This sewage, City gas, Parking: underground garage 設備:公営水道、本下水、都市ガス、駐車場:地下車庫 | Company profile 会社概要 | | <Mediation> governor of Osaka (4) No. 045786 (Ltd.) hawk one construction Yubinbango563-0023 Osaka Ikeda Iguchido 2-3-1 <仲介>大阪府知事(4)第045786号(株)鷹一建設〒563-0023 大阪府池田市井口堂2-3-1 |
Floor plan間取り図  46,800,000 yen, 4LDK, Land area 207.52 sq m , Building area 122.8 sq m
4680万円、4LDK、土地面積207.52m2、建物面積122.8m2
Same specifications photos (appearance)同仕様写真(外観)  Local (12 May 2013) Shooting
現地(2013年12月)撮影
Hill photo高台写真  It is seen from the hill site (December 2013) Shooting
高台から見た現地(2013年12月)撮影
Parking lot駐車場  Indoor (12 May 2013) Shooting
室内(2013年12月)撮影
Balconyバルコニー  Indoor (12 May 2013) Shooting
室内(2013年12月)撮影
Other introspectionその他内観  Indoor (12 May 2013) Shooting
室内(2013年12月)撮影
Location
|