Used Homes » Kansai » Osaka prefecture » Toyono district
 
| | Osaka toyono district toyono 大阪府豊能郡豊能町 |
| Nose Electric Railway Myokensen "Kofudai" walk 15 minutes 能勢電鉄妙見線「光風台」歩15分 |
| It wrapped around the mountains, History and nature alive "toyono". Green living environment is attractive by taking advantage of natural. or, It is child-rearing in good quiet residential area. 周囲を山々に 包まれた、歴史と自然が息づく『豊能町』。自然を活かした緑豊かな住環境が魅力です。又、子育てに良い閑静な住宅地です。 |
| ■ It has been completely renovated ■ Misawa Homes ・ Ceramic house ■ Parking 2 cars ■ Small attic housed there ■ Exposure to the sun ・ Ventilation good ■全面リフォーム済み■ミサワホーム・セラミックのお家■駐車2台■小屋根裏収納有り■陽当り・通風良好 |
Features pickup 特徴ピックアップ | | Parking two Allowed / LDK20 tatami mats or more / Land 50 square meters or more / Interior and exterior renovation / System kitchen / Yang per good / A quiet residential area / Or more before road 6m / Japanese-style room / Shaping land / garden / Toilet 2 places / South balcony / Warm water washing toilet seat / The window in the bathroom / Leafy residential area / Ventilation good 駐車2台可 /LDK20畳以上 /土地50坪以上 /内外装リフォーム /システムキッチン /陽当り良好 /閑静な住宅地 /前道6m以上 /和室 /整形地 /庭 /トイレ2ヶ所 /南面バルコニー /温水洗浄便座 /浴室に窓 /緑豊かな住宅地 /通風良好 | Price 価格 | | 19,800,000 yen 1980万円 | Floor plan 間取り | | 5LDK 5LDK | Units sold 販売戸数 | | 1 units 1戸 | Land area 土地面積 | | 212.38 sq m (registration) 212.38m2(登記) | Building area 建物面積 | | 161.08 sq m (registration) 161.08m2(登記) | Driveway burden-road 私道負担・道路 | | Nothing, West 13m width 無、西13m幅 | Completion date 完成時期(築年月) | | July 1988 1988年7月 | Address 住所 | | Osaka toyono district toyono Shinkofudai 4 大阪府豊能郡豊能町新光風台4 | Traffic 交通 | | Nose Electric Railway Myokensen "Kofudai" walk 15 minutes 能勢電鉄妙見線「光風台」歩15分
| Related links 関連リンク | | [Related Sites of this company] 【この会社の関連サイト】 | Person in charge 担当者より | | Rep Kumano The motto of Yoshiaki, "along with a peace of mind.", Important property of our customers are also their property, We have a day-to-day sales activities and bear in mind the. By utilizing a variety of sales methods, We will more quickly and help smooth sale. 担当者熊野 善章「安心を添えて」をモットーに、お客様の大切な財産は自分の財産でもある、と肝に銘じて日々の販売活動をしております。多様な販売方法を活用して、よりスピーディかつスムーズな販売のお手伝いをいたします。 | Contact お問い合せ先 | | TEL: 0800-603-1564 [Toll free] mobile phone ・ Also available from PHS Caller ID is not notified Please contact the "saw SUUMO (Sumo)" If it does not lead, If the real estate company TEL:0800-603-1564【通話料無料】携帯電話・PHSからもご利用いただけます 発信者番号は通知されません 「SUUMO(スーモ)を見た」と問い合わせください つながらない方、不動産会社の方は
| Building coverage, floor area ratio 建ぺい率・容積率 | | 40% ・ 80% 40%・80% | Time residents 入居時期 | | Immediate available 即入居可 | Land of the right form 土地の権利形態 | | Ownership 所有権 | Structure and method of construction 構造・工法 | | Light-gauge steel 2-story 軽量鉄骨2階建 | Renovation リフォーム | | January 2013 interior renovation completed (bathroom ・ toilet ・ wall ・ floor ・ all rooms), 2013 January exterior renovation completed (outer wall ・ roof) 2013年1月内装リフォーム済(浴室・トイレ・壁・床・全室)、2013年1月外装リフォーム済(外壁・屋根) | Use district 用途地域 | | One low-rise 1種低層 | Overview and notices その他概要・特記事項 | | Contact: Kumano Yoshiaki, Facilities: Public Water Supply, This sewage, City gas, Parking: car space 担当者:熊野 善章、設備:公営水道、本下水、都市ガス、駐車場:カースペース | Company profile 会社概要 | | <Mediation> governor of Osaka Prefecture (5) No. 040730 (company) Osaka Building Lots and Buildings Transaction Business Association (Corporation) Kinki district Real Estate Fair Trade Council member Taisei housing Osaka Co., Ltd. Kofudai head office Kofudai Osaka toyono district toyono 5-13-17 <仲介>大阪府知事(5)第040730号(社)大阪府宅地建物取引業協会会員 (公社)近畿地区不動産公正取引協議会加盟たいせい住宅大阪(株)光風台本店大阪府豊能郡豊能町光風台5-13-17 |
Local appearance photo現地外観写真  Local (January 2013) Shooting
現地(2013年1月)撮影
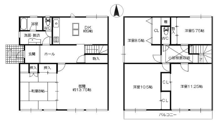
Floor plan間取り図  19,800,000 yen, 5LDK, Land area 212.38 sq m , Building area 161.08 sq m
1980万円、5LDK、土地面積212.38m2、建物面積161.08m2
Local appearance photo現地外観写真  Local (January 2013) Shooting
現地(2013年1月)撮影
Entrance玄関  Local (January 2013) Shooting
現地(2013年1月)撮影
Local appearance photo現地外観写真  Local (January 2013) Shooting
現地(2013年1月)撮影
Livingリビング  Indoor (January 2013) Shooting
室内(2013年1月)撮影
Bathroom浴室  Indoor (January 2013) Shooting
室内(2013年1月)撮影
Kitchenキッチン  Indoor (January 2013) Shooting
室内(2013年1月)撮影
Non-living roomリビング以外の居室  Indoor (January 2013) Shooting
室内(2013年1月)撮影
Entrance玄関  Local (January 2013) Shooting
現地(2013年1月)撮影
Receipt収納  Indoor (January 2013) Shooting
室内(2013年1月)撮影
Toiletトイレ  Indoor (January 2013) Shooting
室内(2013年1月)撮影
Livingリビング  Indoor (January 2013) Shooting
室内(2013年1月)撮影
Non-living roomリビング以外の居室  Indoor (January 2013) Shooting
室内(2013年1月)撮影
 Indoor (January 2013) Shooting
室内(2013年1月)撮影
Location
|