1981June
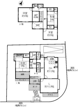
13 million yen, 4LDK + S (storeroom), 145.97 sq m
Used Homes » Kansai » Osaka prefecture » Toyono district
 
| | Osaka toyono district toyono 大阪府豊能郡豊能町 |
| Nose Electric Railway Myokensen "Tokiwadai" walk 14 minutes 能勢電鉄妙見線「ときわ台」歩14分 |
Price 価格 | | 13 million yen 1300万円 | Floor plan 間取り | | 4LDK + S (storeroom) 4LDK+S(納戸) | Units sold 販売戸数 | | 1 units 1戸 | Land area 土地面積 | | 219.45 sq m (registration) 219.45m2(登記) | Building area 建物面積 | | 145.97 sq m (registration) 145.97m2(登記) | Driveway burden-road 私道負担・道路 | | Nothing, Northeast 6.2m width (contact the road width 16.6m), Southeast 6.2m width 無、北東6.2m幅(接道幅16.6m)、南東6.2m幅 | Completion date 完成時期(築年月) | | June 1981 1981年6月 | Address 住所 | | Osaka toyono district toyono Kofudai 5 大阪府豊能郡豊能町光風台5 | Traffic 交通 | | Nose Electric Railway Myokensen "Tokiwadai" walk 14 minutes 能勢電鉄妙見線「ときわ台」歩14分
| Person in charge 担当者より | | The person in charge Tsuda TakashiSatoshi 担当者津田 貴智 | Contact お問い合せ先 | | Sumitomo Real Estate Sales Co., Ltd. Kawanishi Sales Center TEL: 0120-180681 [Toll free] Please contact the "saw SUUMO (Sumo)" 住友不動産販売(株)川西営業センターTEL:0120-180681【通話料無料】「SUUMO(スーモ)を見た」と問い合わせください | Building coverage, floor area ratio 建ぺい率・容積率 | | Fifty percent ・ Hundred percent 50%・100% | Time residents 入居時期 | | Immediate available 即入居可 | Land of the right form 土地の権利形態 | | Ownership 所有権 | Structure and method of construction 構造・工法 | | Wooden 2-story 木造2階建 | Use district 用途地域 | | One low-rise 1種低層 | Other limitations その他制限事項 | | / Terrain: flat /地勢:平坦 | Overview and notices その他概要・特記事項 | | Contact: Tsuda TakashiSatoshi, Parking: car space 担当者:津田 貴智、駐車場:カースペース | Company profile 会社概要 | | <Mediation> Minister of Land, Infrastructure and Transport (11) No. 002077 (one company) Property distribution management Association (Corporation) metropolitan area real estate Fair Trade Council member Sumitomo Real Estate Sales Co., Ltd. Kawanishi business center Yubinbango666-0033 Hyogo Prefecture Kawanishi Sakaemachi 11-1-18 Parti K2 2 floor <仲介>国土交通大臣(11)第002077号(一社)不動産流通経営協会会員 (公社)首都圏不動産公正取引協議会加盟住友不動産販売(株)川西営業センター〒666-0033 兵庫県川西市栄町11-1-18 パルティK2 2階 |
Local appearance photo現地外観写真  Appearance part
外観部分
 Floor plan
間取り図
Location
|