Used Homes » Kansai » Osaka prefecture » Toyono district
 
| | Osaka toyono district toyono 大阪府豊能郡豊能町 |
| Nose Electric Railway Myokensen "Kofudai" walk 5 minutes 能勢電鉄妙見線「光風台」歩5分 |
| It wrapped around the mountains, History and nature alive "toyono". Green living environment is attractive by taking advantage of natural. or, It is child-rearing in good quiet residential area. 周囲を山々に 包まれた、歴史と自然が息づく『豊能町』。自然を活かした緑豊かな住環境が魅力です。又、子育てに良い閑静な住宅地です。 |
| ■ 2 family house ■ Parking 3 cars ■ 1997 March construction ■ Nose Electric Railway "Kofudai" station walk 5 minutes ■ Building area of about 84 square meters ■ Daily qanat Izumiya Kofudai store 3-minute walk ■ Ikeda Senshu Bank Kofudai branch 3-minute walk ■ Takeover Friendly cleaning shop agency ■2世帯住宅■駐車3台■平成9年3月建築■能勢電鉄『光風台』駅徒歩5分■建物面積約84坪■デイリーカナートイズミヤ光風台店徒歩3分■池田泉州銀行光風台出張所徒歩3分■クリーニング店の取次店の引継ぎ可 |
Features pickup 特徴ピックアップ | | Parking three or more possible / LDK20 tatami mats or more / Land 50 square meters or more / System kitchen / All room storage / A quiet residential area / Or more before road 6m / Japanese-style room / Shaping land / Leafy residential area / Built garage / Walk-in closet / All room 6 tatami mats or more / Three-story or more / Flat terrain / 2 family house 駐車3台以上可 /LDK20畳以上 /土地50坪以上 /システムキッチン /全居室収納 /閑静な住宅地 /前道6m以上 /和室 /整形地 /緑豊かな住宅地 /ビルトガレージ /ウォークインクロゼット /全居室6畳以上 /3階建以上 /平坦地 /2世帯住宅 | Price 価格 | | 31,800,000 yen 3180万円 | Floor plan 間取り | | 5LLDDKK 5LLDDKK | Units sold 販売戸数 | | 1 units 1戸 | Land area 土地面積 | | 214.31 sq m (registration) 214.31m2(登記) | Building area 建物面積 | | 278.13 sq m (registration) 278.13m2(登記) | Driveway burden-road 私道負担・道路 | | Nothing, Northeast 6.6m width 無、北東6.6m幅 | Completion date 完成時期(築年月) | | March 1997 1997年3月 | Address 住所 | | Osaka toyono district toyono Kofudai 2 大阪府豊能郡豊能町光風台2 | Traffic 交通 | | Nose Electric Railway Myokensen "Kofudai" walk 5 minutes 能勢電鉄妙見線「光風台」歩5分
| Related links 関連リンク | | [Related Sites of this company] 【この会社の関連サイト】 | Person in charge 担当者より | | [Regarding this property.] In Kofudai head office, Mainly toyono ・ Nose-cho ・ We abundantly handle Hokusetsu real estate information of the area with a focus on Inagawa-cho. Staff, Please drop feel free to, so we have to look forward to your visit of everyone. 【この物件について】光風台本店では、主に豊能町・能勢町・猪名川町を中心とした北摂エリアの不動産物件情報を豊富に取り扱っております。スタッフ一同、皆様のご来店を心よりお待ちしておりますのでどうぞお気軽にお立ち寄りください。 | Contact お問い合せ先 | | TEL: 0800-603-1564 [Toll free] mobile phone ・ Also available from PHS Caller ID is not notified Please contact the "saw SUUMO (Sumo)" If it does not lead, If the real estate company TEL:0800-603-1564【通話料無料】携帯電話・PHSからもご利用いただけます 発信者番号は通知されません 「SUUMO(スーモ)を見た」と問い合わせください つながらない方、不動産会社の方は
| Building coverage, floor area ratio 建ぺい率・容積率 | | 80% ・ 300% 80%・300% | Time residents 入居時期 | | Consultation 相談 | Land of the right form 土地の権利形態 | | Ownership 所有権 | Structure and method of construction 構造・工法 | | Wooden three-story 木造3階建 | Use district 用途地域 | | Residential 近隣商業 | Overview and notices その他概要・特記事項 | | Facilities: Public Water Supply, This sewage, City gas, Parking: Garage 設備:公営水道、本下水、都市ガス、駐車場:車庫 | Company profile 会社概要 | | <Mediation> governor of Osaka Prefecture (5) No. 040730 (company) Osaka Building Lots and Buildings Transaction Business Association (Corporation) Kinki district Real Estate Fair Trade Council member Taisei housing Osaka Co., Ltd. Kofudai head office Kofudai Osaka toyono district toyono 5-13-17 <仲介>大阪府知事(5)第040730号(社)大阪府宅地建物取引業協会会員 (公社)近畿地区不動産公正取引協議会加盟たいせい住宅大阪(株)光風台本店大阪府豊能郡豊能町光風台5-13-17 |
Receipt収納  Indoor (12 May 2013) Shooting
室内(2013年12月)撮影
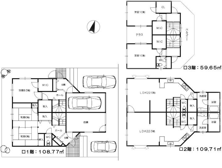
Floor plan間取り図  31,800,000 yen, 5LLDDKK, Land area 214.31 sq m , Building area 278.13 sq m
3180万円、5LLDDKK、土地面積214.31m2、建物面積278.13m2
Local appearance photo現地外観写真  Local (12 May 2013) Shooting
現地(2013年12月)撮影
Kitchenキッチン  Indoor (12 May 2013) Shooting
室内(2013年12月)撮影
Livingリビング  Indoor (12 May 2013) Shooting
室内(2013年12月)撮影
Bathroom浴室  Indoor (12 May 2013) Shooting
室内(2013年12月)撮影
Non-living roomリビング以外の居室  Indoor (12 May 2013) Shooting
室内(2013年12月)撮影
Wash basin, toilet洗面台・洗面所  Indoor (12 May 2013) Shooting
室内(2013年12月)撮影
Receipt収納  Indoor (12 May 2013) Shooting
室内(2013年12月)撮影
Toiletトイレ  Indoor (12 May 2013) Shooting
室内(2013年12月)撮影
Station駅  Nose Electric Railway Myokensen to "Kofudai" 470m
能勢電鉄妙見線『光風台』まで470m
Livingリビング  Indoor (12 May 2013) Shooting
室内(2013年12月)撮影
Bathroom浴室  Indoor (12 May 2013) Shooting
室内(2013年12月)撮影
Non-living roomリビング以外の居室  Indoor (12 May 2013) Shooting
室内(2013年12月)撮影
Receipt収納  Indoor (12 May 2013) Shooting
室内(2013年12月)撮影
Toiletトイレ  Indoor (12 May 2013) Shooting
室内(2013年12月)撮影
Supermarketスーパー  230m until the Daily qanat Izumiya Kofudai shop
デイリーカナートイズミヤ光風台店まで230m
Livingリビング  Indoor (12 May 2013) Shooting
室内(2013年12月)撮影
Non-living roomリビング以外の居室  Indoor (12 May 2013) Shooting
室内(2013年12月)撮影
Kindergarten ・ Nursery幼稚園・保育園  Municipal 1000m until Hikari kindergarten
町立ひかり幼稚園まで1000m
Primary school小学校  Municipal Kofudai 1000m up to elementary school
町立光風台小学校まで1000m
Junior high school中学校  Municipal 1230m until Yoshikawa junior high school
町立吉川中学校まで1230m
Location
|