Used Homes » Kansai » Osaka prefecture » Yao City
 
| | Osaka Prefecture Yao City 大阪府八尾市 |
| Kintetsu Osaka line "Kintetsu Yao" walk 19 minutes 近鉄大阪線「近鉄八尾」歩19分 |
| ◆ 2005 architecture ◆ Room renovated property ◆ Parking two possible ◆ Northeast corner lot ◆ Turnkey ◆平成17年建築 ◆室内改装済み物件◆駐車2台可能◆北東角地◆即入居可能 |
| --------------------------------------------- ○ 2005 architecture ■ Because you actually can see, Please feel free to contact us + o ☆ *. + O ◇ ■ Looking for a used detached in Yao City to House Freedom Yao shop ---- * ---- * ---- * ---- * ---- * ---- * --- ---------------------------------------------○平成17年建築で室内改装済みです○普通車と軽自動車の駐車スペース有り○角地ですので室内大変明るいです○空き家ですのでいつでもご覧になれます----*----*----*----*----*----*----*----*-----■実際にご覧いただけますので、お気軽にお問合せ下さい+o☆*.+o◇■八尾市で中古戸建をお探しの方はハウスフリーダム八尾店へ----*----*----*----*----*----*----*----*----- |
Features pickup 特徴ピックアップ | | Parking two Allowed / Immediate Available / Interior renovation / All room storage / LDK15 tatami mats or more / Corner lot / Shaping land / Three-story or more / City gas 駐車2台可 /即入居可 /内装リフォーム /全居室収納 /LDK15畳以上 /角地 /整形地 /3階建以上 /都市ガス | Price 価格 | | 25,800,000 yen 2580万円 | Floor plan 間取り | | 4LDK 4LDK | Units sold 販売戸数 | | 1 units 1戸 | Land area 土地面積 | | 67.94 sq m (20.55 tsubo) (Registration) 67.94m2(20.55坪)(登記) | Building area 建物面積 | | 101.39 sq m (30.67 tsubo) (Registration) 101.39m2(30.67坪)(登記) | Driveway burden-road 私道負担・道路 | | 23.38 sq m , East 4.4m width, North 4m width 23.38m2、東4.4m幅、北4m幅 | Completion date 完成時期(築年月) | | June 2005 2005年6月 | Address 住所 | | Osaka Prefecture Yao City Aoyamacho 2 大阪府八尾市青山町2 | Traffic 交通 | | Kintetsu Osaka line "Kintetsu Yao" walk 19 minutes 近鉄大阪線「近鉄八尾」歩19分
| Related links 関連リンク | | [Related Sites of this company] 【この会社の関連サイト】 | Person in charge 担当者より | | Person in charge of real-estate and building Kanemoto Shinichi Age: 30 Daigyokai Experience: 7 years customers to be able to meet the various doubts and questions we are always prepared. Feel free to receive your visit, Could you come to me to help look for my home one time? 担当者宅建金元 真一年齢:30代業界経験:7年お客様の様々な疑問やご質問にお応えできるよう常に準備しております。お気軽にご来店いただき、是非一度私にマイホーム探しのお手伝いをさせていただけませんか? | Contact お問い合せ先 | | TEL: 0800-603-2310 [Toll free] mobile phone ・ Also available from PHS Caller ID is not notified Please contact the "saw SUUMO (Sumo)" If it does not lead, If the real estate company TEL:0800-603-2310【通話料無料】携帯電話・PHSからもご利用いただけます 発信者番号は通知されません 「SUUMO(スーモ)を見た」と問い合わせください つながらない方、不動産会社の方は
| Building coverage, floor area ratio 建ぺい率・容積率 | | 60% ・ 200% 60%・200% | Time residents 入居時期 | | Immediate available 即入居可 | Land of the right form 土地の権利形態 | | Ownership 所有権 | Structure and method of construction 構造・工法 | | Wooden three-story 木造3階建 | Renovation リフォーム | | 2013 November interior renovation completed (wall) 2013年11月内装リフォーム済(壁) | Use district 用途地域 | | Two mid-high 2種中高 | Overview and notices その他概要・特記事項 | | Contact: Kanemoto Shinichi, Facilities: Public Water Supply, This sewage, City gas, Parking: car space 担当者:金元 真一、設備:公営水道、本下水、都市ガス、駐車場:カースペース | Company profile 会社概要 | | <Mediation> Minister of Land, Infrastructure and Transport (2) No. 007017 (Ltd.) House Freedom Yao shop Yubinbango581-0019 Osaka Yao City Minamikozakaai cho 1-1-1 <仲介>国土交通大臣(2)第007017号(株)ハウスフリーダム八尾店〒581-0019 大阪府八尾市南小阪合町1-1-1 |
Local appearance photo現地外観写真  Northeast corner lot parking 2 units can be
北東角地駐車2台可能です
 Presence of corner lot unique
角地ならではの存在感
Kitchenキッチン  System kitchen that had made the stove
コンロを新調したシステムキッチン
Livingリビング  Spacious LDK
広々としたLDK
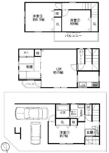
Floor plan間取り図  25,800,000 yen, 4LDK, Land area 67.94 sq m , 4LDK and a large balcony with a building area of 101.39 sq m comfortable is characteristic.
2580万円、4LDK、土地面積67.94m2、建物面積101.39m2 ゆったりとした4LDKと大型バルコニーが特徴的です。
Bathroom浴室  Unit bus of 1 pyeong type in which the white tones
白を基調とした1坪タイプのユニットバス
Non-living roomリビング以外の居室  Japanese-style room to insert the sunlight from the fashionable window
おしゃれな窓から日差しの差し込む和室
Entrance玄関  Storage capacity of fashionable women also rest assured that the one side is a shoe box
1面をシューズボックスとしているのでおしゃれな女性も安心の収納力
Wash basin, toilet洗面台・洗面所  Washstand that firm can get dressed, even a busy morning in the wide three-sided mirror
ワイドな3面鏡で忙しい朝でもしっかり身支度できる洗面台
Shopping centreショッピングセンター  666m to UNIQLO Yao Aoyama
ユニクロ八尾青山店まで666m
Supermarketスーパー  Until Life Yao shop 564m
ライフ八尾店まで564m
Drug storeドラッグストア  Drugstore Raifoto 452m until Yao heights shop
ドラッグストアライフォート八尾高美店まで452m
Junior high school中学校  Yao Municipal Takamichugakko up to 422m
八尾市立高美中学校まで422m
Primary school小学校  569m until Yao Municipal heights Elementary School
八尾市立高美小学校まで569m
Kindergarten ・ Nursery幼稚園・保育園  421m until Yao Municipal heights kindergarten
八尾市立高美幼稚園まで421m
Hospital病院  Medical Law virtue Zhuzhou Board Yao Tokushukai 567m to General Hospital
医療法人徳洲会八尾徳洲会総合病院まで567m
Post office郵便局  Yao heights 460m to the post office
八尾高美郵便局まで460m
Government office役所  1178m to Yao City Hall
八尾市役所まで1178m
Presentプレゼント ![Present. It can also be used in a family restaurant and convenience stores [Kuokado] Present! "Because precious vacation I want to go out to look for My Home, Not be able to convince the children that want to go to play, , , "Resolve those concerns! After the fun is waiting even after the tour of the boring home for the children ・ ・ ・ surely, You should be able to endure a little! ※ On the reservation by phone or e-mail, Attached to your family that had you coming to the store (1 family), We will consider it as 2000 yen.](/images/osaka/yao/8bdc6e0150.jpg) It can also be used in a family restaurant and convenience stores [Kuokado] Present! "Because precious vacation I want to go out to look for My Home, Not be able to convince the children that want to go to play, , , "Resolve those concerns! After the fun is waiting even after the tour of the boring home for the children ・ ・ ・ surely, You should be able to endure a little! ※ On the reservation by phone or e-mail, Attached to your family that had you coming to the store (1 family), We will consider it as 2000 yen.
ファミレスやコンビニでも使える【クオカード】プレゼント!「せっかくの休みだからマイホーム探しに出かけたいけど、遊びに行きたいお子様を説得できない、、、」そんな悩みを解決!お子様にとっては退屈な家の見学もそのあとに楽しみが待っているとしたら・・・きっと、少しはこらえてくれるはずです!※お電話またはメールにてご予約の上、ご来店いただきましたご家族(1家族)に付、2000円分とさせていただきます。
Location
|