|
|
Osaka-shi, Osaka Yodogawa
大阪府大阪市淀川区
|
|
Hankyu Kobe Line "thirteen" walk 10 minutes
阪急神戸線「十三」歩10分
|
|
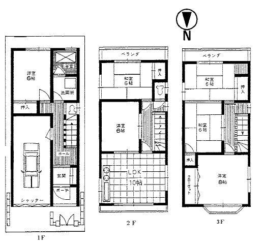
Not meet you quite 6LDK! Heisei building single-family Jusomotoimazato! Please contact us once!
なかなかお目にかかれない6LDK! 十三元今里の平成建築一戸建てです! 是非一度ご連絡ください!
|
|
Is close shaping land 2 wayside more accessible three-story or more south-facing Japanese-style whole room 6 tatami mats or more system Kitchen south balcony super
整形地2沿線以上利用可3階建以上南向き和室全居室6畳以上システムキッチン南面バルコニースーパーが近い
|
Features pickup 特徴ピックアップ | | 2 along the line more accessible / Super close / Facing south / System kitchen / Japanese-style room / Shaping land / South balcony / All room 6 tatami mats or more / Three-story or more 2沿線以上利用可 /スーパーが近い /南向き /システムキッチン /和室 /整形地 /南面バルコニー /全居室6畳以上 /3階建以上 |
Price 価格 | | 19,800,000 yen 1980万円 |
Floor plan 間取り | | 6LDK 6LDK |
Units sold 販売戸数 | | 1 units 1戸 |
Total units 総戸数 | | 1 units 1戸 |
Land area 土地面積 | | 72.06 sq m (registration) 72.06m2(登記) |
Building area 建物面積 | | 133.8 sq m (registration) 133.8m2(登記) |
Driveway burden-road 私道負担・道路 | | Nothing, North 4m width 無、北4m幅 |
Completion date 完成時期(築年月) | | May 1993 1993年5月 |
Address 住所 | | Osaka-shi, Osaka Yodogawa Jusomotoimazato 2 大阪府大阪市淀川区十三元今里2 |
Traffic 交通 | | Hankyu Kobe Line "thirteen" walk 10 minutes JR Tokaido Line "Tsukamoto" walk 19 minutes 阪急神戸線「十三」歩10分 JR東海道本線「塚本」歩19分
|
Related links 関連リンク | | [Related Sites of this company] 【この会社の関連サイト】 |
Person in charge 担当者より | | Rep Sasai 担当者笹井 |
Contact お問い合せ先 | | TEL: 0800-603-1707 [Toll free] mobile phone ・ Also available from PHS Caller ID is not notified Please contact the "saw SUUMO (Sumo)" If it does not lead, If the real estate company TEL:0800-603-1707【通話料無料】携帯電話・PHSからもご利用いただけます 発信者番号は通知されません 「SUUMO(スーモ)を見た」と問い合わせください つながらない方、不動産会社の方は
|
Building coverage, floor area ratio 建ぺい率・容積率 | | 80% ・ 200% 80%・200% |
Time residents 入居時期 | | Consultation 相談 |
Land of the right form 土地の権利形態 | | Ownership 所有権 |
Structure and method of construction 構造・工法 | | Wooden three-story 木造3階建 |
Use district 用途地域 | | One dwelling 1種住居 |
Overview and notices その他概要・特記事項 | | Contact: Sasai, Facilities: Public Water Supply, This sewage, Parking: Garage 担当者:笹井、設備:公営水道、本下水、駐車場:車庫 |
Company profile 会社概要 | | <Mediation> Osaka governor (8) Kitakyu housing (Ltd.) Yubinbango532-0003 Osaka Yodogawa-ku, Osaka No. 027626 Miyahara 5-6-3 <仲介>大阪府知事(8)第027626号北急ハウジング(株)〒532-0003 大阪府大阪市淀川区宮原5-6-3 |