Used Homes » Kansai » Shiga Prefecture » Higashiomi
 
| | Shiga Prefecture Higashiomi 滋賀県東近江市 |
| JR Tokaido Line "Notogawa" walk 25 minutes JR東海道本線「能登川」歩25分 |
Features pickup 特徴ピックアップ | | Parking three or more possible / Yang per good / A quiet residential area / 2-story / Underfloor Storage / TV monitor interphone 駐車3台以上可 /陽当り良好 /閑静な住宅地 /2階建 /床下収納 /TVモニタ付インターホン | Price 価格 | | 14,980,000 yen 1498万円 | Floor plan 間取り | | 4LDK 4LDK | Units sold 販売戸数 | | 1 units 1戸 | Land area 土地面積 | | 188.17 sq m (registration) 188.17m2(登記) | Building area 建物面積 | | 106.03 sq m (registration) 106.03m2(登記) | Driveway burden-road 私道負担・道路 | | Nothing, Southeast 6m width 無、南東6m幅 | Completion date 完成時期(築年月) | | October 2013 2013年10月 | Address 住所 | | Shiga Prefecture Higashiomi Gokasho Shichiri cho 滋賀県東近江市五個荘七里町 | Traffic 交通 | | JR Tokaido Line "Notogawa" walk 25 minutes JR東海道本線「能登川」歩25分
| Person in charge 担当者より | | Rep Watanabe Toshiyuki Age: 40 Daigyokai Experience: 9 years uneasy please consult anything points 担当者渡邊 利幸年齢:40代業界経験:9年不安な点は何でもご相談ください | Contact お問い合せ先 | | TEL: 0800-809-8781 [Toll free] mobile phone ・ Also available from PHS Caller ID is not notified Please contact the "saw SUUMO (Sumo)" If it does not lead, If the real estate company TEL:0800-809-8781【通話料無料】携帯電話・PHSからもご利用いただけます 発信者番号は通知されません 「SUUMO(スーモ)を見た」と問い合わせください つながらない方、不動産会社の方は
| Building coverage, floor area ratio 建ぺい率・容積率 | | 60% ・ Hundred percent 60%・100% | Time residents 入居時期 | | Immediate available 即入居可 | Land of the right form 土地の権利形態 | | Ownership 所有権 | Structure and method of construction 構造・工法 | | Wooden 2-story 木造2階建 | Renovation リフォーム | | October 2013 interior renovation completed (kitchen ・ bathroom) 2013年10月内装リフォーム済(キッチン・浴室) | Use district 用途地域 | | One low-rise 1種低層 | Overview and notices その他概要・特記事項 | | Contact: Watanabe Toshiyuki, Facilities: Public Water Supply, This sewage, Centralized LPG, Parking: car space 担当者:渡邊 利幸、設備:公営水道、本下水、集中LPG、駐車場:カースペース | Company profile 会社概要 | | <Seller> Minister of Land, Infrastructure and Transport (4) No. 005475 (Ltd.) Kachitasu Shiga shop Yubinbango522-0023 Shiga Prefecture Hikone Haramachi 180-57 <売主>国土交通大臣(4)第005475号(株)カチタス滋賀店〒522-0023 滋賀県彦根市原町180-57 |
Local appearance photo現地外観写真  Local (10 May 2013) Shooting
現地(2013年10月)撮影
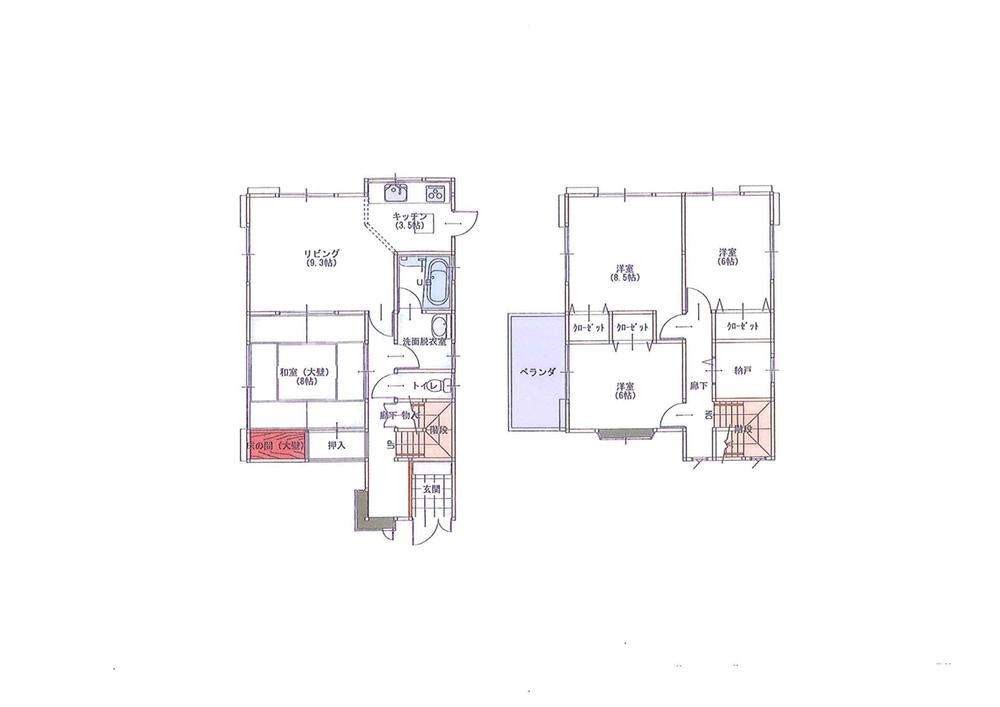
Floor plan間取り図  14,980,000 yen, 4LDK, Land area 188.17 sq m , Building area 106.03 sq m
1498万円、4LDK、土地面積188.17m2、建物面積106.03m2
 Other
その他
Local appearance photo現地外観写真  Local (10 May 2013) Shooting
現地(2013年10月)撮影
Livingリビング  Indoor (10 May 2013) Shooting
室内(2013年10月)撮影
Bathroom浴室  Indoor (10 May 2013) Shooting
室内(2013年10月)撮影
Kitchenキッチン  Indoor (September 2013) Shooting
室内(2013年9月)撮影
Entrance玄関  Local (10 May 2013) Shooting
現地(2013年10月)撮影
Wash basin, toilet洗面台・洗面所  Indoor (10 May 2013) Shooting
室内(2013年10月)撮影
Receipt収納  Local (10 May 2013) Shooting
現地(2013年10月)撮影
 Other
その他
Entrance玄関  Local (10 May 2013) Shooting
現地(2013年10月)撮影
 Other
その他
 Local (10 May 2013) Shooting
現地(2013年10月)撮影
 Other
その他
 Other
その他
 Other
その他
 Other
その他
 Other
その他
 Other
その他
Location
|