Used Homes » Kansai » Shiga Prefecture » Konan
 
| | Shiga Prefecture, Hunan City 滋賀県湖南市 |
| Shiga traffic ・ 6 minutes petting No. bus "village green" Ayumu 滋賀交通・ふれあい号バス「みどりのむら」歩6分 |
| Land 85 square meters! Good day! marble! Floor heating! Imported houses! 土地85坪!日当たり良い!大理石!床暖!輸入住宅! |
| Euro scan home of (imported housing) house ユーロスホーム(輸入住宅)の家 |
Features pickup 特徴ピックアップ | | Parking two Allowed / Land 50 square meters or more / System kitchen / All room storage / LDK15 tatami mats or more / Japanese-style room / 2-story / All room 6 tatami mats or more / Storeroom / Floor heating 駐車2台可 /土地50坪以上 /システムキッチン /全居室収納 /LDK15畳以上 /和室 /2階建 /全居室6畳以上 /納戸 /床暖房 | Price 価格 | | 15.8 million yen 1580万円 | Floor plan 間取り | | 4LDK + 2S (storeroom) 4LDK+2S(納戸) | Units sold 販売戸数 | | 1 units 1戸 | Total units 総戸数 | | 1 units 1戸 | Land area 土地面積 | | 281.48 sq m (85.14 square meters) 281.48m2(85.14坪) | Building area 建物面積 | | 141.25 sq m (42.72 square meters) 141.25m2(42.72坪) | Driveway burden-road 私道負担・道路 | | Nothing, North 5m width (contact the road width 3.6m) 無、北5m幅(接道幅3.6m) | Completion date 完成時期(築年月) | | July 1999 1999年7月 | Address 住所 | | Shiga Prefecture, Hunan City family temple 滋賀県湖南市菩提寺 | Traffic 交通 | | Shiga traffic ・ 6 minutes petting No. bus "village green" Ayumu 滋賀交通・ふれあい号バス「みどりのむら」歩6分 | Related links 関連リンク | | [Related Sites of this company] 【この会社の関連サイト】 | Person in charge 担当者より | | [Regarding this property.] Loft with imports residential land spacious. It is clearly saying Recommended! 【この物件について】土地広々でロフト付な輸入住宅。はっきり言っておすすめです! | Contact お問い合せ先 | | (Ltd.) House Create TEL: 0800-808-7219 [Toll free] mobile phone ・ Also available from PHS Caller ID is not notified Please contact the "saw SUUMO (Sumo)" If it does not lead, If the real estate company (株)ハウスクリエイトTEL:0800-808-7219【通話料無料】携帯電話・PHSからもご利用いただけます 発信者番号は通知されません 「SUUMO(スーモ)を見た」と問い合わせください つながらない方、不動産会社の方は
| Building coverage, floor area ratio 建ぺい率・容積率 | | 60% ・ Hundred percent 60%・100% | Land of the right form 土地の権利形態 | | Ownership 所有権 | Structure and method of construction 構造・工法 | | Wooden 2-story 木造2階建 | Use district 用途地域 | | One low-rise 1種低層 | Overview and notices その他概要・特記事項 | | Facilities: individual LPG, Parking: car space 設備:個別LPG、駐車場:カースペース | Company profile 会社概要 | | <Mediation> Governor of Shiga Prefecture (1) No. 003255 (Ltd.) House Create Yubinbango520-2143 Otsu, Shiga Prefecture Kayanoura 24-11 <仲介>滋賀県知事(1)第003255号(株)ハウスクリエイト〒520-2143 滋賀県大津市萱野浦24-11 |
Livingリビング  how is it? ! It is amazing. Indoor (January 2012) shooting
どうですか?シャンデリアに大理石!すごいですね。室内(2012年1月)撮影
Local appearance photo現地外観写真  Probably stylish entrance? Local (01 May 2012) shooting
オシャレな玄関でしょ? 現地(2012年01月)撮影
Entrance玄関  It is like a scene from a movie. Local (January 2012) shooting
まるで映画のワンシーンのようです。 現地(2012年1月)撮影
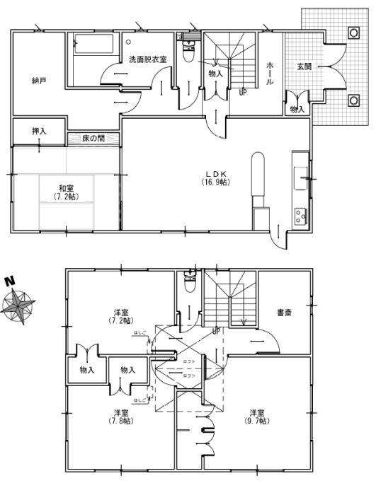
Floor plan間取り図  15.8 million yen, 4LDK + 2S (storeroom), Land area 281.48 sq m , Building area 141.25 sq m floor heating (LDK, hallway, bathroom, bathroom)
1580万円、4LDK+2S(納戸)、土地面積281.48m2、建物面積141.25m2 床暖房(LDK,廊下、洗面室、浴室)
Local appearance photo現地外観写真  Day is good! Local (01 May 2012) shooting
日当たり良好です! 現地(2012年01月)撮影
Livingリビング  It is living from the Japanese-style room. Sunshine is pleasant.
和室からのリビングです。日差しが気持ち良いです。
Bathroom浴室  Please heal the fatigue of the day in this bath!
このお風呂で一日の疲れを癒してください!
Kitchenキッチン  Wife! Dishes how in such a cute kitchen?
奥さん!こんな可愛いキッチンでお料理いかが?
Non-living roomリビング以外の居室  2F Western-style, It is cool shade of the closet!
2F洋室、クローゼットの色合い渋いです!
Wash basin, toilet洗面台・洗面所  Large, easy-to-use mirror.
大きくて使いやすい鏡。
Receipt収納  From the storage of emerald green, Luxury is overflowing!
エメラルドグリーンの収納からは、高級感が溢れます!
Toiletトイレ  It There is also sticking to small.
小物にもこだわりがありますね。
Other introspectionその他内観  Corridor.
廊下です。
Local appearance photo現地外観写真  It becomes a solid-built.
しっかりとした造りになっております。
Non-living roomリビング以外の居室  Indoor (January 2012) shooting
室内(2012年1月)撮影
Other introspectionその他内観  Ladder to the "loft"
「ロフト」へのハシゴ
Non-living roomリビング以外の居室  Sunny! wide!
日当たり良好!広い!
Location
|