1983October
6.8 million yen, 4DK, 83.9 sq m
Used Homes » Kansai » Shiga Prefecture » Konan
 
| | Shiga Prefecture, Hunan City 滋賀県湖南市 |
| JR Kusatsu Line "Ishibe" bus 7 minutes Ishibe south exit walk 4 minutes JR草津線「石部」バス7分石部南口歩4分 |
Features pickup 特徴ピックアップ | | A quiet residential area / Or more before road 6m / Shaping land 閑静な住宅地 /前道6m以上 /整形地 | Price 価格 | | 6.8 million yen 680万円 | Floor plan 間取り | | 4DK 4DK | Units sold 販売戸数 | | 1 units 1戸 | Land area 土地面積 | | 159.45 sq m (registration) 159.45m2(登記) | Building area 建物面積 | | 83.9 sq m (registration) 83.9m2(登記) | Driveway burden-road 私道負担・道路 | | Nothing, West 6m width 無、西6m幅 | Completion date 完成時期(築年月) | | October 1983 1983年10月 | Address 住所 | | Shiga Prefecture, Hunan City Ishibe south 8 滋賀県湖南市石部南8 | Traffic 交通 | | JR Kusatsu Line "Ishibe" bus 7 minutes Ishibe south exit walk 4 minutes JR草津線「石部」バス7分石部南口歩4分
| Contact お問い合せ先 | | Claire ・ Home (Ltd.) TEL: 077-554-8111 Please inquire as "saw SUUMO (Sumo)" クレア・ホーム(株)TEL:077-554-8111「SUUMO(スーモ)を見た」と問い合わせください | Building coverage, floor area ratio 建ぺい率・容積率 | | Fifty percent ・ 80% 50%・80% | Time residents 入居時期 | | Immediate available 即入居可 | Land of the right form 土地の権利形態 | | Ownership 所有権 | Structure and method of construction 構造・工法 | | Wooden 2-story (framing method) 木造2階建(軸組工法) | Use district 用途地域 | | One low-rise 1種低層 | Overview and notices その他概要・特記事項 | | Facilities: Public Water Supply, This sewage, Individual LPG, Parking: car space 設備:公営水道、本下水、個別LPG、駐車場:カースペース | Company profile 会社概要 | | <Mediation> Governor of Shiga Prefecture (1) No. 003403 Claire ・ Home Co., Ltd. Yubinbango520-3015 Shiga Prefecture Ritto An'yoji 1-1-11 San word building second floor <仲介>滋賀県知事(1)第003403号クレア・ホーム(株)〒520-3015 滋賀県栗東市安養寺1-1-11 サンワードビル2階 |
 Local appearance photo
現地外観写真
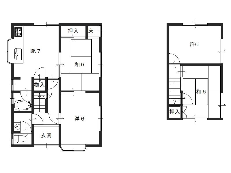
Floor plan間取り図  6.8 million yen, 4DK, Land area 159.45 sq m , Building area 83.9 sq m
680万円、4DK、土地面積159.45m2、建物面積83.9m2
Location
|