1996September
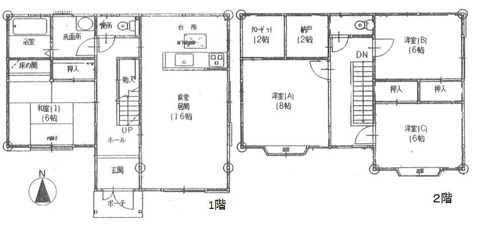
25,800,000 yen, 4LDK + S (storeroom), 112.61 sq m
Used Homes » Kansai » Shiga Prefecture » Otsu
 
| | Otsu, Shiga Prefecture 滋賀県大津市 |
| JR Kosei Line "Ogoto Onsen" bus 3 minutes modeling Ayumi Omae 1 minute JR湖西線「おごと温泉」バス3分造形大前歩1分 |
| 3 places hot water supply. There is air conditioning in each room 3ヶ所給湯。 各室にエアコンがあります |
| ■ Convenience of a 1-minute walk from the bus stop ◎ ■ Land 69 or more square meters ■ Parking 2 units can be ■バス停から徒歩1分の利便性◎■土地69坪以上■駐車2台可能です |
Features pickup 特徴ピックアップ | | Year Available / Parking two Allowed / Land 50 square meters or more / Facing south / Yang per good / All room storage / Siemens south road / A quiet residential area / LDK15 tatami mats or more / Or more before road 6m / Japanese-style room / Face-to-face kitchen / 3 face lighting / 2-story / Underfloor Storage / The window in the bathroom / Walk-in closet / All room 6 tatami mats or more / Storeroom / Located on a hill / Flat terrain 年内入居可 /駐車2台可 /土地50坪以上 /南向き /陽当り良好 /全居室収納 /南側道路面す /閑静な住宅地 /LDK15畳以上 /前道6m以上 /和室 /対面式キッチン /3面採光 /2階建 /床下収納 /浴室に窓 /ウォークインクロゼット /全居室6畳以上 /納戸 /高台に立地 /平坦地 | Price 価格 | | 25,800,000 yen 2580万円 | Floor plan 間取り | | 4LDK + S (storeroom) 4LDK+S(納戸) | Units sold 販売戸数 | | 1 units 1戸 | Total units 総戸数 | | 1 units 1戸 | Land area 土地面積 | | 229.4 sq m (69.39 square meters) 229.4m2(69.39坪) | Building area 建物面積 | | 112.61 sq m (34.06 square meters) 112.61m2(34.06坪) | Driveway burden-road 私道負担・道路 | | Nothing, South 9m width (contact the road width 12.4m) 無、南9m幅(接道幅12.4m) | Completion date 完成時期(築年月) | | September 1996 1996年9月 | Address 住所 | | Otsu, Shiga Prefecture Oginosatohigashi 7-3-13 滋賀県大津市仰木の里東7-3-13 | Traffic 交通 | | JR Kosei Line "Ogoto Onsen" bus 3 minutes modeling Ayumi Omae 1 minute JR湖西線「おごと温泉」バス3分造形大前歩1分
| Contact お問い合せ先 | | KinoeTomosha TEL: 078-332-1566 Please inquire as "saw SUUMO (Sumo)" 甲友社TEL:078-332-1566「SUUMO(スーモ)を見た」と問い合わせください | Building coverage, floor area ratio 建ぺい率・容積率 | | 40% ・ 60% 40%・60% | Time residents 入居時期 | | Consultation 相談 | Land of the right form 土地の権利形態 | | Ownership 所有権 | Structure and method of construction 構造・工法 | | Wooden 2-story 木造2階建 | Use district 用途地域 | | One low-rise 1種低層 | Overview and notices その他概要・特記事項 | | Facilities: Public Water Supply, This sewage, Parking: car space 設備:公営水道、本下水、駐車場:カースペース | Company profile 会社概要 | | <Mediation> Governor of Hyogo Prefecture (11) Article 007151 Gokabuto Tomo Yubinbango650-0011, Chuo-ku Kobe, Hyogo Prefecture Shimoyamatedori 4-1-17 <仲介>兵庫県知事(11)第007151号甲友社〒650-0011 兵庫県神戸市中央区下山手通4-1-17 |
 Local appearance photo
現地外観写真
Floor plan間取り図  25,800,000 yen, 4LDK + S (storeroom), Land area 229.4 sq m , Building area 112.61 sq m
2580万円、4LDK+S(納戸)、土地面積229.4m2、建物面積112.61m2
 Non-living room
リビング以外の居室
 Local appearance photo
現地外観写真
 Bathroom
浴室
 Non-living room
リビング以外の居室
 Wash basin, toilet
洗面台・洗面所
 Local appearance photo
現地外観写真
Location
|