Used Homes » Kansai » Shiga Prefecture » Otsu
 
| | Otsu, Shiga Prefecture 滋賀県大津市 |
| JR Kosei Line "Kyoto Otsu" a 15-minute bus Hieidaira Sanchome AzumaAyumi 3 minutes JR湖西線「大津京」バス15分比叡平三丁目東歩3分 |
| Natural wood ・ This design house using imported materials. Located in Lake Biwa and Kyoto in the middle, It is a good place of the natural environment. Is one House of attention, For more information, please contact! 天然木・輸入材を使用したデザイナーズハウスです。びわ湖と京都の中間に位置し、自然環境の良い場所です。こだわりの一邸です、詳しくはお問い合わせください! |
| Hieidaira Small ・ Ojiyama in 比叡平小・皇子山中 |
Features pickup 特徴ピックアップ | | Parking three or more possible / LDK20 tatami mats or more / Land 50 square meters or more / Summer resort / System kitchen / Yang per good / A quiet residential area / Around traffic fewer / Or more before road 6m / Japanese-style room / Shaping land / Garden more than 10 square meters / garden / Bathroom 1 tsubo or more / Nantei / The window in the bathroom / Atrium / Leafy residential area / Urban neighborhood / Mu front building / Wood deck / All room 6 tatami mats or more / Living stairs / Storeroom / Located on a hill / A large gap between the neighboring house / In a large town / Flat terrain / Development subdivision in / Readjustment land within 駐車3台以上可 /LDK20畳以上 /土地50坪以上 /避暑地 /システムキッチン /陽当り良好 /閑静な住宅地 /周辺交通量少なめ /前道6m以上 /和室 /整形地 /庭10坪以上 /庭 /浴室1坪以上 /南庭 /浴室に窓 /吹抜け /緑豊かな住宅地 /都市近郊 /前面棟無 /ウッドデッキ /全居室6畳以上 /リビング階段 /納戸 /高台に立地 /隣家との間隔が大きい /大型タウン内 /平坦地 /開発分譲地内 /区画整理地内 | Price 価格 | | 26,800,000 yen 2680万円 | Floor plan 間取り | | 4LDK 4LDK | Units sold 販売戸数 | | 1 units 1戸 | Land area 土地面積 | | 330 sq m (registration) 330m2(登記) | Building area 建物面積 | | 103.25 sq m 103.25m2 | Driveway burden-road 私道負担・道路 | | Nothing, Northwest 6m width 無、北西6m幅 | Completion date 完成時期(築年月) | | June 2008 2008年6月 | Address 住所 | | Otsu, Shiga Prefecture Hieidaira 2 滋賀県大津市比叡平2 | Traffic 交通 | | JR Kosei Line "Kyoto Otsu" a 15-minute bus Hieidaira Sanchome AzumaAyumi 3 minutes JR湖西線「大津京」バス15分比叡平三丁目東歩3分
| Related links 関連リンク | | [Related Sites of this company] 【この会社の関連サイト】 | Contact お問い合せ先 | | Century 21 House net Kansai Co., Ltd. Shimogamo shop TEL: 0800-603-3046 [Toll free] mobile phone ・ Also available from PHS Caller ID is not notified Please contact the "saw SUUMO (Sumo)" If it does not lead, If the real estate company センチュリー21ハウスネット関西(株)下鴨店TEL:0800-603-3046【通話料無料】携帯電話・PHSからもご利用いただけます 発信者番号は通知されません 「SUUMO(スーモ)を見た」と問い合わせください つながらない方、不動産会社の方は
| Building coverage, floor area ratio 建ぺい率・容積率 | | 40% ・ 200% 40%・200% | Time residents 入居時期 | | Consultation 相談 | Land of the right form 土地の権利形態 | | Ownership 所有権 | Structure and method of construction 構造・工法 | | Wooden 1 story 木造1階建 | Use district 用途地域 | | One dwelling 1種住居 | Other limitations その他制限事項 | | It is about 15 minutes by car to qanat Rakukita. About a 10-minute walk to the convenience store Circle K. カナート洛北まで車で約15分程度です。コンビニサークルKへ徒歩約10分。 | Overview and notices その他概要・特記事項 | | Facilities: Public Water Supply, This sewage, Parking: car space 設備:公営水道、本下水、駐車場:カースペース | Company profile 会社概要 | | <Mediation> Governor of Kyoto Prefecture (2) the first 011,266 No. Century 21 House net Kansai Co., Ltd. Shimogamo shop Yubinbango606-0826 Kyoto, Sakyo-ku, Kyoto Shimogamonishimoto-cho, 27 <仲介>京都府知事(2)第011266号センチュリー21ハウスネット関西(株)下鴨店〒606-0826 京都府京都市左京区下鴨西本町27 |
 Local appearance photo
現地外観写真
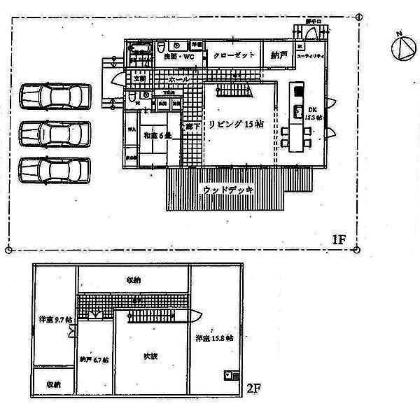
Floor plan間取り図  26,800,000 yen, 4LDK, Land area 330 sq m , Building area 103.25 sq m
2680万円、4LDK、土地面積330m2、建物面積103.25m2
 Living
リビング
 Kitchen
キッチン
 Non-living room
リビング以外の居室
 Wash basin, toilet
洗面台・洗面所
 Other
その他
 Other
その他
 Other
その他
 Other
その他
 Other
その他
 Other
その他
 Other
その他
 Other
その他
 Other
その他
 Other
その他
 Other
その他
 Other
その他
 Other
その他
Local appearance photo現地外観写真  It is a very quiet residential area. Stars It looks beautiful, Air is also delicious.
とても閑静な住宅街です。星が綺麗に見えますし、空気もおいしいです。
Location
|