1976May
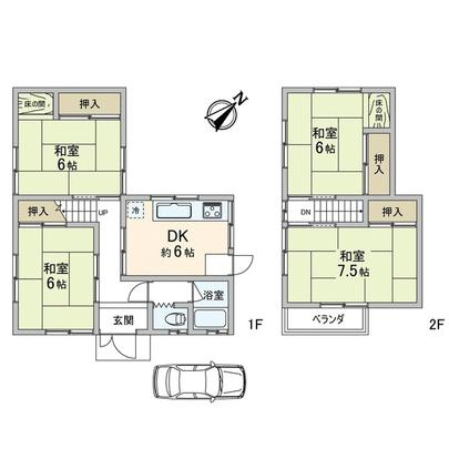
6.2 million yen, 4DK, 76.18 sq m
Used Homes » Kansai » Shiga Prefecture » Otsu
 
| | Otsu, Shiga Prefecture 滋賀県大津市 |
| Keihan Ishiyama Sakamoto Line "Matsuno Baba" walk 6 minutes 京阪石山坂本線「松ノ馬場」歩6分 |
Price 価格 | | 6.2 million yen 620万円 | Floor plan 間取り | | 4DK 4DK | Units sold 販売戸数 | | 1 units 1戸 | Land area 土地面積 | | 104.76 sq m (registration) 104.76m2(登記) | Building area 建物面積 | | 76.18 sq m (registration) 76.18m2(登記) | Driveway burden-road 私道負担・道路 | | Nothing, East 4m width (contact the road width 9.5m) 無、東4m幅(接道幅9.5m) | Completion date 完成時期(築年月) | | May 1976 1976年5月 | Address 住所 | | Otsu, Shiga Prefecture Sakamoto 1 滋賀県大津市坂本1 | Traffic 交通 | | Keihan Ishiyama Sakamoto Line "Matsuno Baba" walk 6 minutes 京阪石山坂本線「松ノ馬場」歩6分
| Person in charge 担当者より | | The person in charge Taizo Kawada 担当者川田泰三 | Contact お問い合せ先 | | Mitsui Rehouse Otsu shop Mitsui Fudosan Realty (Ltd.) TEL: 0120-153731 [Toll free] Please contact the "saw SUUMO (Sumo)" 三井のリハウス大津店三井不動産リアルティ(株)TEL:0120-153731【通話料無料】「SUUMO(スーモ)を見た」と問い合わせください | Building coverage, floor area ratio 建ぺい率・容積率 | | Fifty percent ・ 80% 50%・80% | Time residents 入居時期 | | Immediate available 即入居可 | Land of the right form 土地の権利形態 | | Ownership 所有権 | Structure and method of construction 構造・工法 | | Wooden 2-story 木造2階建 | Use district 用途地域 | | One low-rise 1種低層 | Overview and notices その他概要・特記事項 | | Contact: Taizo Kawada, Parking: car space 担当者:川田泰三、駐車場:カースペース | Company profile 会社概要 | | <Mediation> Minister of Land, Infrastructure and Transport (13) No. 000777 (one company) Property distribution management Association (Corporation) metropolitan area real estate Fair Trade Council member Mitsui Rehouse Otsu shop Mitsui Fudosan Realty Co. Yubinbango520-0802 Otsu, Shiga Prefecture Baba 1-7-12 TOKIMEKI building the third floor <仲介>国土交通大臣(13)第000777号(一社)不動産流通経営協会会員 (公社)首都圏不動産公正取引協議会加盟三井のリハウス大津店三井不動産リアルティ(株)〒520-0802 滋賀県大津市馬場1-7-12 TOKIMEKIビル3階 |
 Local appearance photo
現地外観写真
 Floor plan
間取り図
Location
|