Used Homes » Kansai » Shiga Prefecture » Otsu
 
| | Otsu, Shiga Prefecture 滋賀県大津市 |
| JR Kosei Line "Ono" walk 30 minutes JR湖西線「小野」歩30分 |
| In a quiet residential area, You can enjoy the garden is widely gardening Currently under renovation Since about 30 minutes by car to the end of January it will be completed Biwako Valley, Perfect for winter sports! ! 閑静な住宅街で、庭が広くガーデニングを楽しめます 現在リフォーム中 1月末完了予定びわ湖バレイまで車で30分ほどなので、ウインタースポーツにはもってこい!! |
| Of course it is to renew the water around in the contents of the reform, I would like to stick to appearance. As everyone will want to enter, It will go easy way and the current renovation. I'd love to, Please come to play in the local. waiting! ! リフォームの内容は中の水廻りを一新するのはもちろんのこと、外観にこだわりたいと思います。 誰もが入りたくなるように、入りやすいようにと現在リフォーム中となります。 是非、現地に遊びに来てください。 待っています!! |
Features pickup 特徴ピックアップ | | Year Available / Parking two Allowed / Land 50 square meters or more / It is close to ski resorts / Super close / Interior and exterior renovation / System kitchen / A quiet residential area / LDK15 tatami mats or more / Around traffic fewer / Or more before road 6m / Japanese-style room / Washbasin with shower / 2-story / South balcony / Double-glazing / Nantei / Underfloor Storage / The window in the bathroom / TV monitor interphone / All room 6 tatami mats or more / City gas 年内入居可 /駐車2台可 /土地50坪以上 /スキー場が近い /スーパーが近い /内外装リフォーム /システムキッチン /閑静な住宅地 /LDK15畳以上 /周辺交通量少なめ /前道6m以上 /和室 /シャワー付洗面台 /2階建 /南面バルコニー /複層ガラス /南庭 /床下収納 /浴室に窓 /TVモニタ付インターホン /全居室6畳以上 /都市ガス | Price 価格 | | 19.2 million yen 1920万円 | Floor plan 間取り | | 4LDK 4LDK | Units sold 販売戸数 | | 1 units 1戸 | Land area 土地面積 | | 186.11 sq m (registration) 186.11m2(登記) | Building area 建物面積 | | 109.66 sq m (registration) 109.66m2(登記) | Driveway burden-road 私道負担・道路 | | Nothing, North 6.3m width 無、北6.3m幅 | Completion date 完成時期(築年月) | | February 1986 1986年2月 | Address 住所 | | Otsu, Shiga Prefecture Yang Ming-cho 滋賀県大津市陽明町 | Traffic 交通 | | JR Kosei Line "Ono" walk 30 minutes JR湖西線「小野」歩30分
| Related links 関連リンク | | [Related Sites of this company] 【この会社の関連サイト】 | Person in charge 担当者より | | Rep Kishida Keisuke Age: will be happy to provide good property by the 20's everyone. Thank you very much. 担当者岸田 圭祐年齢:20代皆様により良い物件を提供させていただきます。どうぞ宜しくお願い致します。 | Contact お問い合せ先 | | TEL: 0800-809-8782 [Toll free] mobile phone ・ Also available from PHS Caller ID is not notified Please contact the "saw SUUMO (Sumo)" If it does not lead, If the real estate company TEL:0800-809-8782【通話料無料】携帯電話・PHSからもご利用いただけます 発信者番号は通知されません 「SUUMO(スーモ)を見た」と問い合わせください つながらない方、不動産会社の方は
| Building coverage, floor area ratio 建ぺい率・容積率 | | 60% ・ 200% 60%・200% | Time residents 入居時期 | | January 2014 2014年1月 | Land of the right form 土地の権利形態 | | Ownership 所有権 | Structure and method of construction 構造・工法 | | RC2 story RC2階建 | Renovation リフォーム | | January 2014 interior renovation will be completed (kitchen ・ bathroom ・ toilet ・ wall ・ floor ・ all rooms), Exterior renovation scheduled to be completed in January 2014 (outer wall paint Exterior) 2014年1月内装リフォーム完了予定(キッチン・浴室・トイレ・壁・床・全室)、2014年1月外装リフォーム完了予定(外壁塗装 外構) | Use district 用途地域 | | One middle and high 1種中高 | Other limitations その他制限事項 | | Bus stop a 2-minute walk from the "Yang Ming-cho north exit" バス停「陽明町北口」より徒歩2分 | Overview and notices その他概要・特記事項 | | Contact: Kishida Keisuke, Facilities: Public Water Supply, This sewage, City gas, Parking: car space 担当者:岸田 圭祐、設備:公営水道、本下水、都市ガス、駐車場:カースペース | Company profile 会社概要 | | <Seller> Minister of Land, Infrastructure and Transport (4) No. 005475 (Ltd.) Kachitasu Kusatsu shop Yubinbango525-0058 Kusatsu City, Shiga Prefecture Nojihigashi 5-25-23 <売主>国土交通大臣(4)第005475号(株)カチタス草津店〒525-0058 滋賀県草津市野路東5-25-23 |
Local appearance photo現地外観写真  There is room also on the front road, I think the car is also parked easy.
前面道路にも余裕があり、車も駐車し易いかと思います。
 Local appearance photo
現地外観写真
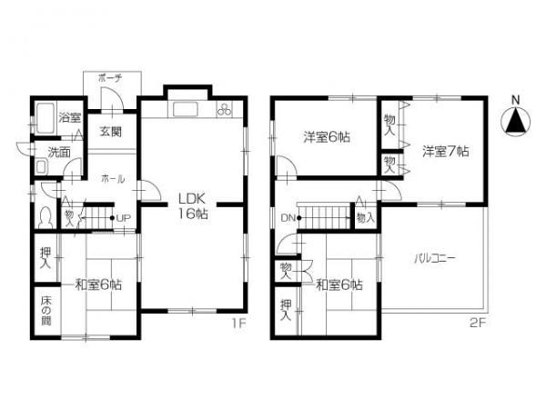
Floor plan間取り図  19.2 million yen, 4LDK, Land area 186.11 sq m , Because there is a building area of 109.66 sq m garden and a large balcony, I think I felt To spacious.
1920万円、4LDK、土地面積186.11m2、建物面積109.66m2 庭や広いバルコニーがあるので、広々と感じられるかと思います。
Local appearance photo現地外観写真  South appearance.
南側外観。
Livingリビング  It becomes a shade of calm in the dark brown flooring.
ダークブラウンのフローリングで落ち着いた色合いになっております。
Bathroom浴室  Since also newly established Bathing, I hope you also can use clean forever.
お風呂も新しく新設しますので、いつまでもきれいに使って頂けたらと思います。
Kitchenキッチン  Since we established a new thing for the kitchen, I think that if you could cook with fresh feeling.
キッチンについては新しいものを新設しますので、新鮮な気持ちで料理をしていただけたらと思います。
Non-living roomリビング以外の居室  Japanese-style alcove also widely, Since it also overlooks the south side of the garden, I think also there is whether to enjoy the gardening. Tatami are all replaced by new.
和室は床の間も広く、南側の庭も一望できますので、ガーデニングを楽しむというのもありかと思います。 畳はすべて新しく替えます。
Entrance玄関  Entrance part is re-covering the cross, Flooring performs YoshiSo, It will clean.
玄関部分はクロスを張替え、フローリングは美装を行い、きれいにします。
Toiletトイレ  New to the toilet of TOTO. Floor also replaced with a warm.
TOTOのトイレに新設。 床も温かみのあるものと交換します。
Garden庭  Although the photo has overgrown grass, And the person in charge is the mowing, Kadan is also the way that the care. I think whether a state, which is also shown to everyone in a little more.
写真では草が生い茂っていますが、担当者が草刈りをして、花壇も手入れをしている途中です。 もう少しで皆様にも見せれる状態になるかと思います。
Parking lot駐車場  Parking spaces are parked two in tandem, Since the back there is also a bollard, You can park in peace.
駐車スペースは縦列で2台停めれて、 後ろには車止めもありますので、安心して駐車できます。
Balconyバルコニー  For the second floor balcony, Do the waterproof paint. Wide because the laundry is also You Jose a lot, It will be out on the balcony from both the second floor of the Japanese and Western.
2階バルコニーについては、防水塗装を行います。 広いので洗濯物もたくさん干せますし、2階の和室と洋室の両方からバルコニーに出れます。
Other introspectionその他内観  I think that whether or not there also be cramped feel about stairs.
階段については窮屈に感じることもないかと思います。
Non-living roomリビング以外の居室  For the second floor Western-style room is, Storage is not but, I think I say that as a space to relax.
2階洋室については、収納はないですが、くつろぐスペースとしてはいいかと思います。
Entrance玄関  From the hall part, Also directly into the Japanese-style room to LDK.
ホール部分からは、LDKにも和室にも直接入れます。
Other introspectionその他内観  Pair glass (multi-layer) has been used for window glass.
窓ガラスについてはペアガラス(複層)が使われています。
Non-living roomリビング以外の居室  The second floor of another Western-style is, It is also closet, The floor is also in place to cushion the floor because it re-covering also cross, I think whether warm even come out.
2階のもう一つの洋室は、クローゼットもありますし、床もクッションフロアに替えてクロスも張り替えますので、温かみも出てくるかと思います。
 Second floor Japanese-style room is I think useful to you there is also a closet storage. Tatami also also re-covered wall so please do not worry.
2階和室は押入収納もありますし便利かと思います。 畳も壁も張り替えますのでご安心ください。
Location
|