Used Homes » Kansai » Shiga Prefecture » Otsu
 
| | Otsu, Shiga Prefecture 滋賀県大津市 |
| JR Kosei Line "Ogoto Onsen" bus 6 minutes Konomi park before walk 2 minutes JR湖西線「おごと温泉」バス6分このみ公園前歩2分 |
| Renovation house (completely renovated), LDK31.5 Pledge, All-electric, Air conditioning three, lighting equipment, Dish washing dryer, Kitchen board, Design bathtub, Bidet, Monitor Hong, other Renovation住宅(全面改装)、LDK31.5帖、オール電化、エアコン3台、照明器具、食器洗乾燥機、キッチンボード、デザイン浴槽、ウォシュレット、モニターホン、他 |
| Parking two Allowed, Immediate Available, LDK20 tatami mats or more, Land 50 square meters or more, Super close, Interior and exterior renovation, System kitchen, Yang per good, A quiet residential area, Around traffic fewer, Or more before road 6m, Shaping land, Garden more than 10 square meters, Home garden, Washbasin with shower, Toilet 2 places, Bathroom 1 tsubo or more, 2-story, South balcony, Warm water washing toilet seat, The window in the bathroom, Atrium, TV monitor interphone, Renovation, Leafy residential area, Urban neighborhood, Ventilation good, IH cooking heater, Dish washing dryer, All-electric, A large gap between the neighboring house, In a large town, Development subdivision in, Readjustment land within 駐車2台可、即入居可、LDK20畳以上、土地50坪以上、スーパーが近い、内外装リフォーム、システムキッチン、陽当り良好、閑静な住宅地、周辺交通量少なめ、前道6m以上、整形地、庭10坪以上、家庭菜園、シャワー付洗面台、トイレ2ヶ所、浴室1坪以上、2階建、南面バルコニー、温水洗浄便座、浴室に窓、吹抜け、TVモニタ付インターホン、リノベーション、緑豊かな住宅地、都市近郊、通風良好、IHクッキングヒーター、食器洗乾燥機、オール電化、隣家との間隔が大きい、大型タウン内、開発分譲地内、区画整理地内 |
Features pickup 特徴ピックアップ | | Parking two Allowed / Immediate Available / LDK20 tatami mats or more / Land 50 square meters or more / Super close / Interior and exterior renovation / System kitchen / Yang per good / A quiet residential area / Around traffic fewer / Or more before road 6m / Shaping land / Garden more than 10 square meters / Home garden / Washbasin with shower / Toilet 2 places / Bathroom 1 tsubo or more / 2-story / South balcony / Warm water washing toilet seat / The window in the bathroom / Atrium / TV monitor interphone / Renovation / Leafy residential area / Urban neighborhood / Ventilation good / IH cooking heater / Dish washing dryer / All-electric / A large gap between the neighboring house / Development subdivision in / Readjustment land within 駐車2台可 /即入居可 /LDK20畳以上 /土地50坪以上 /スーパーが近い /内外装リフォーム /システムキッチン /陽当り良好 /閑静な住宅地 /周辺交通量少なめ /前道6m以上 /整形地 /庭10坪以上 /家庭菜園 /シャワー付洗面台 /トイレ2ヶ所 /浴室1坪以上 /2階建 /南面バルコニー /温水洗浄便座 /浴室に窓 /吹抜け /TVモニタ付インターホン /リノベーション /緑豊かな住宅地 /都市近郊 /通風良好 /IHクッキングヒーター /食器洗乾燥機 /オール電化 /隣家との間隔が大きい /開発分譲地内 /区画整理地内 | Price 価格 | | 23.8 million yen 2380万円 | Floor plan 間取り | | 4LDK 4LDK | Units sold 販売戸数 | | 1 units 1戸 | Total units 総戸数 | | 1 units 1戸 | Land area 土地面積 | | 228 sq m (68.96 tsubo) (Registration) 228m2(68.96坪)(登記) | Building area 建物面積 | | 131.62 sq m (39.81 tsubo) (Registration) 131.62m2(39.81坪)(登記) | Driveway burden-road 私道負担・道路 | | Nothing, North 6m width (contact the road width 12m) 無、北6m幅(接道幅12m) | Completion date 完成時期(築年月) | | December 1987 1987年12月 | Address 住所 | | Otsu, Shiga Prefecture Oginosato 5 滋賀県大津市仰木の里5 | Traffic 交通 | | JR Kosei Line "Ogoto Onsen" bus 6 minutes Konomi park before walk 2 minutes JR Kosei Line "Katata" walk 25 minutes JR湖西線「おごと温泉」バス6分このみ公園前歩2分 JR湖西線「堅田」歩25分
| Contact お問い合せ先 | | (Ltd.) three cities housing TEL: 0800-603-3519 [Toll free] mobile phone ・ Also available from PHS Caller ID is not notified Please contact the "saw SUUMO (Sumo)" If it does not lead, If the real estate company (株)三都ハウジングTEL:0800-603-3519【通話料無料】携帯電話・PHSからもご利用いただけます 発信者番号は通知されません 「SUUMO(スーモ)を見た」と問い合わせください つながらない方、不動産会社の方は
| Building coverage, floor area ratio 建ぺい率・容積率 | | 40% ・ 60% 40%・60% | Time residents 入居時期 | | Immediate available 即入居可 | Land of the right form 土地の権利形態 | | Ownership 所有権 | Structure and method of construction 構造・工法 | | Wooden 2-story 木造2階建 | Renovation リフォーム | | December 2013 interior renovation completed (kitchen ・ bathroom ・ toilet ・ wall ・ floor ・ all rooms), December 2013 exterior renovation completed (outer wall ・ roof ・ Exterior construction) 2013年12月内装リフォーム済(キッチン・浴室・トイレ・壁・床・全室)、2013年12月外装リフォーム済(外壁・屋根・外構工事) | Use district 用途地域 | | One low-rise 1種低層 | Overview and notices その他概要・特記事項 | | Facilities: Public Water Supply, This sewage, All-electric, Parking: Garage 設備:公営水道、本下水、オール電化、駐車場:車庫 | Company profile 会社概要 | | <Seller> Governor of Kyoto Prefecture (2) No. 011962 (stock) three cities housing Yubinbango607-8412 Kyoto-shi, Kyoto Yamashina-ku Misasagishichono cho 37-22 <売主>京都府知事(2)第011962号(株)三都ハウジング〒607-8412 京都府京都市山科区御陵四丁野町37-22 |
 Local appearance photo
現地外観写真
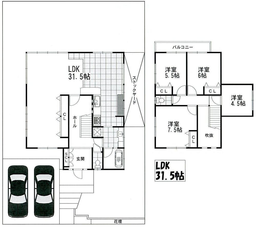
Floor plan間取り図  23.8 million yen, 4LDK, Land area 228 sq m , Building area 131.62 sq m
2380万円、4LDK、土地面積228m2、建物面積131.62m2
Kitchenキッチン  Floor (tiled)
床(タイル張り)
Livingリビング  Floor (flooring ・ Tiled)
床(フローリング・タイル張り)
Bathroom浴室  Floor (tiled)
床(タイル張り)
Wash basin, toilet洗面台・洗面所  Floor (tiled)
床(タイル張り)
Station駅  JR Ogoto Onsen Station
JRおごと温泉駅
Supermarketスーパー  Friend Mart Ogoto Station
フレンドマート雄琴駅前
 Fresco Oginosato
フレスコ仰木の里
Primary school小学校  Oginosato elementary school
仰木の里小学校
Junior high school中学校  Astragali junior high school
仰木中学校
Location
|